查看完整案例

收藏

下载

翻译
Architects:Plataforma de Arquitectura
Area:564m²
Year:2019
Manufacturers:AutoDesk,BOZOVICH DE MEXICO,Cemex,TECNONLITE,Trimble
Lead Architects:Héctor Hernández V. , Flavio Rodríguez H.
Design Team:Flavio Rodríguez H., Jimena Arredondo
Construction:Allan Santillán H.
City:Santiago de Queretaro
Country:Mexico
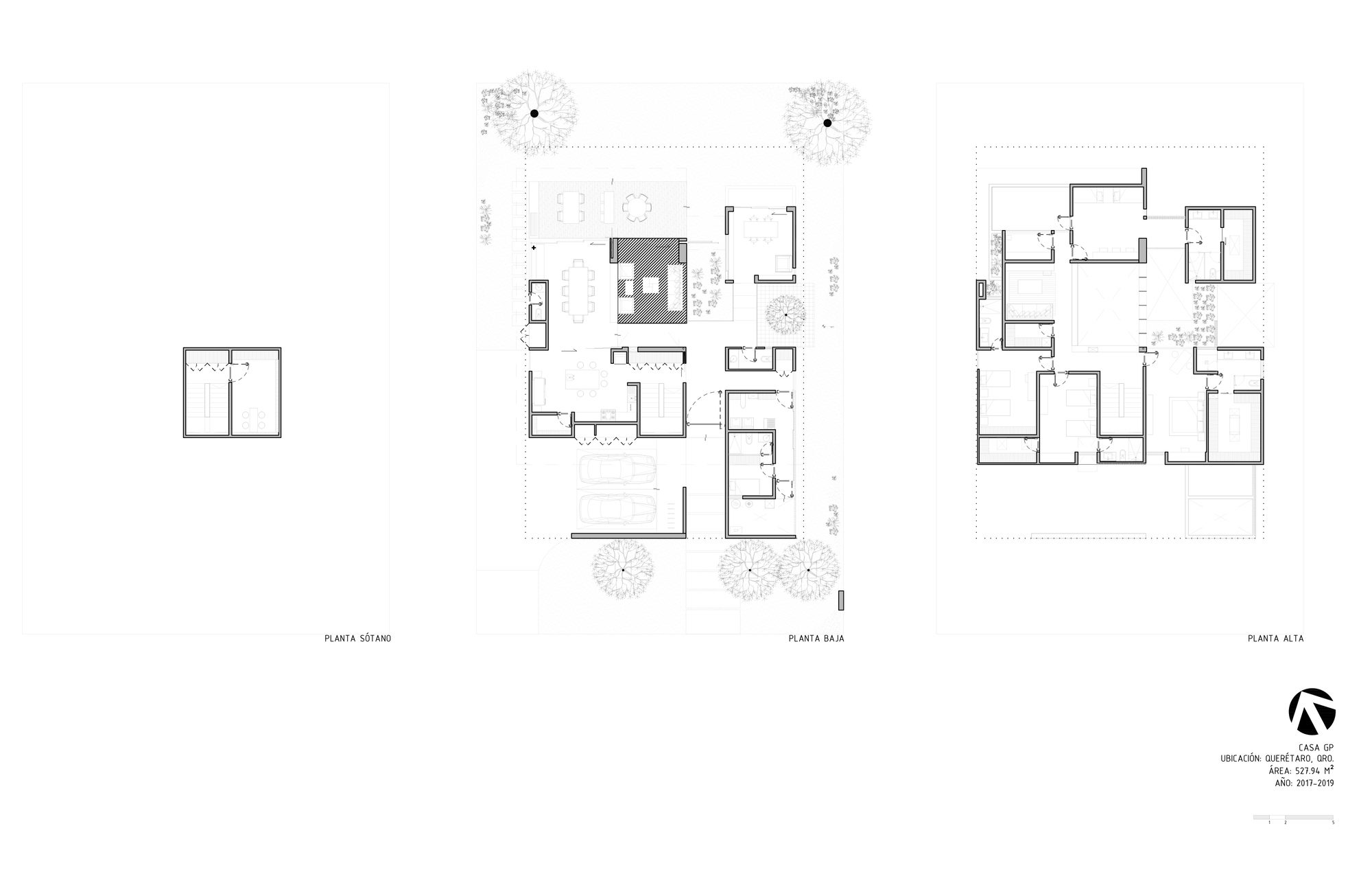
Text description provided by the architects. The enjoyment of the interior spaces of this house was the central motive around which the project revolves, based on this idea proposed to the owners, the house was designed in such a way that the exterior gesture was powerful and that the subtlety of the environments interiors will help to have particular experiences for each space of use. The project was designed to meet the space and growth needs of a family of 5 people, where the future requirements for the children in the following years would have to be considered.
Through a composition of very forceful elements that dialogue with each other with their respective materials, the house develops on two levels, the lower level being partially closed in front of the lot and translucent to the rear garden; while the upper floor has some inconspicuous visual escapes, for the most part they enjoy the interior.
The landscape is filtered throughout the project, one has landscaped landscapes in each visual finish both on the ground and upper floors. The family's social and work life takes place on the ground floor, consisting of a double-height room flanked by an interior garden that allows the natural environment to be more directly related to life inside the house.
A study at a slightly lower level allows you to have a space separated from the rest of the house but with direct visual communication with the rest of the social area. For the dining and kitchen areas, a simple height was considered to maintain the cozy atmosphere of the activities that take place there.
On the upper floor, life is completely private, with 4 rooms with different visual intentions but with the same spatial and material concept. One room has access to a terrace, another to a garden, etc. Materiality plays a very important role in giving hierarchy and character to each formal element that makes up the house. A specific case is the study and services block of one of the rooms, the rest of the volume of the house being revealed as a monolith with its own gesture.
Project gallery
客服
消息
收藏
下载
最近



























