查看完整案例

收藏

下载

翻译
Architects:MRTN Architects
Area:210m²
Year:2020
Photographs:Dave Kulesza
Builder:Crisp Green Homes
City:Melbourne
Country:Australia
Text description provided by the architects. Good Life House is a suburban family home located in Fairfield for a family of five. The family, like all families, is made up of a group of individuals that live together. Mark and Kate were clear in articulating from the beginning that a home needs to accommodate the family as a group and as a collection of individuals, that they needed to be able to live together and also ‘live together apart’. The home needed to provide beyond the traditional kitchen, living, and dining living spaces and allow a range of social and alone activities to occur. It also needed to be a space of learning and exploring and playing.
Mark and Kate had owned the property for a number of years and lived in the old house on the site, in part waiting for the time to build but also exploring other lifestyle options for their family including living on a farm and also purchasing an Alistair Knox house in Eltham. They kept coming back to the benefits of living close to the city and being part of the community in Fairfield.
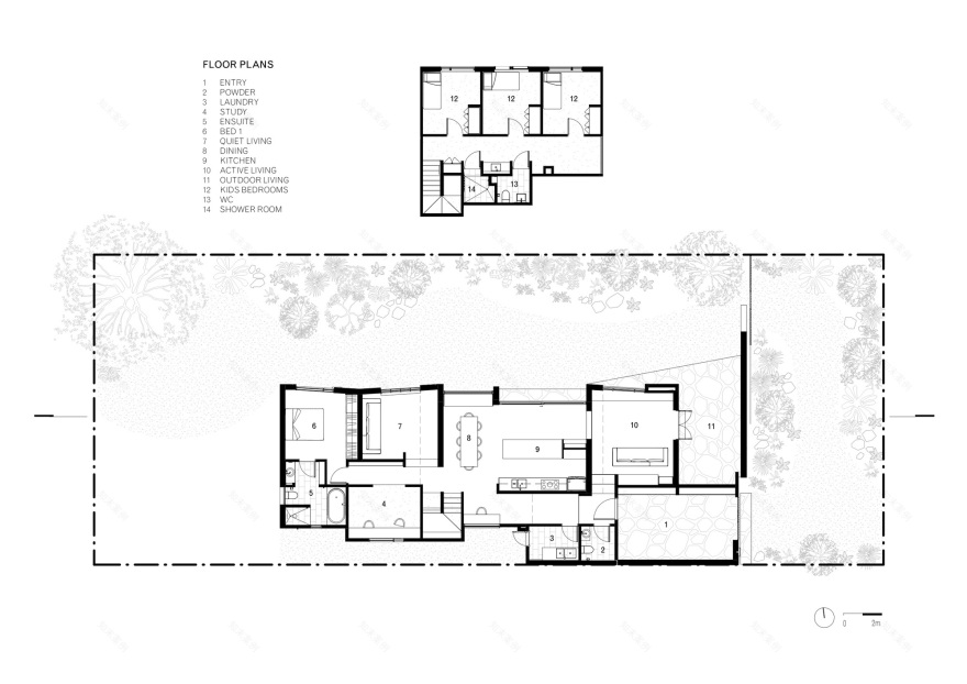
The site is located on a fairly typical street for the area, Californian Bungalow and Arts and Crafts houses with hip and gable roof forms dominate the streetscape, these roofs largely create the character of the neighbourhood and were an important reference for how this new house design would fit in with its established neighbours. The street elevation faces east and from the footpath, the home has a generous front setback and presents as a single storey home with a dormer window. There is no front door, entry is either via the generous covered outdoor space, a subversion of the Rescode requirement for a covered car space, or else through the large sliding gate and garden entry to the north.
The material palette and spatial layout of the design drew on Mark and Kate’s nostalgic memories of family farm visits and childhood home while also referencing the country homes and Alistair Knox’s houses that they considered prior to committing to the building. In developing the plan, we looked at rambling country home plans, plans that are a collection of smaller spaces rather than expansive open-plan homes that would not suit a need to be together and together apart. In place of a ‘Main Living’ and ‘TV’ or ‘Family Living’ type spaces, we looked at ‘Quiet Living’ and Active Living’ rooms. Spaces to study or read were located in dedicated rooms but also in corridors, at windows, and under stairs.
Internally materials were selected for their thermal performance, low maintenance durability and for the character created when brick, concrete, and timber are combined in the one space, that along with the varying ceiling heights and window types create rooms with individual character and personality.
All heating and cooking powered by fossil-free, highly energy-efficient appliances, and heat pump technologies. Reverse brick veneer construction, in-slab hydronic, ceiling fans, and high operable windows contributing comfortable thermal environment.
Project gallery
客服
消息
收藏
下载
最近



































