查看完整案例

收藏

下载

翻译
Architects:arba
Area:20m²
Year:2018
Photographs:Jérémie Léon
Lead Architects:Jean-Baptiste Barache, Sihem Lamine, Pierre Gourvennec
City:Longueil
Country:France
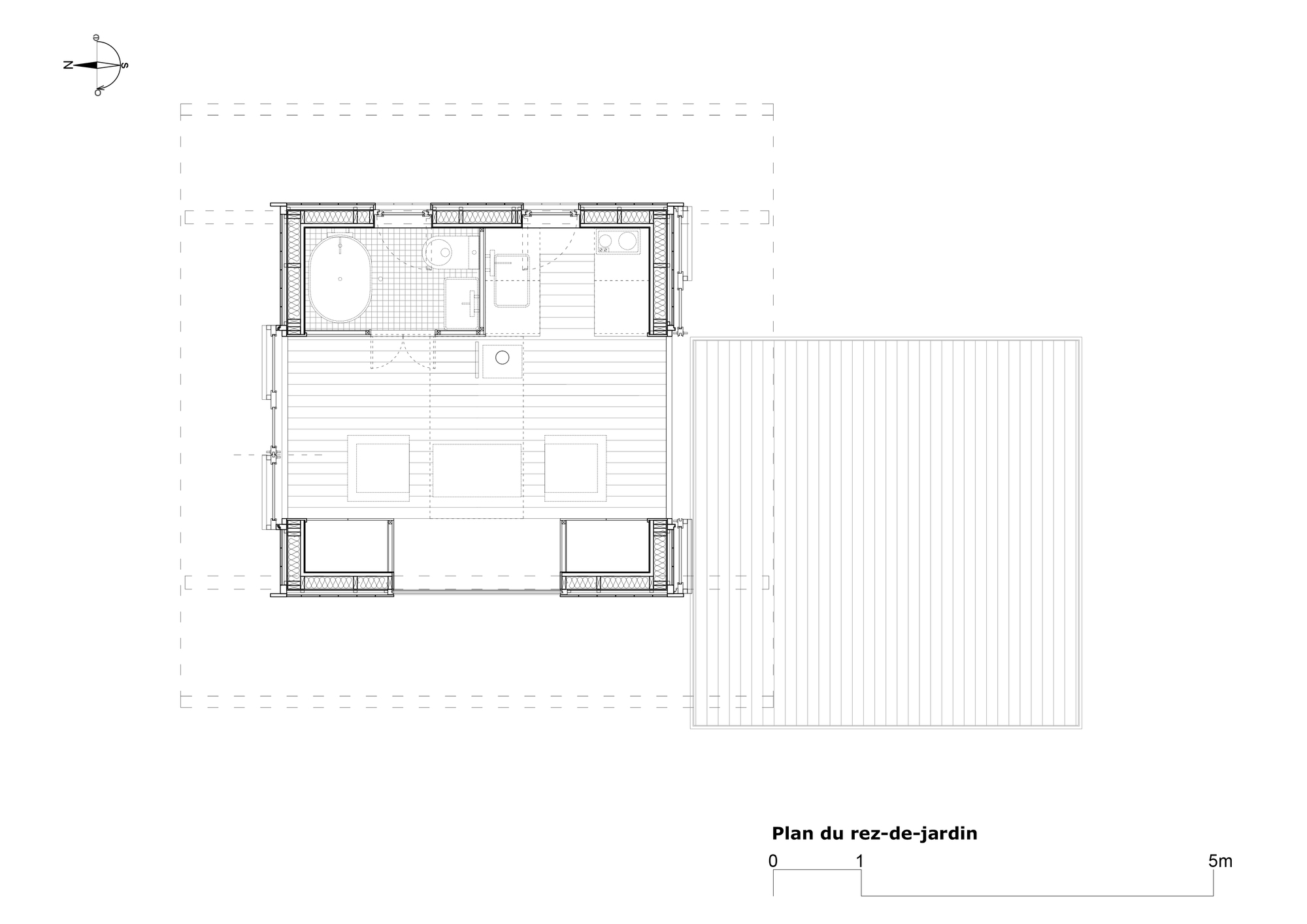
Text description provided by the architects. The project is about building a minimal house to make the most of the beautiful existing garden and the proximity of the sea; like a shelter to inhabit the site in a comfortable and dynamic way.
The twenty square meters space gives the opportunity to find a dining room, a bow window as a living room with a sea view, a bathroom, a kitchen, sleeping for five people, toilets, and storage space.
To bring a large pleasure in this small area, the challenge is to make the people feel inhabiting the garden. Thus we use several devices: sliding windows which disappear behind the walls make the garden passing through the house; a bow window frames the sea and the village church and immerses the inhabitant in the landscape; a generous clerestory roof overhang gives shelter to the immediate surroundings; a terrace offers views to the surrounding.
Project gallery
客服
消息
收藏
下载
最近


























