查看完整案例

收藏

下载

翻译
Architects:MARTINS AFONSO atelier de design,l'atelier miel
Year:2019
Photographs:Mickaël Martins Afonso
Manufacturers:AutoDesk,Investwood,Casalgrande Padana,Cermix,Decospan,Rika,Volutech
Lead Architects:Mickaël Martins Afonso & Elodie Gaschard
Engineering:Thêta ingénierie
City:Courdimanche
Country:France
Text description provided by the architects. Game of solids and voids. In the house, space is used but has yet to be lived in. The family, who has recently moved in, is settling in, capturing sensations and sequences which will soon become the pillars of the upcoming project.
The owners wanted to renovate and adapt this house to their way of life, a more comfortable one, and above all, in accordance with their tastes. This project gave us time to think about spaces in a new light, with new use, especially for children.
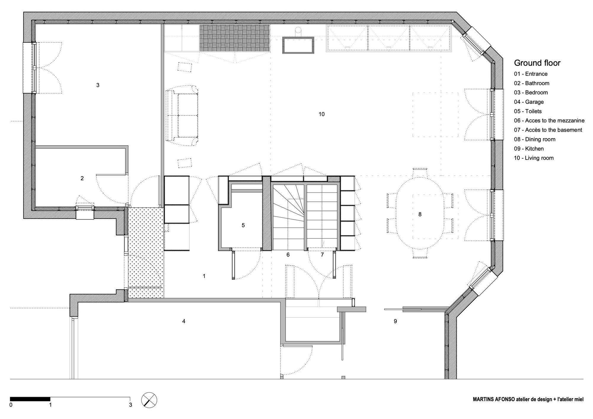
Directing spaces. The main asset of the house was its light, and the double height volume in the living room, unexploited until then. As a result, a mezzanine net came to life in this space, allowing the outdoor light to come through, yet offering another way to take over this area.
The white floor on the ground floor, beyond its high reflective potential, brings out all the elements that are put down on it. The flooring shade also highlights an inversion of sensations with the shuttered concrete ceiling. This change upsets the habits to reinforce the notion of void at the center of the net.
The integrated furnishings, mostly oak with some black spots, bring warm fragments to the place, as gold nuggets one ties oneself to and which structure the clear and infinite space. The goal was to reorganize these living spaces developed upon two floors, in order to create a general coherence in the project, while at the same time creating distinct areas dedicated to specific use.
The central area links both levels as a backbone. It is a huge sculpted wooden volume, in which several functions and usages are articulated: it is, on the one hand, the stairs that lead to the other floors, but also an access to the basement, the toilets, the bar, the library, the storage for vinyl records, and the television unit. The whole is materialized with games of solids and voids, punctuated by numerous spaces hidden by door curtains or small trap doors.
Hierarchy of spaces through matter. The mezzanine net becomes, depending on the time of day, a space for children to play, a place to relax in family, or a movie room. Bordering the net, along the wall, a wooden strip inhabits the residual space under the slope, offering a number of storages, and integrating a video projector and home cinema, concealed behind sliding doors once the showing is over. This strip continues on the next wall with a different shape, where the structure of the net is wrapped by wood and allows for a sequence of tiny trap doors, with some more storage spaces.
Like a theatrical production, the light falls onto the walls and the furniture, as such creating a warm atmosphere throughout the day, making these spaces pleasant and appeasing. The result is a true call for relaxation in this area, where everybody finds their own space without cluttering the available space.
Project gallery
客服
消息
收藏
下载
最近




























