查看完整案例

收藏

下载

翻译
Architects:Atelier Berger Milà
Area:100m²
Year:2017
Photographs:Anna Fontacas,Eva Moyano
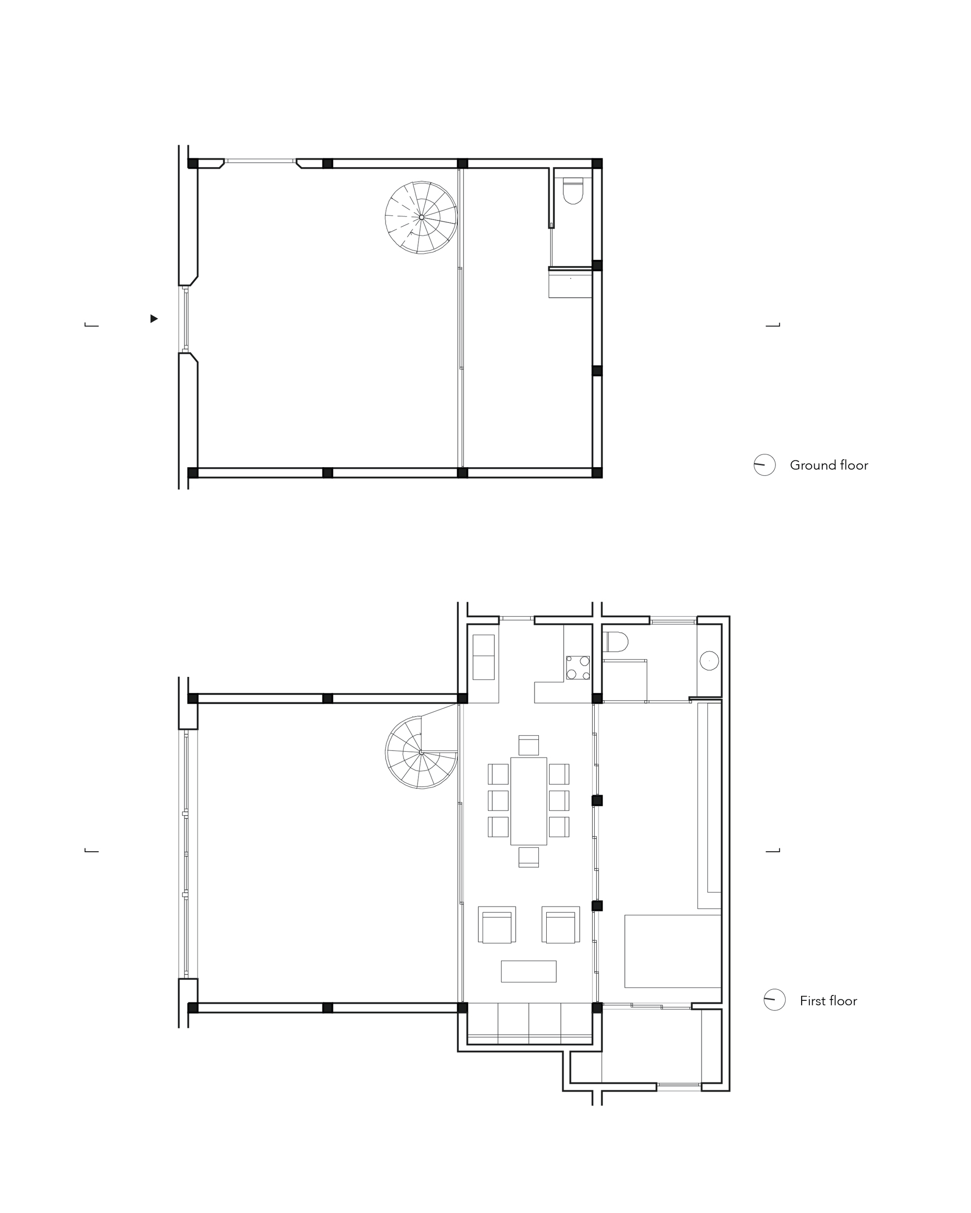
Text description provided by the architects. This project, an old artist studio and living space in the Montparnasse area had accumulated many layers of habitation over the years. Makeshift walls and mezzanines secluded each space from light and promised to divide the occupants into a binary model of life: live-work. After completely stripping the space the goal of the project was to redefine a 'live-work' space for an artist couple.
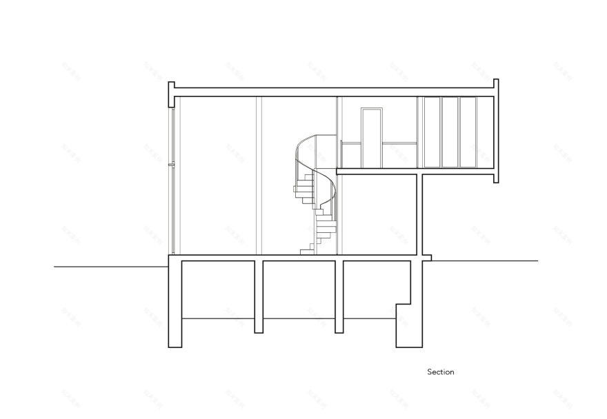
There is a binary aspect within the distinctions 'live' and 'work' that does not necessarily correspond to the reality of an artist's daily life, where creation is never far from life's numerous rituals and cannot simply be designated into one volume. Consequently, the project is redefined into 3 living spaces: a space for production, experimentation, exposition space to be social, to receive and exchange an intimate space in which to withdraw, to repose, meditate These three spaces are established in conjunction with the remarkable existing qualities of the structure, benefiting from three natural light sources and the majestic two-storied volume.
The original wood posts of the structure appear regularly throughout, accentuated by large sliding translucent panels that define the spatial setting of each room from social to intimate environments. These panels also serve to filter the light, easily sliding to provide the desired balance. Architecture accompanies artists, it adapts to their mode of life and provides a service for their creation.
Project gallery
客服
消息
收藏
下载
最近

















