查看完整案例

收藏

下载

翻译
Firm: Koshigoe Architects
Type: Residential › Private House Multi Unit Housing
STATUS: Built
YEAR: 2022
SIZE: 3000 sqft - 5000 sqft
The site is in a residential area, surrounded by two-story houses and three- to four-story apartment buildings. The east side is a 7-meter road, and the north is a 4-meter road. The neighboring lots on the south and west sides are 3-story houses. The site area is about 105 m2, and the maximum floor area was required to be secured while meeting road height restrictions, elevation slopes, and sun-shading regulations. From the initial planning stage, a 3D model was used to study the road height restrictions and sun shading, and a volume study was conducted in parallel with creating a model to derive the building form. On the west side, a steeply pitched roof plane was created due to the elevation slopes, and on the east side, a characteristic shape was created with the girder descending from the south to the north. The gable end on the north side was cut off at an angle due to shading regulations and road height restrictions. Since there are no tall buildings in the distance on the north side of the site, the north-facing slanting wall was made into a large glass opening to bring stable northern light and views into the room.
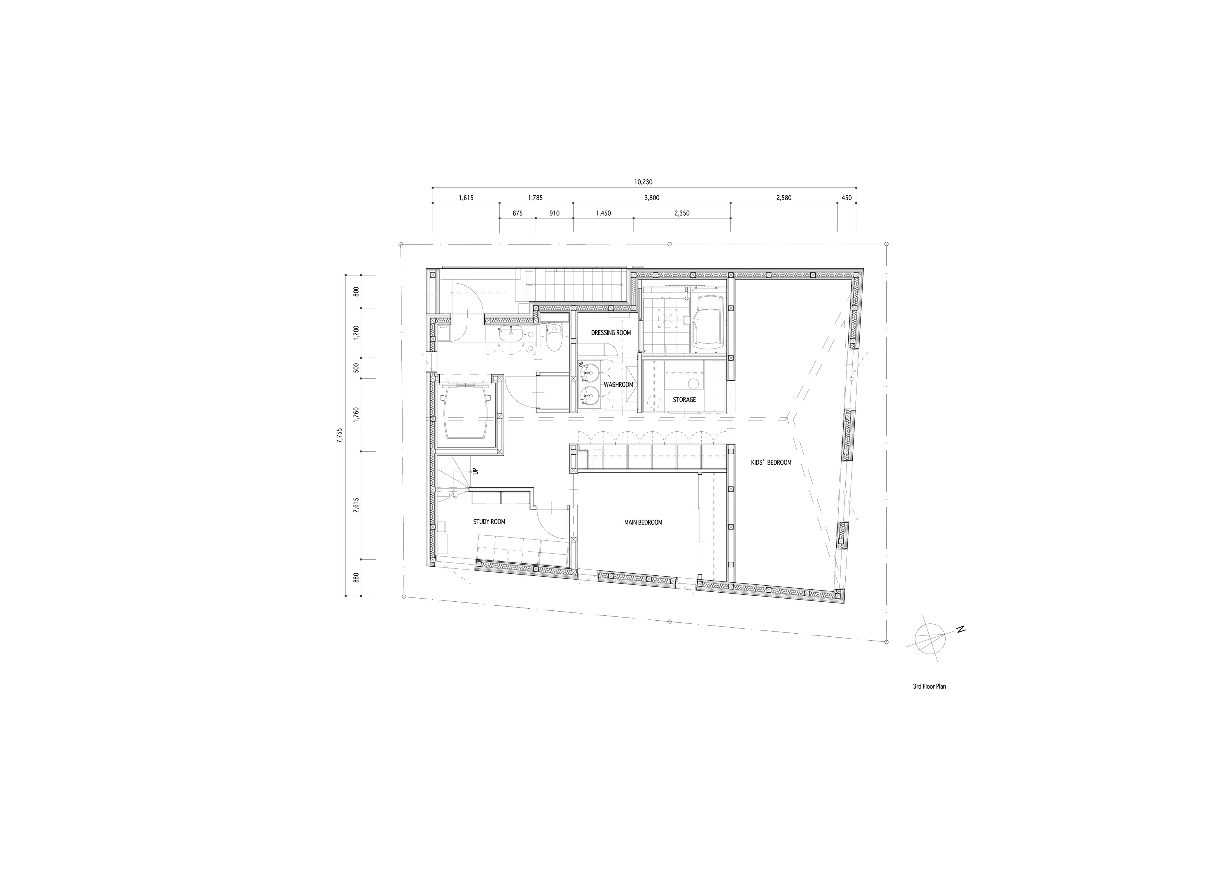
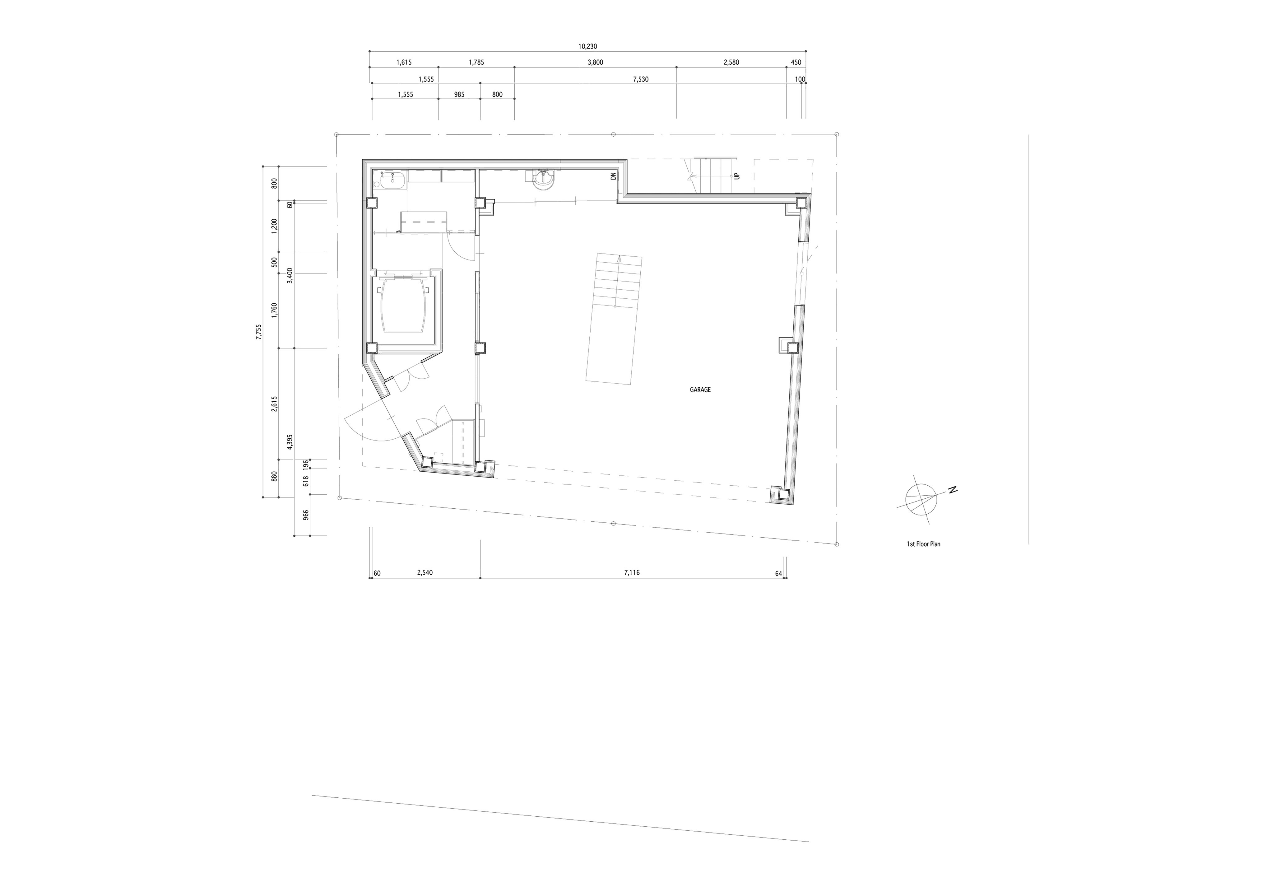
This house is a fireproof building of mixed steel and wood construction, with the first, third, and fourth floors occupied by the owner's dwelling and the second floor occupied by three one-room apartment units. The first floor is a garage for the owner, a car enthusiast, and a 7.5-meter span was realized as a steel-frame rigid-frame structure to meet the demand for a column-free space. The second through fourth floors is wood-frame construction, as the partition walls can be used as load-bearing. The interior of the fourth floor is not supported by pillars or walls but by climbing beams and ridgepoles to create an ample space with a sloping ceiling, into which the wet area and elevator volumes are inserted. Various height restrictions limit the height of all parts of the building, so it was necessary to minimize the height of the floors.
客服
消息
收藏
下载
最近


















