查看完整案例

收藏

下载
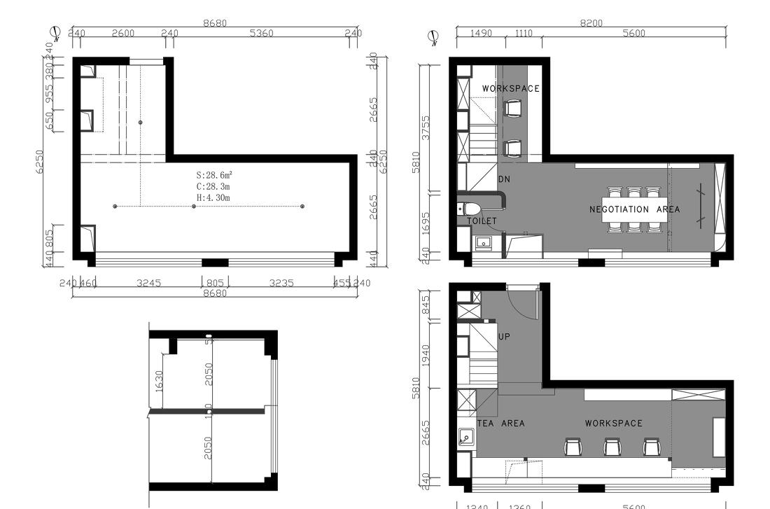
该案为同德悦中心商住公寓改设计工作室使用。原房建筑面积39㎡,套内实际使用面积30㎡,层高4.3m,公寓较小,层高还算较高,按实际使用需求,可以分隔为两层使用,实际使用面积拓展为56㎡,分隔楼层中,受到消防管道、梁的影响,局部层高会受限。
平面图:
1、公寓面积较小,开间较大面全是幕墙玻璃,朝向虽然面北,天光却非常充足;
2、室内净空高度4.3米,长期使用者身高1.83米,根据该身高来做了1、2楼,每层楼高2.05米。除了一处低梁没办法避免,其它地方高度对使用都无影响;
3、消防喷淋高度影响了分隔楼层,位置做了变更;
4、因为空间小,作为办公使用,空间收纳得足够,因此在整个空间做了很多收纳柜体;
5、原卫生间位置在入户门口,重新划分空间后,设计在2楼。
空间介绍:
该空间大量使用微水泥,并且分隔楼层,因此整个设计费用较高~
一楼:
1、1楼入户后,划分出玄关,入户右手边配置有整体柜,提供来访者挂放衣服、穿戴鞋套;
2、入户后是上2楼楼梯,楼梯设计拉宽一些,在楼梯旁、楼梯下,都设计有储物空间,方便工作室放置杂物;
3、1楼楼梯下一部分是一组橱柜,作为茶水区,该区放置冰箱、饮用水机、微波炉等;
4、橱柜旁是较高台面的收纳柜子,作为久坐工作后,可以站立工作区域。该区域上部有个小小的中空,连通2楼;
5、工作区是一个长条形悬挑微水泥台面,可供3-4人同时使用;
6、工作区对面是钢板入墙的悬挑书架,旁边还有一悬挑柜,放置工作人员个人物品;
7、最内部,是一个休闲椅以及窗边座位,做接待客户、休息区使用。
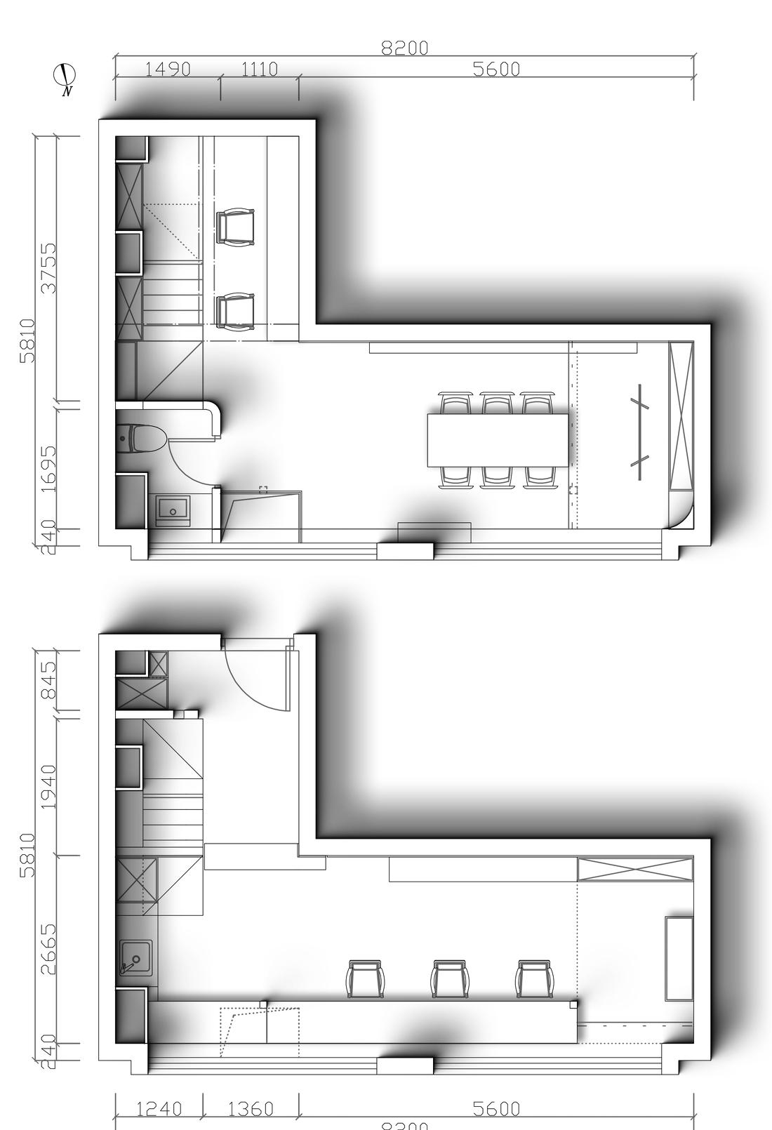
二楼:
1、2楼主要做客户接待、会议区域,并且摆放材料;
2、 2楼楼梯口左侧是可三人同时工作的一个小备用工作区,该区入口有个较低的梁,进出容易碰头;
3、楼梯口右侧是卫生间区域,使用隐框门,门可以很好的同墙体融合一块,在狭小的空间内弱化了卫生间的存在。
入户后,划分出玄关,入户右手边配置有整体柜,提供来访者挂放衣服、穿戴鞋套。
玄关配置有整体柜,提供来访者挂放衣服、穿戴鞋套。
玄关配置有整体柜,提供来访者挂放衣服、穿戴鞋套。
1楼楼梯下一部分是一组橱柜,作为茶水区,该区放置冰箱、饮用水机、微波炉等。
橱柜旁是较高台面的收纳柜子,作为久坐工作后,可以站立工作区域,材质上该收纳柜和旁边钢柱通体使用微水泥面层。该区域上部有个小小的中空,连通2楼。尘市集灯,亚特兰蒂斯
尘市集灯,亚特兰蒂斯
1楼工作区是一个长条形悬挑微水泥台面,可供3-4人同时使用。
1楼工作区对面是钢板入墙的悬挑书架,旁边还有一悬挑柜,放置工作人员个人物品。
1楼工作区对面是钢板入墙的悬挑书架,旁边还有一悬挑柜,放置工作人员个人物品。
1楼最内部,是一个休闲椅以及窗边座位,做接待客户、休息区使用。该区域墙面保持裸露原混凝土墙体,搭配全白空间增加亮点。
1楼最内部,是一个休闲椅以及窗边座位,做接待客户、休息区使用。该区域墙面保持裸露原混凝土墙体,搭配全白空间增加亮点。
1楼最内部,是一个休闲椅以及窗边座位,做接待客户、休息区使用。该区域墙面保持裸露原混凝土墙体,搭配全白空间增加亮点。白色空间,局部还使用了很多海洋板,海洋板木纹很柔自然,刷上哑光漆后还防水防污。
白色空间,局部还使用了很多海洋板,海洋板木纹很柔自然,刷上哑光漆后还防水防污。
工作区窗景,工作室窗户朝北面,因为幕墙玻璃,朝北的房间天光也非常充足,朝北作为工作室的还有一优点:太阳光晒不进来,不用装窗帘~
工作室装的灯带是可变光的,整体白色的工作区,在灯光加持下,也可以赛博朋克一下~
楼梯设计拉宽一些,在楼梯旁、楼梯下,都设计有储物空间,方便工作室放置杂物。
楼梯设计拉宽一些,在楼梯旁、楼梯下,都设计有储物空间,方便工作室放置杂物。
楼梯下一点点小空间里灯光、石子、镜面水滴给这个不大的工作室也能增加亮点。
楼梯下一点点小空间里灯光、石子、镜面水滴给这个不大的工作室也能增加亮点。
整个楼梯,钢架打底,面层全部使用微水泥。微水泥的随意造型,收口就不是问题了,因为微水泥,整个空间很多地方可以形成一体。
整个楼梯,钢架打底,面层全部使用微水泥。微水泥的随意造型,收口就不是问题了,因为微水泥,整个空间很多地方可以形成一体。
2楼楼梯口左侧是可三人同时工作的一个小备用工作区,该区入口有个较低的梁,进出容易碰头,梁保持裸露混凝土,搭配空间中也有一种警示碰头作用。
2楼楼梯口左侧是可三人同时工作的一个小备用工作区,该区入口有个较低的梁,进出容易碰头,梁保持裸露混凝土,搭配空间中也有一种警示碰头作用。
2楼主要做客户接待、会议区域,并且摆放材料。
2楼主要做客户接待、会议区域,并且摆放材料。
2楼地台上部做的休息区,没有客户在洽谈区时,这里是小憩的好地方~
楼梯口右侧是卫生间区域,使用隐框门,门可以很好的同墙体融合一块,在狭小的空间内弱化了卫生间的存在。
楼梯口右侧是卫生间区域,使用隐框门,门可以很好的同墙体融合一块,在狭小的空间内弱化了卫生间的存在。
连接1楼2楼得中空,上部是一个书架。
连接1楼2楼得中空,上部是一个书架。
工作室装的灯带是可变光的,整体白色的工作区,在灯光加持下,也可以赛博朋克一下~
工作室装的灯带是可变光的,整体白色的工作区,在灯光加持下,也可以赛博朋克一下~
客服
消息
收藏
下载
最近






































