查看完整案例

收藏

下载

翻译
Architects:draftworks architects
Area:170m²
Year:2019
Photographs:Creative Photo Room, Maria Efthymiou
Manufacturers:Grohe,DALIKO,DCW EDITIONS,HEMONIDES DESIGN CONSULTANTS,Ideal Standard,MARAZZI,MUSKITA ALLUMINIUM
Lead Architects:Christiana Ioannou, Christos Papastergiou
Eps Civil Engineering:Nikos Kalathas
Eplan Electrical Engineering:Christos Topouzis, Savvas Christodoulou
Polypro Mechanical Engineering:Prokopis Polydorou
City:Nicosia
Country:Cyprus
" In company with the aphid and the grasshopper, but also the spider mite, the tiger moth, the leaf, miner, the mole, and the hover-fly, the praying mantis that devours them all. We shall be sharing leaves, petals, sky, in this incredible garden, both they and I transitory." NICOSSIENSES, Niki Marangou.
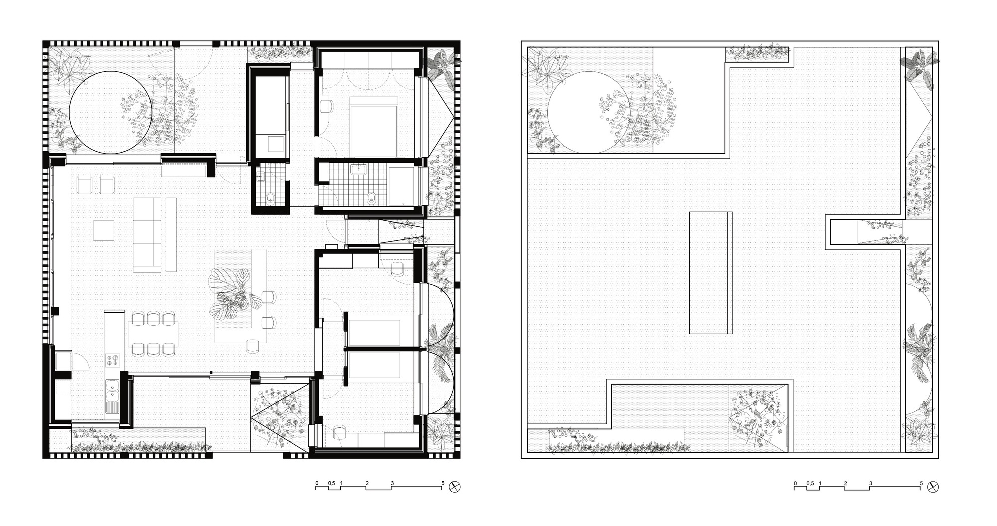
The idea of the enclosed or ‘secret’ garden as part of the domestic space can be found in traditional architecture in Cyprus, and especially in Nicosia, where the commissioned private house is located. The garden traditionally functioned as an incubator of natural matter and nurtured the ‘informal’ part of the domestic life.
Historical references from foreign travelers to Nicosia from the 14th Century, describe the garden as a space that is surrounded by a high wall and which contains a plethora of ornamental as well as productive plants. It is described as an important part of the domestic life offering pleasant smells and noises, while at the same time it forms the historical urban identity of the city.
For this project, the enclosed garden becomes part of the domestic life, and in close relevance to the daily domestic routine. A 16 by 16 by 5 metres box includes the necessary living spaces for the daily routine. At the same time, the box also includes fragments of nature, in the form of four small gardens, which are considered equally important as a divergence from the daily routine of the family. The 4 enclosed gardens also help as incubators for growing up species and testing them in local climate before relocating them in the exterior field that surrounds the house.
For the construction, we have used simple materials produced by local industries, such as concrete masonry units (CMU) and white concrete units as breeze bricks. The wood and metalwork are made by local craftsmen.
Project gallery
客服
消息
收藏
下载
最近











































