查看完整案例

收藏

下载

翻译
Секционный жилой дом среднeй этажности
Учебный проект | University Study
Ноябрь-Декабрь 2021 | Nov - Dec 2021
ArchiCAD, TwinMotion
Генеральный план | Site plan
План типового этажа. ТЭП дома | Standard floor plan. Technical and economic performance
План 1-го этажа | Ground floor plan
Разрез + дворовой фасад | Section + Elevation
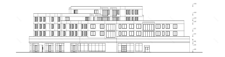
Фасад в осях 33-39 | Elevation on greed lines 33-39
Схема квартирографии | Apartment mix scheme
План трехкомнатной квартиры | Two-bedroom apartment floor plan
План двухкомнатной квартиры | One-bedroom apartment floor plan
План однокомнатной квартиры | One-room apartment floor plan
План двухкомнатной квартиры | One-bedroom apartment floor plan
客服
消息
收藏
下载
最近













