查看完整案例

收藏

下载

翻译
Architects:Timmins+Whyte Architects
Area:194m²
Year:2019
Photographs:Peter Bennetts
Manufacturers:Big Ass Fans,Astra Walker,Austral Bricks,Cheminees Philippe,Colorbond,Cult,Dulux,Miglass,National Tiles,Polytec,Red Socks Lighting,Signorino,Tassie Oak,Tide Design
Builder:Barkers Burke, Robin Riotto
Landscape:Mud Office,Josh Norman Landscapes
Engineering:Robin Bliem & Associates
Design Team:Sally Timmins, David Whyte
Clients:Thai Ohtsuka, Keis Ohtsuka
City:North Melbourne
Country:Australia
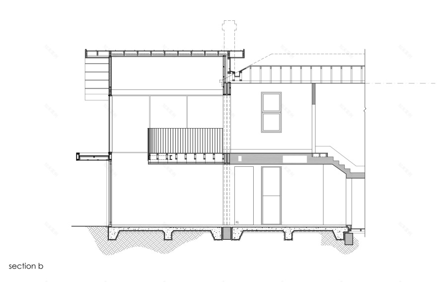
Text description provided by the architects. A small footprint housing an open plan living space can be challenging to avoid cramped functions. Our clients wanted to live, cook, gather, and lounge, read and socialise in one sunny externally connected space. In order to give the functions definition, ceiling volumes and textures were utilized to create zones. A double-height void space connects the landscaped spaces to the east and west both visually and physically, and a balcony area becomes a part of the space to read or converse. The scale of the void is grand as the original heritage-listed part of the house at the front. But unlike its Victorian, heavy dark street address the extension is a light, bright breathing space of calm.⠀
Lantern house extension is passively cooled in summer with the use of openable skylights, fans and louvred windows on the ground floor. The extension has been designed to play with light, it allows the space to bathe in it, or retreat from it through the remotely controlled blinds on the upper-level expanses of glass. The project incorporates a large water bladder under the front verandah to water the gardens and solar panels on the roof for energy.
A shell has been formed with Matte white Colorbond cladding on a lightweight timber structure to protect the honey-colored local timber interior linings, windows, and doors from the weather.⠀
The house is a series of choreographed spaces with views to the outside from every angle. There is a sense of calm, like being at a day spa. It feels soft, it feels light and unfussy. The main living and kitchen now feel part of the whole site and will evolve and change with seasons as the garden grows.⠀
Project gallery
客服
消息
收藏
下载
最近





























