查看完整案例

收藏

下载

翻译
Architects:Takeshi Hosaka Architects
Area:470m²
Year:2014
Photographs:Koji Fujii / Nacasa & Partners Inc.
Manufacturers:AEG,Lixil Corporation,MORI NO MADO
Structural Engineers:NAWAKENJI-M, Kenji Nawa
Client:Keisuke Noguchi
Site:470.60 sqm
Building Area:233.84 sqm
Floor Area Ratio:187.67 sqm
City:Nagoya
Country:Japan
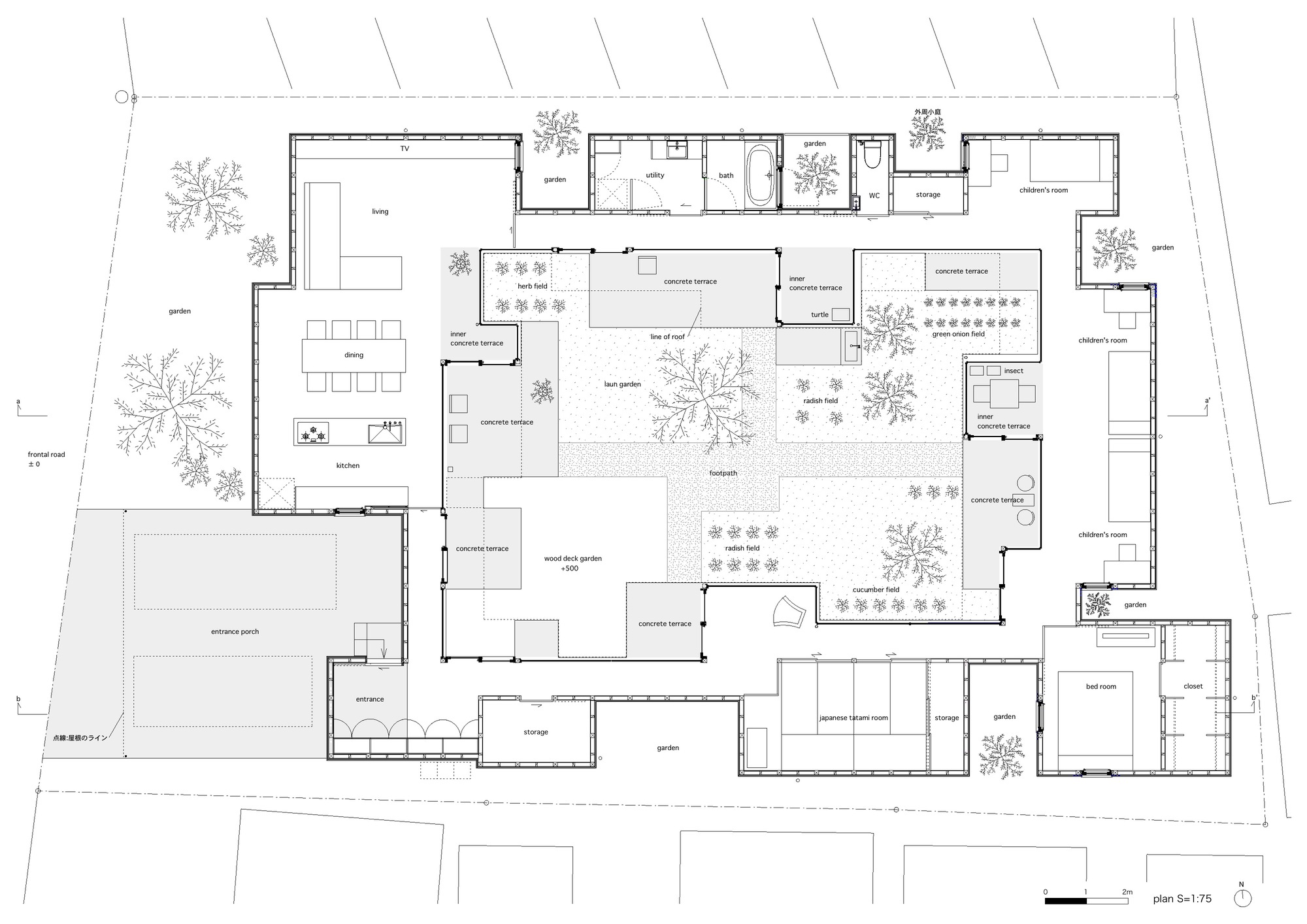
Text description provided by the architects. The site is located approximately 1 km west of Nagoya castle and in the neighborhood there are 2 story houses as well as high rise apartments over 10 stories high. Summer in Nagoya is very hot. When a downpour occurs water can rise over 50 cm above street level. Taking these matters into account we have designed a serene and comfortable house for a family of three (husband/wife and child).
Taking advantage of the large site we have designed a single level court house surrounding a courtyard garden. However if we make it just a court house the outline of the sky is too distinct and from the surrounding high rise apartments you are able to see inside therefore we had the line of the glass facing the courtyard and the line of the roof cave in and protrude and the line of the glass, eaves and dirt floor intersect at the inside/outside boundary in a plane format. In this way it becomes an architectural style where the outside dirt floor with a roof, outside dirt floor without a roof, outside vegetable garden, all dirt floors inside and each area facing the inside glass come together side by side near the inside/outside boundary. This diverse area as well as having a role of controlling the line of sight and shutting out direct sunlight in summer it creates a living space where inside, half outside and outside produce a variety of living scenes.
The height of the floor is made 75cm higher than the front street for safety measure in case of a downpour. We have used diatom earth for the inside wall as much as possible so that you can feel the naturalness of the dirt. The outer wall was created with plane lines of roughness and planted a tree in the small outer garden so that you will be able to see the leaves outside form the small window. In addition, due to the window at the courtyard side and the small window at the small outer garden side the whole house has natural air flowing through thereby making it livable even in the hot summer of Nagoya.
The footpath made of earth mortar in the garden courtyard creates a shortcut access path and both inside and outside were planned to play a main role with daily life, vegetable garden life and garden life coming together. Note: This project was originally published on 17 August 2016
Project gallery
客服
消息
收藏
下载
最近






















































