查看完整案例

收藏

下载

翻译
Architects:ForX Design Studio
Area:550m²
Year:2019
Photographs:DOF Sky|Ground
Manufacturers:COTTO,TOA,TYT,Thai Asahi
Consultants:AP Thailand PCL
Landscape:NISP
Architect In Charge:Atta Pornsumalee
Design Team:Phee Pureepasawong
Client:AP Thailand PCL
Engineering:Sirichai Seisin
Country:Thailand
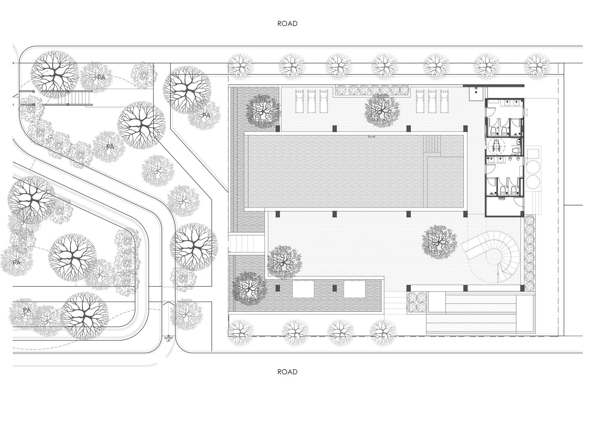
Text description provided by the architects. Grand Pleno Phahol Ransit is one of the biggest housing projects in Rangsit, Bangkok. Space planning are designed to serve tropical climate conditions which are natural ventilation, lighting and shade and shadow. There are two stories space, 1st floor is a swimming pool which surrounded by open terrace like Thai traditional housing space and the 2nd floor consist of fitness space, living space and kid space.
The fitness are designed to locate on the 2nd floor and facing projects center green space. The courtyard with trees and spiral staircase is a connector between upper and lower space which allowed ventilation flow from ground to top roof, moreover, the connectors are created a lighting shade and shadow into the space.
In addition, the spaces are wrapped by glazing façade to filter heat from lighting and create private space not only 2nd floor space but also open terrace underneath. The glazing on façade are composed of two type of glass which are laminated glass with 10% reflective PVB film and laminated corrugate glass, the different properties of glass are created various scenes not only exterior space but also interior space, furthermore, light from the space inside go through the façade to connect people inside and outside of the building.
Project gallery
客服
消息
收藏
下载
最近



































