查看完整案例

收藏

下载

翻译
Architects:Urban Rural Systems
Area:108m²
Year:2020
Photographs:Carlina Teteris,Dio Guna Putra
Manufacturers:Alternative Construction Material Group,Bandung,FCL Singapore,Hebel,Mycotech
Architect In Charge:Stephen Cairns
Design And Construction Team:Miya Irawati, Chen Ting, Azwan Aziz, Dio Guna Putra, Sumiadi Rahman
Clients:Kampung Batu Besar Community
Community Codesign:Alwi, Batam Municipal Planning Authority, Rahmat Kurniawan
Bamboo Composites:Alternative Construction Materials group, FCL Singapore, Dirk Hebel, Alireza Javadian, Nazanin Saeidi
Mycelium:Mycotech, Bandung, Adi Reza Nugroho, Herlambang Ajidarma, Miko Bahtera Nusantara
Engineer:Foundations Contractor, A Square Engineering, Teddy Tambuan, Johannes Müller
City:Nongsa
Country:Indonesia
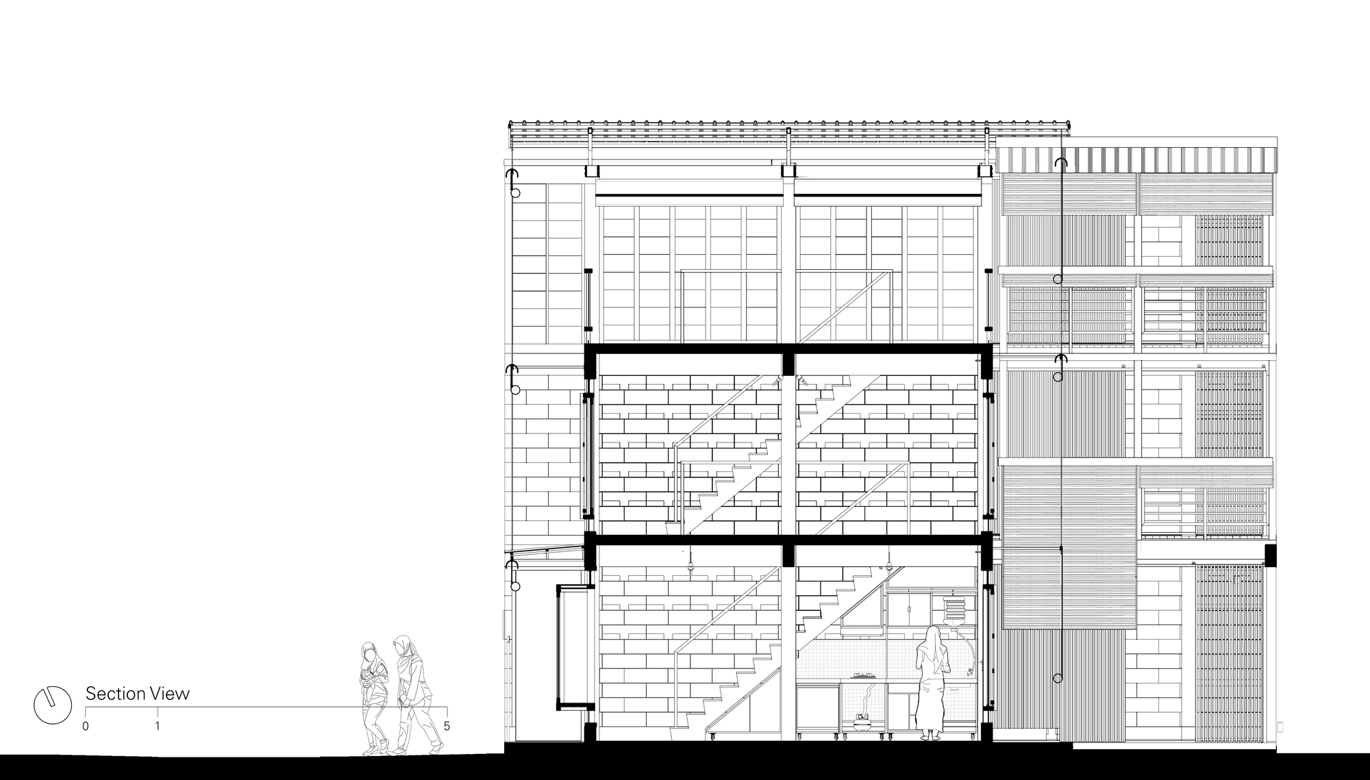
‘Scaling up the expandable house’ - We first reported on the expandable house project in 2018 when we had completed construction of the first floor (36m2). The house has now expanded to its limit of three floors (108m2). Here we report on the conclusion of phase two of the project, in which all of the technical systems required to hoist the roof with manual labor and simple tools, collect rainwater, solar energy and manage domestic waste have been successfully trialed.
Phase 3 of the project involves piloting the neighborhood and township elements at 1:1, such as alleyways, courtyards, public spaces, district cooling, water retention and peer-to-peer energy sharing systems. We have begun to do this by mocking up neighboring houses with scaffolding and printed canvas. Our team is working with developers in Indonesia to secure a suitable site for a larger-scaled and commercial implementation of phase 3, which we call Tropical Town.
Background - The expandable house (rumah tambah in Bahasa Indonesia, or rubah for short) offers affordable and sustainable dwelling options to the rapidly growing populations of Asia’s largest cities. Combining lessons from existing informal settlements, incremental housing precedents and principles of sustainable tropical building, the expandable house is designed to adapt to the fluctuating patterns of resource consumption and expenditure, or metabolism, of its residents.
The expandable house is designed around the following five principles: 1. Sandwich Section. The house provides a roof that can be hoisted, and floor and foundations (the bread) that can support up to three additional floors (the filling). This system allows flexible financing whereby the developer or state housing agency provides the roof and foundations, while the residents provide infill as their circumstances require and budget allows. It also helps accommodate crucial income generating functions (shop, café, garage, cottage industry) along with dwelling.
2. Domestic Density. The house encourages domestic densification in the vertical dimension. This supports the benefits of co-location of dwellings and employment. It also helps to reduce the settlement footprint on arable land, and the demand for expensive infrastructures (roads, electrical and potable water networks). 3. Decentralized Systems. Rainwater harvesting and solar electricity generating technologies, sewage and septic tank systems, and passive cooling principles are integrated locally with the expandable house, avoiding expensive and often unreliable centralized, or ‘big pipe’, approaches to infrastructure provision.
4. Productive Landscapes. The expandable house integrates food and building material production capacity locally. This is achieved by integrating bamboo plantations and kitchen gardens into the planning logic of the house, and helps further diversify the resource base of the expandable house. 5. Seed Package. The expandable house is designed as a seed package, containing technologies, material strategies and planning guidelines that can develop in different ways depending on local social, cultural and environmental conditions. We intend that diverse tropical towns will grow from the common seed package.
Project gallery
Project location
Address:Batu Besar, Nongsa, Batam City, Riau Islands, Indonesia
客服
消息
收藏
下载
最近





















































