查看完整案例

收藏

下载

翻译
Architects:DAGA Architects
Area:270m²
Year:2023
Photographs:UK Studio
Manufacturers:codicer95
Lead Architects:Jianghai Shen
Design Team:Jianghai Shen, Longxiao Zhang, Fangting Hu, Bei Zhang
City:Chaoyang District
Country:China
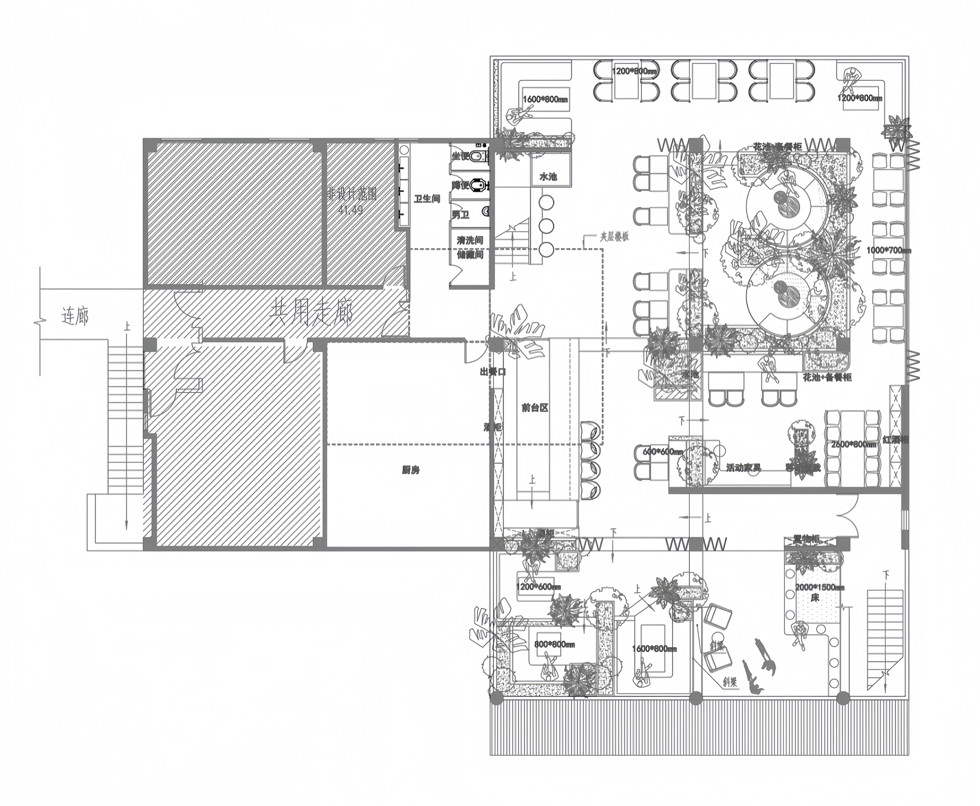
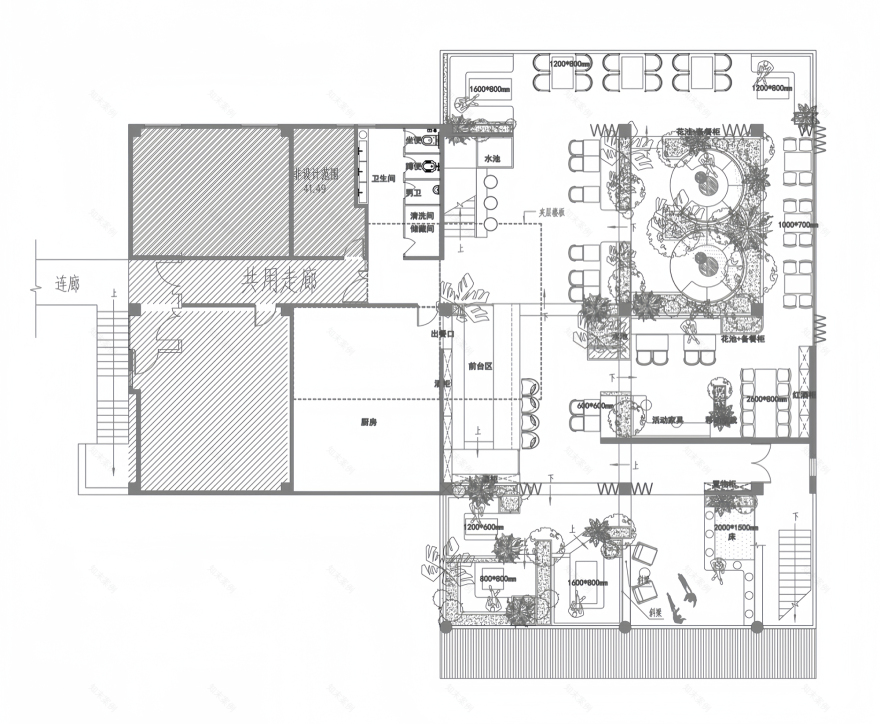
Site. This project is located on the first floor of the main building of Mix Island Sicily Village in Beijing, the original building condition is a large space with open space and a mezzanine, In terms of space design, we draw inspiration from the nature and adopt the concept of "taking shape in nature" to divide multiple dining areas, form a small rainforest tribe, and establish a subtropical style bar that echoes the holiday wind of Sicily Village.
Outside the window · semi-open. The original three sides of the area facing the outside, from the perspective of enclosure, the west terrace is the most important, and the remaining south side of the east side of diminishing importance, was created as a different space dining area. Three sides of open-air windows introduce natural daylight as the main line of the space, an entrance on the left side facing the Sicilian village, is an open-air outdoor dining area, open the roof of the cover cover, half of the terrace for the three different forms of enclosure ascending card seating, surrounded by greenery, half of the emptying, to open up the space. The dining counter is located in the center of the partitioned area, the greenery is divided into levels according to the line of sight, reducing the direct interference from the outside, and the ascending card seating divides the crowd into areas, but all of them can enjoy the surrounding scenery and the Sicilian village holiday "seascape". Push the folding windows, blend in and outside, and there are large greens outside the seating area outside the folding door. Compared with other areas, it is more quiet than other areas. Without affecting structural functions, the window opens the window, so that people can feel indoors and outdoors nature. Communication; Facing the dining area on the side of the highway, the natural light seeps into the interior with the grille of the window. Facing different outdoor design methods of the terrace, customers can always perceive the changes of outdoor.
White box. The original is a big slope roof, if follow the original shape effect, the roof is bound to be flat, also can't be combined with the internal space organically, we take a retreat to advance in the roof to pick out a white box, the corner of the cut is extended outward on the second floor, extending the length of the internal space, and breaking the dull and heavy pointed roof. Although the sparrows are small in internal organs, the inside of the small box is a private box space. Furniture is arranged around the box structure, and a long grille window is opened to the inside of the tavern. It stands in the small steps to look at the distance.
Rainforest. The division of space seating line is the focus of the design of the whole bar, the whole is divided into four parts, including the bar, the terrace, the central seating area, and the box. With the square streamline as the central active line, the designer thinks about the optimal scale of each small space, the interior is divided into multiple independent space dining areas, and the scene of different dining Spaces is connected in series, similar to the setting of hide-and-seek., Customers can visit different small Spaces and feel different content. In the horizontal design, the circular booth area is the highest point and decreases to the outer space successively, and the other remaining space is the scattered seating area. We define the correlation and privacy of multiple spaces, such as the enclosed circular seating area, irregular seating area, corner seating area, private box area, etc. through a large number of greenery and exposed stone and wooden furniture partitions, the concept of partition is weakened, the seal is not closed, and there is common in the interval to ensure the permeability and expansion of space and light.
In vertical design, after considering leaving the large space of the open mezzanine of the peaked roof, a part of the mezzanine space is retained by taking advantage of the difference in height, reinforcing the beams, standardizing the design to ensure safety, and transforming it into a wood-wrapped private box, which can also be surrounded and overlooked by the guests through the window after ascending to the box. From the public space on the first floor to the private box on the second floor, the layers are progressive. Using the method from the first small beginning, the space is full of roundabout, abstract, and curious, integrating into the rainforest, so that the viewer is also the scene and makes himself a part of the scene.
New nature. The bar is characterized by rich natural elements. The vegetation is given life and stones are given power. The shape and design of the roof and lighting are inspired by exotic subtropical traditional architecture. From the exterior staircase of the main building into the interior of the bar, It can be seen that the roof is connected through the wooden structure, the traditional rattan weaving technique combined with the light strip with translucent and "light" state, which greatly reduces the cost and time of construction. The center of the double-height hall is supported by wooden beams supported by exposed steel purlins. The giant columns in the vertical dimension suggest the forces on the structural members and the orientation of the space in height. The central partition is built with a large number of stone textures and varying heights of distinct green plants, and the beams and columns retain the original texture of the bare sense, maintaining the original characteristics of the building; The light bar is attached to the ground, playing a guiding role, the ground using a combination of stone and wood flooring, different paving corresponds to different dynamic lines and space use area. These elements work together to create immersive subtropical styles and be in the original and dense rain forests, which brings a unique and unforgettable dining experience to customers. The large-volume, high-ceilinged space in the natural interior scenario places more emphasis on the spatial field, the division of the sense of body, and provides a comfortable experience close to native nature in the high-density urban environment, and we hope to convey the concept of symbiosis with nature.
Project gallery
Project location
Address:MIx Sicily Village, No.A9 Agricultural Exhibition Hall Road, Chaoyang District, Beijing, China
客服
消息
收藏
下载
最近





























