查看完整案例

收藏

下载
宜兴陶瓷中心是一个为家族企业提供展厅、工作室和办公空间的私人开发项目。作为历史悠久的紫砂陶瓷制造基地,宜兴市为这座独特的建筑提供了丰富的文化背景。
The Yixing Ceramics Center is a private development providing gallery, workshop studios and office space for a multi-generational family business. Known culturally and historically for its unique ‘purple’ clay used during the manufacturing process, the city offers a rich context for this unique building.
▼项目概览,project overview © 王鹏
为了应对场地的限制和项目要求,设计采用了三个线性体块的构成形式 – 两个外翼和一个中央中庭空间。两个翼中的每一个都包含了大部分业主的使用空间,沿街一侧的体块容纳了公共定位的空间,如展览画廊和咖啡厅,而背街体块则包含了相对私人的空间,如销售和办公空间。两个翼之间由一个宽敞明亮的中庭分隔,为整个发展项目注入了开放空间。
In response to the site’s constraints and programmatic requirements, the design harnesses an approach which crafts three linear volumes – two outer wings and a central atrium space. Each of the two wings contain the majority of the client’s program, with the street side volume housing public-orientated spaces such as exhibition galleries and a café, and the rear wing accommodating private program such as commercial and office space. The two wings are separated by a generous, light flooded atrium which delivers a sense of openness into the heart of the development.
▼入口,entrance © 王鹏
▼入口,entrance © 王鹏
▼立面细部,facade detail © 王鹏
建筑的内部特点主要由中庭内的大型楼梯定义,该楼梯是一个灵活的展示空间。展示区域、种植区和休息区被整合到楼梯设计中,使客户能够在这个宁静的环境中向客户展示作品,同时轻松地引导他们到达上层。
The internal character of the building is predominantly defined by the grand stair within the atrium which operates as a flexible exhibition space. Showcase zones, planting and seating areas are integrated into the stair design allowing the client to exhibit works to visitors while they are guided effortlessly to the upper levels within this serene environment.
▼中庭,atrium © 王鹏
▼中庭细部,atrium detail © 王鹏
设计中采用了两面“功能墙”作为服务空间,无缝地连接了三个区域之间的水平和垂直通道。这些区域还被战略性地赋予了管理和满足大部分建筑机电工程需求,实现了简单而有效的功能整合。
Two ‘inhabited walls’ have been employed within the design to operate as service spaces, seamlessly articulating connections and both horizontal and vertical circulation between the three zones. These areas are also strategically tasked with managing and fulfilling much of the building’s MEP requirements, allowing for a simple yet effective integration of services.
▼中庭空间概览,atrium space overview © 王鹏
▼私人休息室,private lounge © 王鹏
为了向茶壶制造这一复杂而精致的工艺致敬,建筑立面采用了雕塑式的设计语言,外部露台被刻入建筑之中。由概念为起点的同时,这种做法也通过增加自然光和通风来为室内注入自然活力。由此产生的建筑形态唤起了一种优雅而精湛工艺感 – 这同时是对建筑用途的恰当致敬。
To pay homage to the intricate and delicate process of teapot manufacturing, the façade embraces a sculpted design language whereby external terraces are carved into the building. Although conceptually driven, this approach also infuses a sense of nature into the interior by allowing for a greater degree of both natural light and ventilation. The resulting architectural expression evokes a sense of elegance and craftsmanship – a fitting tribute to the building’s purpose.
▼展览空间,gallery space © 王鹏
▼一层平面图,ground floor plan © 王鹏
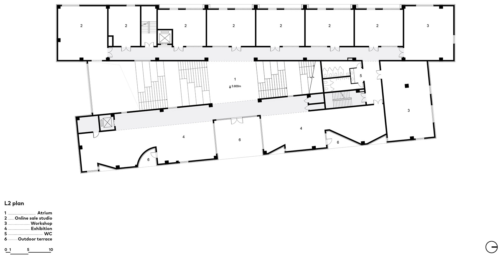
▼二层平面图,L2 plan © 王鹏
▼三层平面图, L3 plan © 王鹏
▼剖面图,section © 王鹏
项目名称:隆源紫砂
地点:中国江苏省宜兴市
建筑设计:聚合灵思建筑设计咨询有限公司
客户:江苏隆源陶艺有限公司
施工工程师:江苏全丰建筑工程有限公司
摄影:王鹏
竣工年份:2024年
面积:4500平方米
项目类型:办公+展览空间
Name: Longyuan Ceramic Center
Location: Yixing, Jiangsu Province, China
Architects: CAS
Client: Jiangsu Longyuan Clay Arts Ltd
Construction Engineer: Jiangsu Quanfeng Construction Engineering Ltd
Photographs: Wang Peng
Completion year: 2024
Area: 4500 m2
Program: Office + Exhibition Space
客服
消息
收藏
下载
最近



















