查看完整案例

收藏

下载
一杯清茶 唤醒一天的美好
一卷古籍 忘却尘世的喧嚣
题记
本案位于合肥老城闹市区,原属省委大院。五年前我们为业主打造了郊区别墅,五年后老来得子,喜舔人丁,特意为了孩子从郊区搬到市区,让孩子享受较好的教育资源。业主从事教育行业,为人师表,喜爱传统文化,对子女的教育有着较高的品质要求,可谓是书香门第!
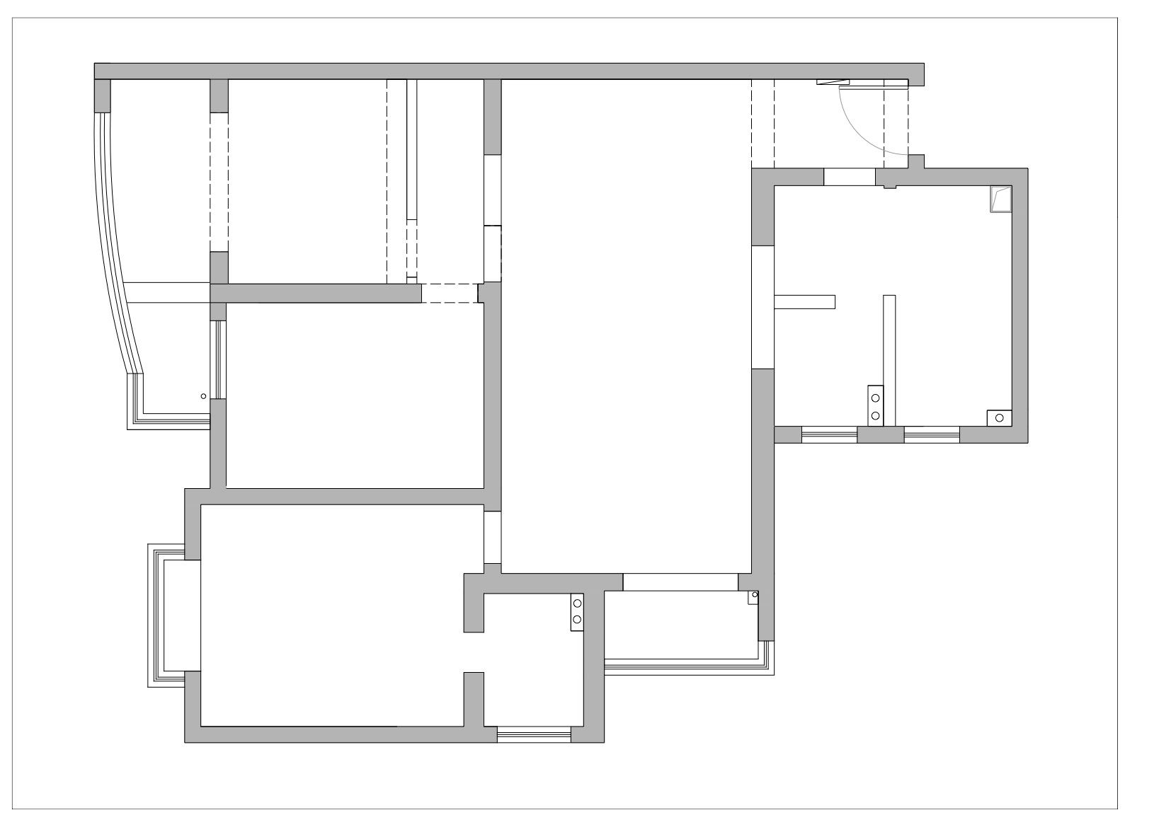
原房型各空间较为封闭、独立、采光不好。
我们
在功能美学、空间个体、互动联系之间找寻一种平衡,从而衍生出简约、精致和宁静之感
(客户家宝宝
2
岁
入镜)
延伸
玄关尺度较窄,我们设计了翻门鞋柜、折叠凳、洞洞板衣包区。从入口至客厅的鞋柜,以及一体化的风口、轨道灯光,协调一致,延展入口的视觉效果。
整合连接
因原建筑结构的不可改造,
情绪价值
遮蔽
衣柜的折叠门,遮蔽了卫生间入口的尴尬,提供了美观实用的效果。口袋移门同样为卧室提供隐私的庇护。
复合
儿童游乐室与客厅一体化不同,同样为复合空间,但思考逻辑不同。
是以儿童需求为主,附加客房功能。而客厅是以长桌的形式,容入不同的生活场景。此处多功能区以
满足儿童玩耍、娱乐、收纳、学习为主体,打开上翻床可变为客房空间,从而在有限的空间内满足业主不同时段的需求。
结束语
建筑不分大小,在小空间里创造大世界,在大世界里创造连接心灵的情感空间,与时光共生。
让我们遇见美好的生活,遇见更好的自己。
平面及设计理念
项目地址 ︳安徽合肥
项目面积 ︳120㎡
设计机构 ︳VVD·Studio润泽万物设计机构
摄影机构 ︳Remex飞羽
客服
消息
收藏
下载
最近
























