查看完整案例

收藏

下载
项目位置 / 厦门·联发五缘湾 1 号
设计⾯积 / 175㎡
设计小组 / 杨恒、林佳慧、赖慧琳
装修花费 / 120w(含软装家电)
瓜先生和爱人都是旅行作家,同时也是一对斜杠父母,他们的身份很多,爱好很多,但对家的要求却很凝练——大&自由&互动。
在女儿进入小学的新阶段,瓜先生和爱人决定给住了十几年的旧家换个样子,希望能保持原户型通透的优势,给家人创造一个更自由、带来更多互动和联结的空间。
改造后的家
△改造前的餐厅
在大家强调房间多多益善、各种功能独立时,瓜先生家则反其道而行。
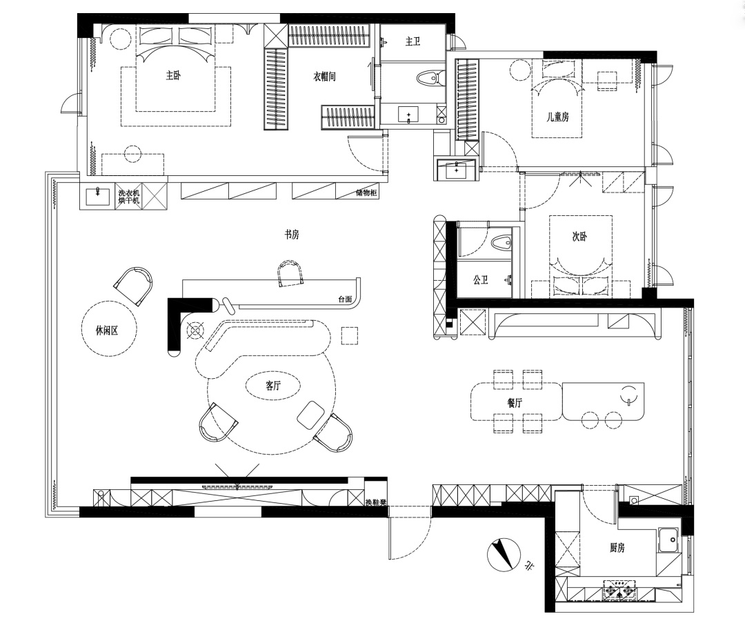
■书房改为开放式,打通阳台,客厅有了面宽近 8m 的开阔空间。这样的做法也得益于空间本身够大,且可拆改的灵活性强。
■调整客餐空间面积至合理比例,整个公区开阔无阻。
极简,与其说是瓜先生一家挑选的设计风格,不如说是他们生活哲学的必然导向。
舍弃冗余,拥抱归零的美感,无限的可能才能在简化的空间中萌发。
· 跟着镜头看看这个家吧 ·
「无一物而万物足」
空下来的家,人与人之间反而有了更多的交叉点。两条“∞”动线延伸出的无限。Route I:客厅 - 阳台 - 多功能房。开放式玄关,一进门就能看到全貌,无阻碍地感受光、声、气的流动。换鞋凳与电视柜造型结合,同时与挖空的壁炉呼应。
打通靠近客厅带阳台的房间后,拥有了 61㎡畅通的活动空间。而无法拆除的承重柱,用弧形包裹过渡至多功能书房的半墙,形成简短的分隔线。
木饰面柱体修饰看似凭空出现的墙体,与天花饰面形成像树冠生长的“T”字形的木构建筑既视感。半墙后 3.5m 长的大书桌,可以满足一家三口同时使用的需求,孩子读书的过程父母可以一路同行。
在客厅、阳台、多功能房,以“∞”形游走,打通家庭成员的所有活动。自由的客厅,让居家活动有了 N 种可能——骑车、露营、泡茶、影音游戏、拼图、画画...... Route II 厨房-餐厅-客厅
餐厅由原来局促地放下 6 把椅子,变为可顺畅通行,并且兼有长水吧台、岛台、储物的多种功能。这里就像个小卖部,可以包揽夏天的冰饮快乐。
厨房的入口和整排的储物柜拉齐,拿洗切炒再送上餐桌都能就近完成。
餐厨和客厅的联通,书房、餐厅、客厅三处皆能实现视线交汇。做饭不再是一件孤单的事。
流畅的空间就是,扫地机器人可以横扫各个角落,实现在家光脚自由。在打开的互动区域内,家庭成员即使各做各的事情,彼此仍是紧密联系在一起的。「空镜头的诞生」
仿若浑然天成的松弛感,实则是精心设计的简化美。白,不是没有颜色,而是包罗所有的颜色光。
墙面和吊顶使用艺术漆,地面采用仿微水泥瓷砖,使全屋达到了微水泥式的漫反射质感,自然光在家里像是蒙上了一层柔光滤镜。
■ 隐藏式无主灯设计拉高全屋平整度
弧形的柔消解突兀的梁柱阳角
瓜先生的太太曾去西班牙旅行,非常喜欢高迪建筑用到的弧形元素,所以设计师就利用弧形解决让人头疼的梁和柱。
如果为了藏起餐厅顶部的大横梁和空调,吊平整个天花,未免显得呆板压抑。利用弧形向上延展,暗示原本的层高,同时嵌入灯带功能,造型不只流于造型。
书房的梁柱衔接,利用弧面、木饰面、灯带的组合,形成横纵向的延伸,阳台、客厅、书房在视觉暗示下融为一体。
端景台也处理成圆润的弧面,低调的造型感修饰身在空间内的感受。
主卧延续弧面造型,有着把晚霞、朝阳捞进室内的动势。强大的收纳,减少维护成本。住所中居住的除了人还有物。极简的设计需要强大的收纳支撑,维持有秩序的生活方式。
客厅电视墙、餐厅一整面的收纳柜,以及公卫外的储物柜,大大拓展公区收纳功能,每个房间也有相应的收纳系统。在瓜先生家里,能看到极简状态下“人”的回归。繁复的物少了,家的温度多了。
客服
消息
收藏
下载
最近

































