查看完整案例

收藏

下载

翻译
Architect:Yuan Architects
Location:Zhuhai, Guangdong Province, China; | ;View Map
Project Year:2020
Category:Exhibition Centres
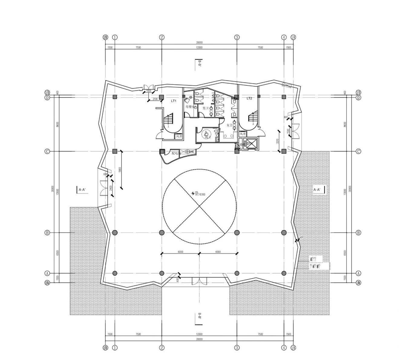
The sales center located at the most important corner of the city in Zhuhai which is designed with a unique folding glass façade. Crystal-shaped façade is reflecting and refracting the surrounding environment and light simultaneously. During the day time, the facade is more reflective and perceived as a solid building.
Then when sky is turning dark and interior lighting turning on, the building is glowing and refracting. The façade becomes soft and transparent. This façade interact with sun, light and time, from opaque to transparent, from solid to soft, from reflective to refractive creating ever-changing appearances and perceptions of the building which makes it one of the most beautiful corners in the city.
Team:
Architect: Yuan Architects
Collaborators: Wen-Yuan Peng / Ching Lu / YiSheng Lin / MingShao Gao / HipWa Lee
▼项目更多图片
客服
消息
收藏
下载
最近

























