查看完整案例

收藏

下载

翻译
Architects:Gansam Architects & Associates
Area:38503m²
Year:2020
Photographs:Seungmu Lee
Manufacturers:Hansgrohe,Koa,LG Hausys,TSblock
Interior Design:Asylum
Landscape:HLD
Design Team:Insoo Lim, Kyungmi Ahn, Donghee Lee, Yeeun Seo
Clients:YOJIN Construction & Engineering
Collaborators:OTD
Consultants:GBI, CUSHMAN & WAKEFIELD KOREA
City:Yongsan-gu
Country:South Korea
‘Itaewon-dong, Yongsan-gu’ is the first special tourist zone designated in Seoul back in 1997. The army base in Yongsan used to be occupied by the Japanese Army until the US Army took over after the national liberation of Korea. Afterward, small stores and bars targeting American soldiers opened and the military camp town emerged, turning the place into an amusement district for US soldiers. The urbanization of the area into a community of American soldiers and related foreigners continued. Itaewon became known to the world after various international conferences and events, including the 1988 Seoul Olympic Games, were held in the 1980s. It turned into a tourist attraction visited by tourists from all countries including Japan. The former Capital Hotel, which opened in 1988, took this tourism demand into account when it opened and included various entertainment facilities, such as a nightclub, karaoke, and sauna. The 30 or more years were long enough for demands to grow for a variety of changes in the hotel’s business structure and zoning system regarding the changes that have taken place in the culture of the Itaewon region, where the hotel is located.
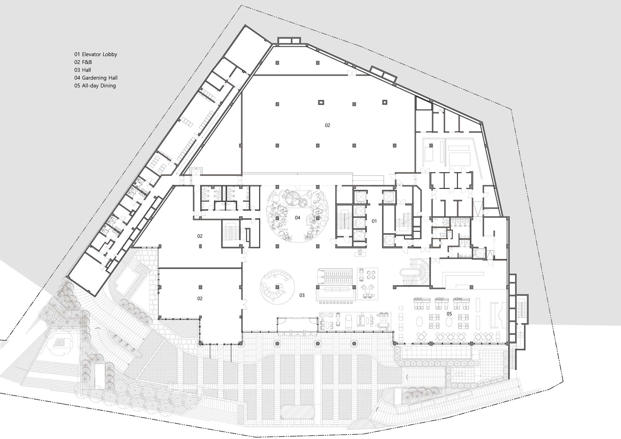
This project intended to remodel the exclusive hotel space into a combined retail + hotel space. The spaces in the basement for entertainment facilities were replaced with new programs that can draw synergy with a lifestyle hotel. The MD was composed of programs such as a lifestyle book shop, book cafe, craft beer house, and rooftop party pool to incorporate the exotic culture of Itaewon into the hotel. Escalators were installed to improve the accessibility to the underground and the sunken space accessible from existing roads outside was expanded. Furthermore, the concrete roof was cut to install the glass ceiling (Top Light) for some underground spaces to draw natural lighting down to the underground space.
The design solution for lowering the entry barrier as a hotel was concerned with how to handle the main gate. The predecessor, Capital Hotel, had the main gate and canopy on the front side like other hotels. For the current hotel, it was presumed that customers to the new retail stores would have a huge psychological burden on accessibility if they had to go through the hotel’s gate to reach those stores located in the lower stories. To eliminate the burden, the main gate and lobby space of the hotel was moved from the first floor to the second floor regarding the characteristics of the inclining land, and the main gate and lobby space on the first floor was opened to everyone to access conveniently by changing the zoning and design. The Drop-Off Zone, which was newly constructed at the rear of the second floor, is the new canopy designed to suit the new brand identity of the hotel.
Project gallery
Project location
Address:23 Jangmun-ro, Yongsan-gu, Seoul, South Korea
客服
消息
收藏
下载
最近




















