查看完整案例

收藏

下载

翻译
Architects:studio anettai
Area:204m²
Year:2020
Photographs:Hiroyuki Oki
Lead Architect:Takahito Yamada
Clients:Burger Bros
Country:Vietnam
"Demolishing" and "Peeling-off" ― using limited techniques, the architect transformed a typical Vietnamese house into an open, semi-outdoor restaurant. This is a project to use 3D visualization as a communication tool in the current social situation in which we cannot meet face to face. Restaurant as a Beach House.
The site is located in Da Nang, the third-largest city in Vietnam, which has become one of the most famous resorts in Asia. The existing building was a typical Vietnamese house in that the space was subdivided as much as possible with many partitions in order to create as many private rooms as possible for the growing urban population. In this resort area, such a closed-off space seemed inappropriate. The goal we reached with the client was to create an open "beach house".
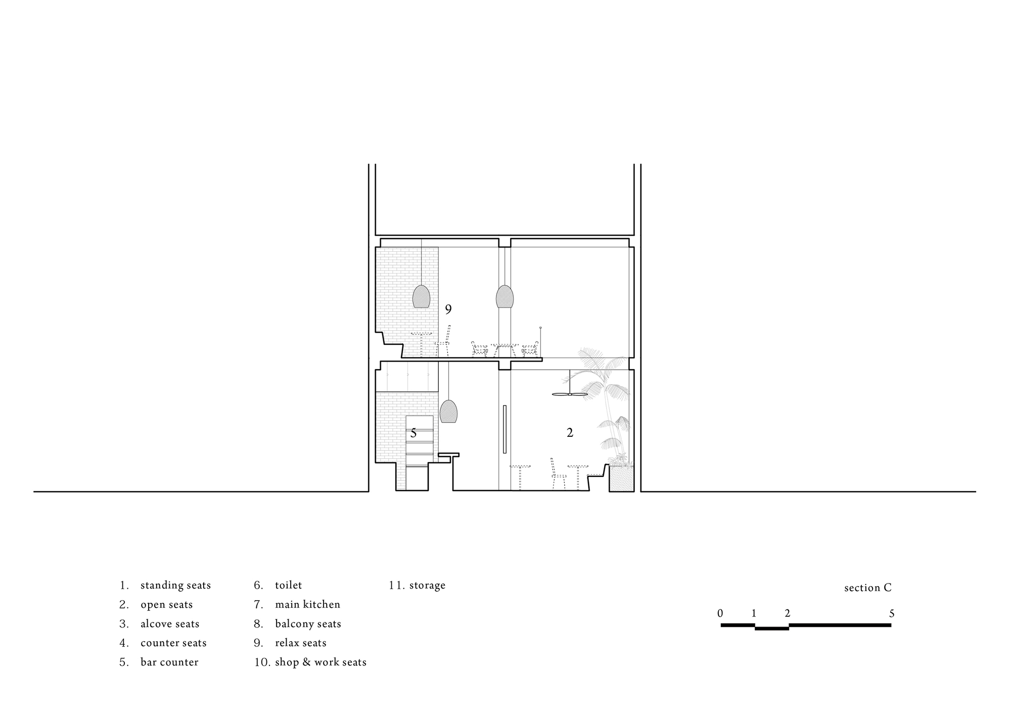
Demolishing & Peeling-off. Considering the limited budget and the unstable situation caused by the Covid-19, we proposed to convert the space by demolishing and peeling existing things off instead of adding new things. First of all, we demolished almost all the partition walls and the walls on the facade. In addition, by demolishing half of the 2nd floor, we created a connection among the Front street, GF, Mezzanine, and 2F, as if to go around the void. The huge volume of space brings a feeling of the exterior into the interior space, even not unlike a former residence.
Thanks to the complex floor levels of the original, a variety of spaces with different heights have been created. Such as open seats at ground level with extremely high ceiling, cave-like alcove with a low ceiling, and lounge seats looking down the void, etc. For each of the finishings, we decided not to add as much as possible, but only peel off the existing finishing and remove away the decorations. Only the existing bricks were painted with a thin layer of white paint. Normally, finishing demolition is a delicate and labor-intensive process. However, in Vietnam, where labor costs are low and the supply of building materials is unstable, it is more effective to have craftsmen take time and effort to neaten what is already there.
Covid disaster and 3D visualization. Shortly after this project began, a strong lockdown was imposed in Vietnam due to the global spread of the Covid-19. The project proceeded without the possibility of actually visiting the site or even meeting the construction company face to face. Under such circumstances, the communication tool that proved most effective was 3D visualization. 3D data was updated and shared internally, prioritizing it over the drawings, so that not only the client but also the local construction company and workers with language barriers could always have a concrete idea of the space. The 3D visualization here is not just an image, but a kind of north star for all of us to share the goal to be realized in the end. It will always be there, pointing out the direction the ship = project should go.
Project gallery
Project location
Address:30 An Thượng 4, Bắc Mỹ An, Ngũ Hành Sơn, Đà Nẵng 550000, Vietnam
客服
消息
收藏
下载
最近



























