查看完整案例

收藏

下载

翻译
Architects:Martins Pimenta - Arquitetura e Construção
Area:330m²
Year:2023
Photographs:Ivo Tavares Studio
Lead Architect:Bruno Pimenta
City:Matosinhos
Country:Portugal
Text description provided by the architects. Located in Matosinhos, Casa da Fonte Velha is the result of a careful approach to creating a contemporary family home that values coexistence. This project, designed for a young couple with three children, focuses on the harmony between living spaces and the ease of hosting friends and family.
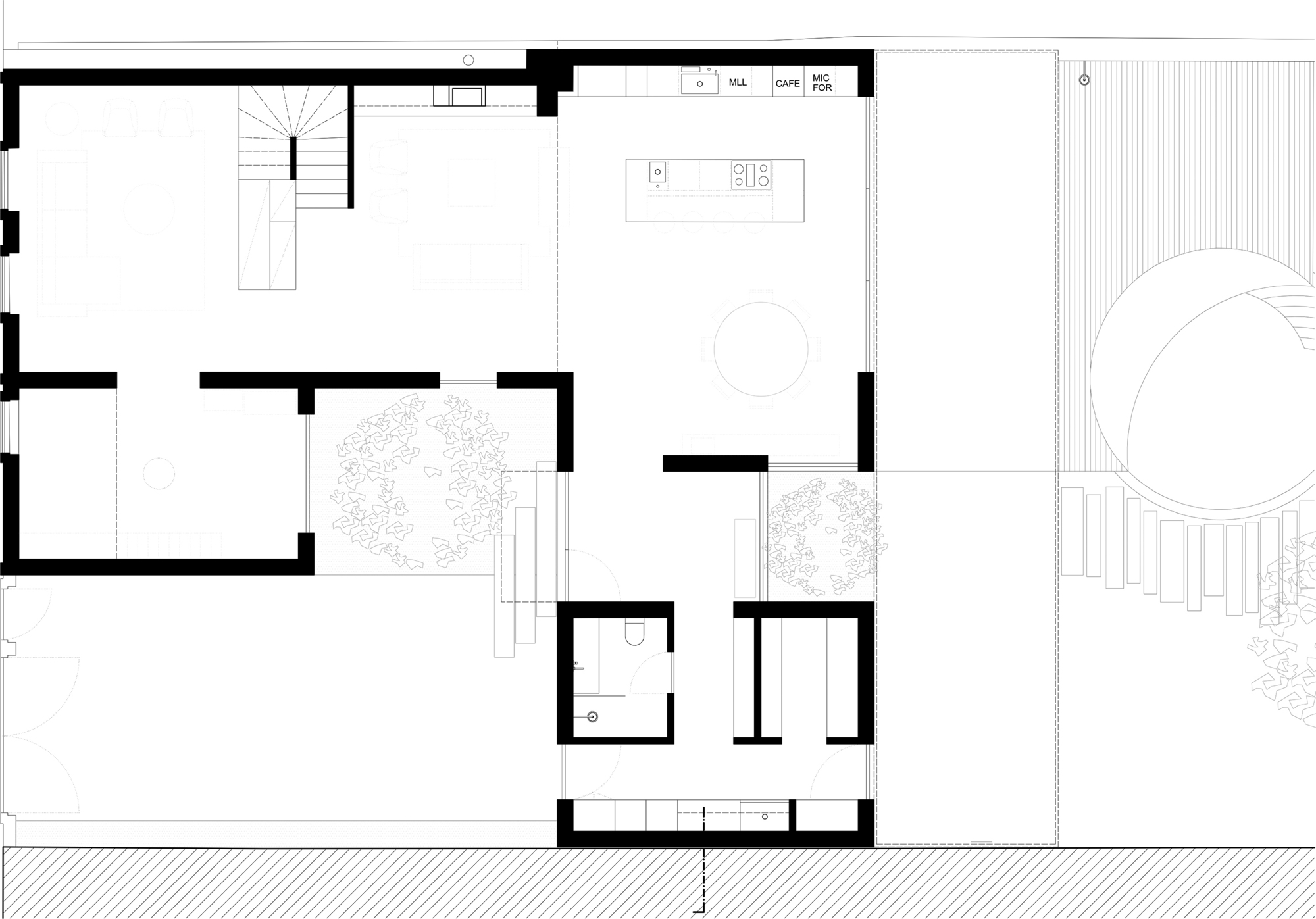
The house was designed respecting the existing structure, making the most of the previous volumes to integrate the new residential program naturally. The facade retains its original appearance, while the interior is characterized by simplicity and the use of raw materials such as concrete, wood, and white walls. These materials not only emphasize the contemporary aesthetic but also ensure an intimate connection with the garden.
The kitchen, positioned at the heart of the house, serves as a central meeting point, directly connecting to the outdoors. This area is specially designed for moments of union, facilitated by large windows that completely open, blurring the boundaries between inside and outside.
On the ground floor, the living areas extend outdoors, providing a perfect environment for hosting. The distribution of spaces was thought to be practical and flexible, easily adapting to the needs of a constantly changing family.
The bedrooms, located on the upper floors, are designed with attention to comfort and privacy. The layout allows the spaces to adapt, especially with the children's rooms that can be connected, offering versatility and space for play.
The house, now transformed, serves as a testament to the transformative capacity of architecture from a pre-existing ruin into a core of family life that is both functional and welcoming.
Project gallery
客服
消息
收藏
下载
最近














































