查看完整案例

收藏

下载

翻译
Architects:OFIS Architects
Area:195m²
Year:2023
Photographs:Tomaž Gregorič,Janez Martinčič
Lead Architects:Rok Oman, Špela Videčnik
Project Team:Andrej Gregorič, Janez Martinčič, José Navarrete Jiménez, Mateja Obid, Mia Bećirević, Lise Chemin, Tereza Mirska
City:Ljubljana
Country:Slovenia
Text description provided by the architects. Although as much as 80% of Slovenia is covered by forest, in the last century most family houses were made of concrete and brick. These are materials that are considered to be durable, earthquake-safe, and economical. Houses made of timber have been reawakening only in the last two decades, mainly due to raising awareness of sustainable construction and the well-being of living in a wooden house.
Inhabitants of the house. 4 family members ...went through years of struggle with children's severe allergies. Over the years, they have eliminated virtually everything that is not natural, and the challenge they have set themselves is to build a home in which there are no artificial or chemical materials and treatments. -a cat … never goes to the garden-the parrot … needs a view of the greenery-the dog … should not leave the garden
The brief and an existing 50-year-old magnolia tree dictated the concept design. A walking balcony for the cat, a large window facing the tree for the parrot, a fenced garden, and a service part for parking and garden storage. The house is made entirely of wood, treated with glues and protective coatings on a completely natural basis, the insulation is made of hemp, the plasters are clay and the structure has no metal supports.
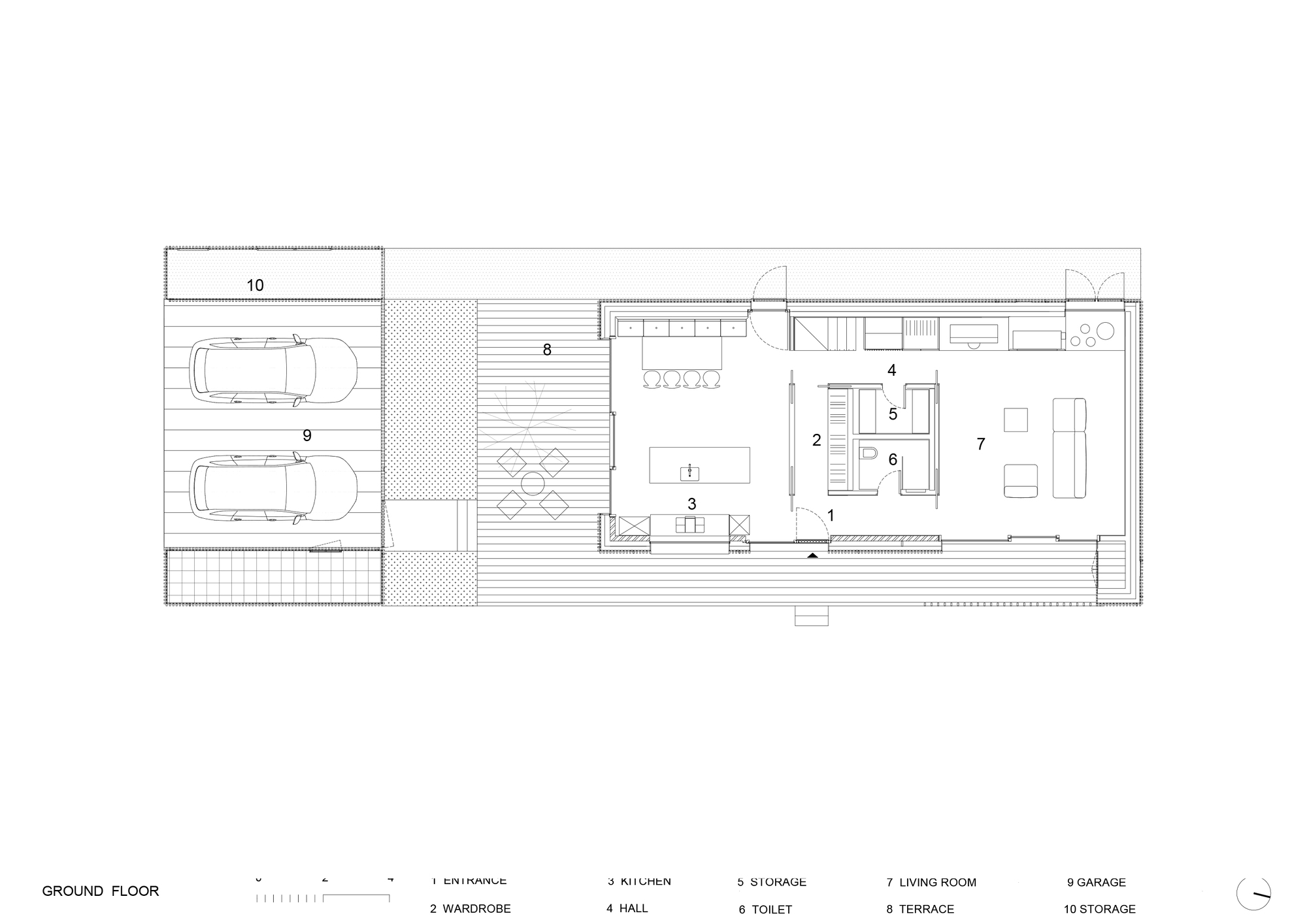
The main access to the building is via the existing connection to the local road on the western side of the plot. The building is structurally separated into two parts, the residential part and the service part. The service includes a parking carport, a bicycle shed with storage and service space on the ground floor, and a terrace on the upper floor. The main concept creates the major garden area in front and leans the building on the edge of the longitudinal part of the plot. The volume length is 30 meters, it embraces the existing magnolia tree creating an additional private patio in the front of the dining area.
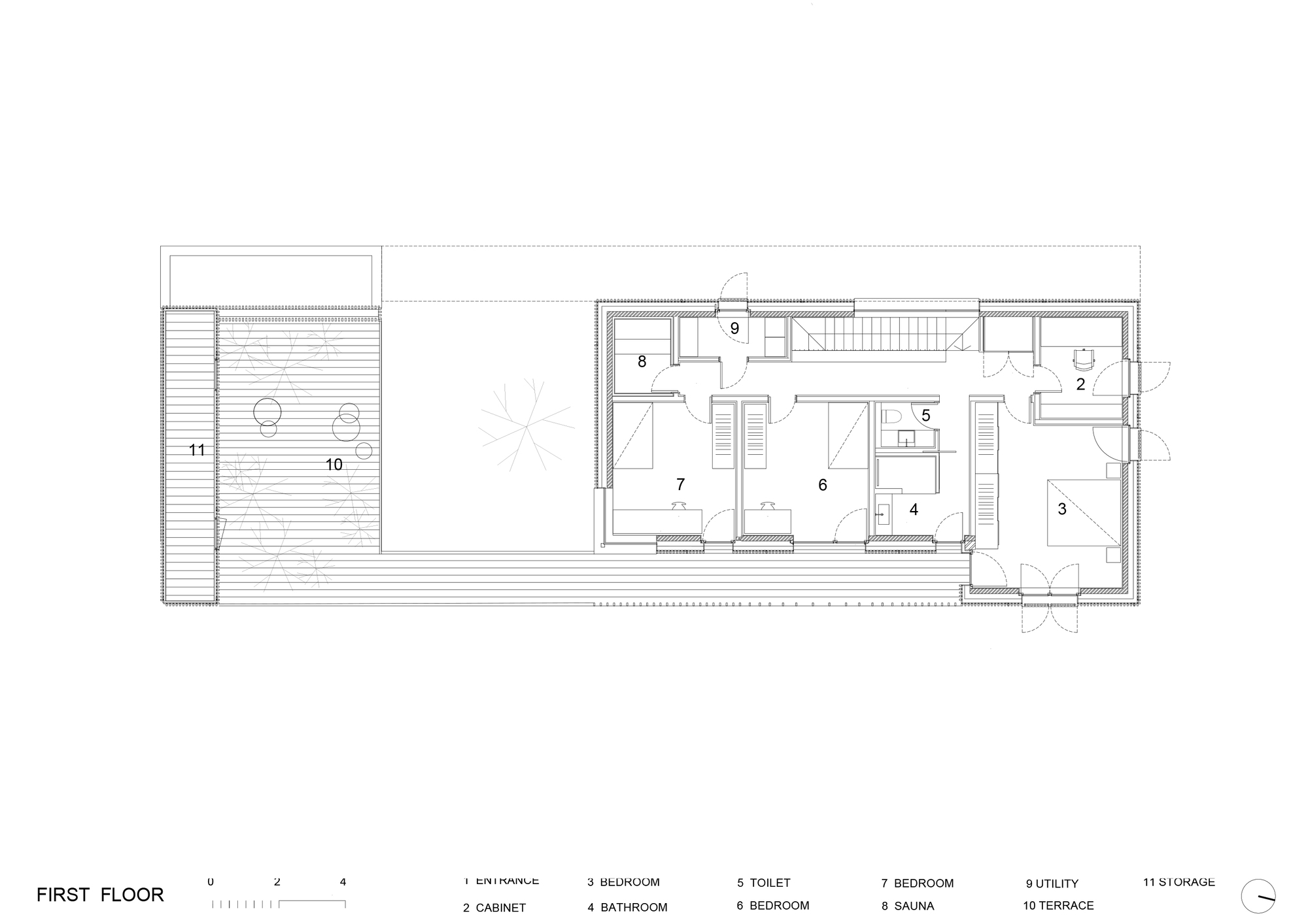
The patio also divides the entrance from the house's residential part. The ground floor of the residential part includes a living area, a kitchen with a dining room, toilets, a storage room, and sleeping rooms on the upper floors. The residential part is connected to the terrace part above the carport with a bridge as a special request of the client to provide a private garden for cats enabling them to roam around without leaving the house … a catwalk house
Project gallery
客服
消息
收藏
下载
最近







































