查看完整案例

收藏

下载

翻译
Architect:A31 Architecture
Location:Glyfada, Greece; | ;View Map
Project Year:2021
Category:Offices;Hotels
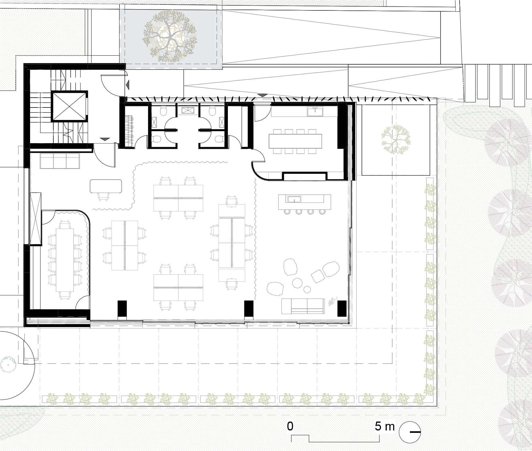
The OGARDEN by A31 is an adaptive reuse project, converting a 1050m2 office building on Fivis & Lazaraki streets in the area of Glyfada, into a mixed-use building featuring short term boutique apartments on top and office space on the ground level. Most exterior and interior building elements other than the structural frame and circulation core were removed, and cantilevered balconies were added on the 2nd,3rd,4th floors overlooking Fivis street. Truthful towards materials and construction, the design process followed clean lines and aimed to produce an extroverted building through the use of large openings that offer uninterrupted views towards the neighboring waterfront.
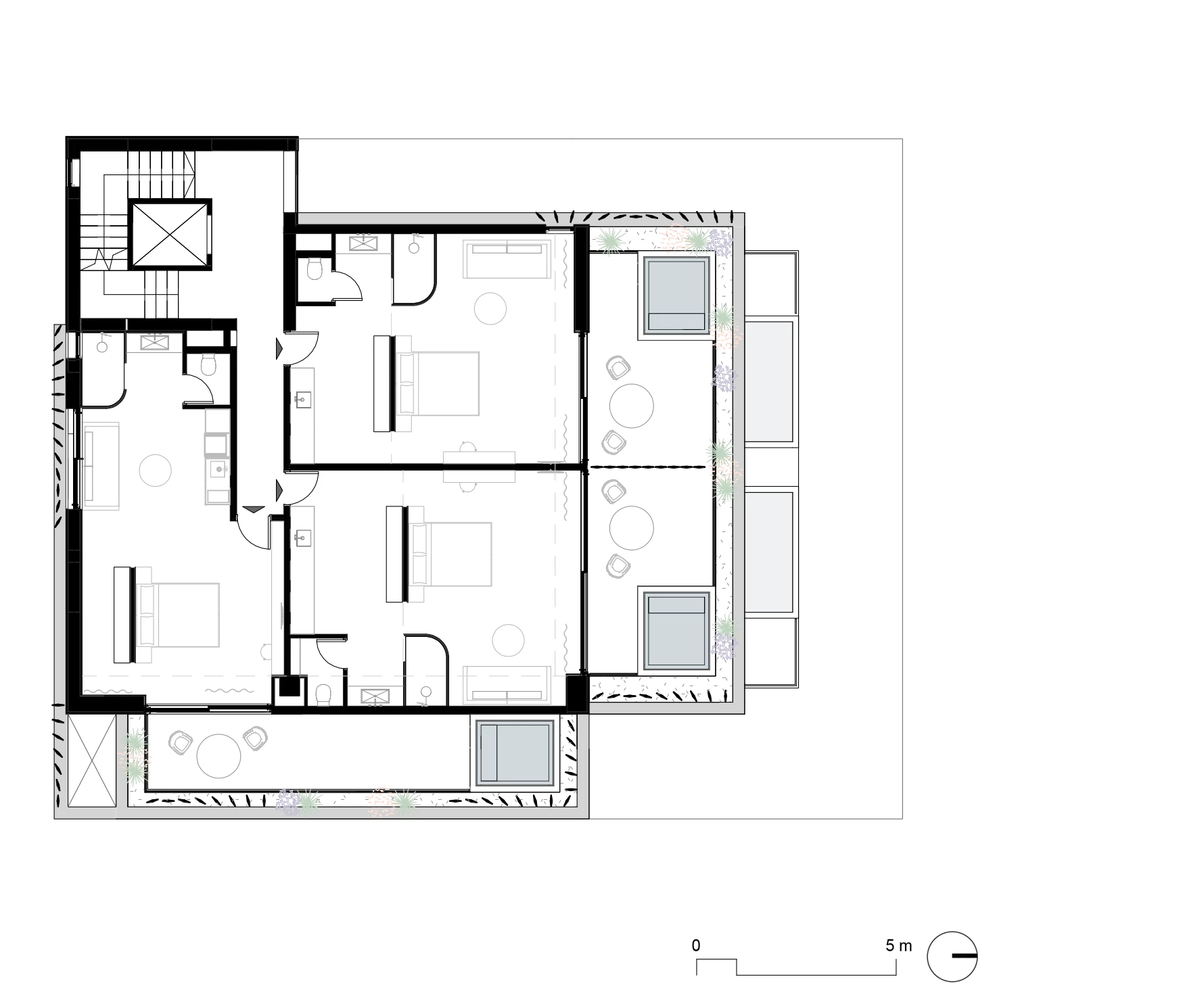
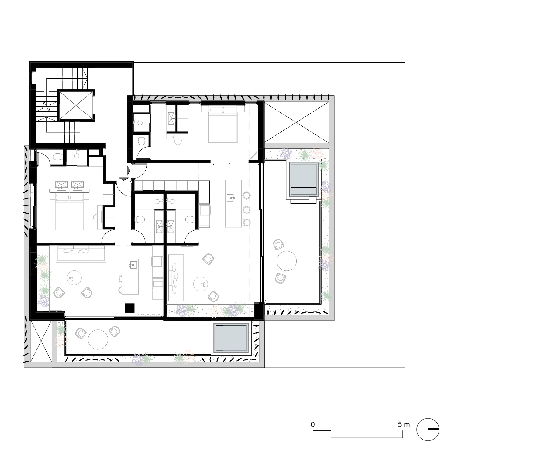
The building consists of a ground floor, three residential floors topped by a penthouse, and two subterranean levels. The lower basement is dedicated to parking space while the upper has absorbed all services for the owner’s ground level office space, most of which is open plan. Typical floors 1 and 2 contain three apartments ranging between 45-50m2 each, while the third floor features two apartments of 70-80m2 each with privileged seaside views. The 35m2 fully glazed penthouse is equipped with a pool, barbeque, deck, and green roof with an uninterrupted sea view. Apartment interiors were designed as open plan, while the selected materials, finishes, and FF&E reference Greek aesthetics reinterpreted through a contemporary lens. A key element to the project’s design identity is the pervasive terrazzo flooring that is used on most interior, exterior and communal areas, other than the office space and penthouse. The flooring designed exclusively for this project creates an ongoing harmonious conversation with the vertical shading louvers that line the building exterior.
The design process also adhered to sustainability principles, formulating a context-appropriate strategy through technical innovation of the highest aesthetic standards. Bespoke vertical and horizontal shading elements mitigate heat gain wherever necessary, aided by the cross-ventilated penthouse, green roof, and planting on all floors.
One of the most prominent building components introduced in this project are the vertical white concrete louvers, employing Naxos and Tinos marble as coarse aggregate, thus creating a contemporary terrazzo shading feature of sculptural quality. These new fixed louvers create a second skin that ensures adequate shading and privacy. Their layout has been derived by one of the project’s key neighboring elements, the waterfront, located a mere 300m away from the site. Their positioning angle, unique to each louver, is determined by the Fourier series, the mathematical sequence that describes a wave. Incident sunlight accentuates their curvature, as does the shifting shadow cast by the building overhangs as the sun progresses from east to west, projecting live semitonal waves.
The horizontal shading elements, the pergolas both at grade and on the roof, adopt a similar solution in a lighter material, aluminium, in response to their reduced loadbearing needs. The penthouse pergola in particular, which also shades the penthouse pavilion, is instrumental in reducing thermal loads on the roof, ensuring a sense of comfort within the topmost building level, and inscribing the project’s conceptual basis on its “5th elevation”.
Finally, vegetation on exterior surfaces is also a strong element of the architectural design that aims at improving thermal comfort, reducing the energy consumption of the building and its environmental footprint.
Thus, in collaboration with the Landscape Architects of our design team, there was an interdisciplinary approach to the treatment of vegetation. The planting scheme on the facades was inspired by the louvers of the architectural project. Plant species easy to adapt to the local microclimate create flows of different textures, colors, and aromas, legible on the facades of the building. The planting palette includes low shrubs, ground cover, climbing and hanging plants. A key element of the planting proposal is the combination of species with different flowering seasons, the selection of aromatic plants, and airy ornamental grasses that enhance the “waves” of the louvers as they move in the breeze.
Within a larger context, vegetation has a dual character. At the street level the garden is extroverted, due to the unified design of the private and public green space. The perimetrical plantation of low shrubs in a "soft", organic arrangement stands in contrast to the strictly pruned hedges that define the lawns of the neighboring buildings. On the other hand, greenery on the terraces has a cozy and introverted character, blurring the limits between outside and inside while also functioning as a natural filter for air-borne pollutants.
▼项目更多图片
客服
消息
收藏
下载
最近




























































