查看完整案例

收藏

下载
漫开柔光的雅致氛围,彷彿将时空凝缩于一刻,参拾柒号室内设计 以不疾不徐、自成一格的信念,稳实接住了主人对老屋改造的期待及委託,揉入纯粹线条与老件烘托,粹酿出日系侘寂古朴之美。
拉开时间卷轴,这幢40 年老屋也难逃因壁癌侵蚀,造成表面凹凸不平的命运,“但我们没有将牆面全部批土处理,反而留下部分原始痕迹,作为特色。”设计师表示,体现侘寂精髓中的不完美、不规则与粗糙的质地,是揭开本案叙事轴线的关键。
与此同时,面对原始格局区域比例、採光不佳的情况,也逐一检视并提出解方。拆卸挡住单面採光的厚牆,改以口字框的玻璃门片取而代之,瞬间迎来朗澈日光;微调既有的餐厨区块,使两区之间达到合理配置,优化行经动线,援引同样具有通透性的木格栅为滑门,纳入引自阳台的光源,汇聚光迹、自由流窜。
Q:本案取名《物哀》的涵义?
“世界上最不平凡的美,是家裡的美。”设计师认为家的模样,正能流露对生活初衷嚮往的画面,展现独有姿态。喜爱褪色调的主人,将对事物转瞬消逝的轻柔渴望,化作一抹纹理、一盏微光以及一缕书香,看似不著痕迹却又直抵心坎,接受万事万物有盎然生命力亦有消失的流转。
Q:如何营造侘寂古朴?
低饱和度的柔和色系衬底,特殊涂料的肌理蔓延全室,轻柔描摹轮廓线,格栅、小冰柱玻璃直线语彙的出现,调入禅意与朦胧感。沉稳深褐色核桃木皮与藤编相伴,轻盈裸现大地如初的原色状态,泥作洗手台的灰朴调性与迷你马赛克砖和谐并陈,点亮金属复古吊灯,一切恰如其分,包容入日常中。
项目基本资料
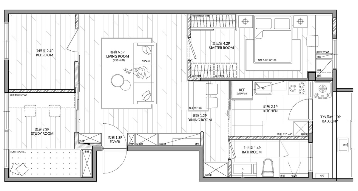
台北社子岛 / 屋龄 40 年 / 公寓 / 85平方 / 格局 2+1 房 2 厅 1 卫 / 居住人数 2 大
< 屋主需求 >
• 改善採光问题
• 调整餐厅与厨房的比例
• 扩大卫浴的使用区块
• 保留自然岁月的年代感
1. 玄关设计:
不刻意围塑有形的落尘区,打开门后即是一片宽敞境地,左右两侧收束鞋柜与与收纳柜,与粱下宽度切齐、表面予以沟缝线条,简洁俐落。
2. 客厅设计:
淡雅之笔轻画于此,谢绝多度华丽堆砌,留下一方纯粹透澈本质,在特殊涂料镘抹的肌理中,盛装两人相处的点滴片刻,暖心而朴实。
织染米色调柔和雅韵,牆面饶富层次的纹理透出一丝丝斑驳感,搭衬屋主喜爱的复古老件,木质茶几、年轮实木圆椅,与客厅相邻的主卧入口亦消隐于无形,让视觉延伸并放大空间感
捨弃大面积的制式电视牆,而是将电视悬挂于书房与次卧中间的壁面,不受任何拘束,两侧原先会挡住採光的立面,换成光透润泽的玻璃,引光入室,带来清朗的明亮光洒。
3. 餐厅设计:
设计师提及双方接洽之初,屋主对于原始格局的餐厨比例配置不甚满意,原有的餐厅过大、厨房太小,透过此次改造,重新型塑用餐区域并以格栅门片为轻隔屏,与厨房有所区隔。
特殊涂料蔓延至餐边柜,与核桃木皮互相温柔衬托,流露稳歛静谧的气息,抓出适当间距的层板,拓增餐区储物量能,也可兼作展示家饰品或纪念小物的平台,侧边以圆弧修饰后,消弭尖锐视感。
垂落一字形简约木吊灯,恰与直线语彙的格栅门片成为一直一横的趣味构图,木格栅不仅饶富禅意也具备通透性,不全然遮蔽自工作阳台引进的自然光。
4. 书房设计:
滑开安装轨道的木条口框玻璃门,迎来日系的淡然质朴况味,光线穿透过木百叶映现疏密光影,形成一幅悠然景致。
坐在上掀式架高木地板,享受安静不被打扰的阅读时光,一切静谧自在、随心所欲,相伴沉稳深褐色藤质木柜,油然而生一股质简古朴韵味,意蕴悠长而隽永。
5. 主卧设计:
与壁贴合的隐藏门后,是主人的私领域,延续特殊涂料的独特感与艺术性,环绕睡卧眠区,上方以灯条辅助,再衬以温润木调,烘托出和谐雅朴质调。
核桃木皮拉出半高牆,搭配精緻小巧的壁灯,点亮温馨角落,一旁相偕小冰柱玻璃门片的衣柜,若隐若现的朦胧美感,增添些许诗意。
落下一道弯弧带过转折处,以柔弧取代尖角,捏塑平衡视感。加大梳妆檯面,并同步于侧边柱子凹洞内装设层板,当作书架使用。
6. 卫浴设计:
日式简约泥灰色洗手台,先以木作框出雏形,再用日本品牌的防水涂层补强,最后以泥作贴砖收尾,同时铺叙白色马赛克砖与金属吊灯,流泻一派浑然天成的复古风情。
< 总体规划 >
7. 家具配置:
呼应侘寂古韵的居家情境,选用细致的实木茶几与年轮木座椅,呈现斑驳感以及独一无二的刻痕。
8. 灯光设计:
镀锌管加吸顶灯为屋内主要照明,并预留吊扇位置,餐区悬垂外型简约的吊灯,做出场域属性的划分。
9. 收纳安排:
秉持公区宽阔的原则,避免过多厚重柜体编制,以重点式储纳为主。像是玄关处,以矮柜衔接收纳柜与设有层板的餐边柜,一体成型;书房借重上掀式架高木板与抽屉,主卧则灵活应用现成衣柜、吊衣杆,收拢衣物。
10. 建材挑选:
特殊涂料、格栅、小冰柱玻璃、木百叶、系统柜、泥作、核桃木皮、造型壁灯、藤编、雾面玻璃、马赛克砖、镀锌管
11. 色彩设计:
米色调的知性温润,搭以暖棕色木地板,白色马赛克砖与水泥灰相互陪衬,古朴雅韵的笔触中推展出自然岁月的年代感。
客服
消息
收藏
下载
最近























