查看完整案例

收藏

下载

翻译
Firm: COXarchitects
Type: Residential › Private House
STATUS: Built
YEAR: 2017
SIZE: 1000 sqft - 3000 sqft
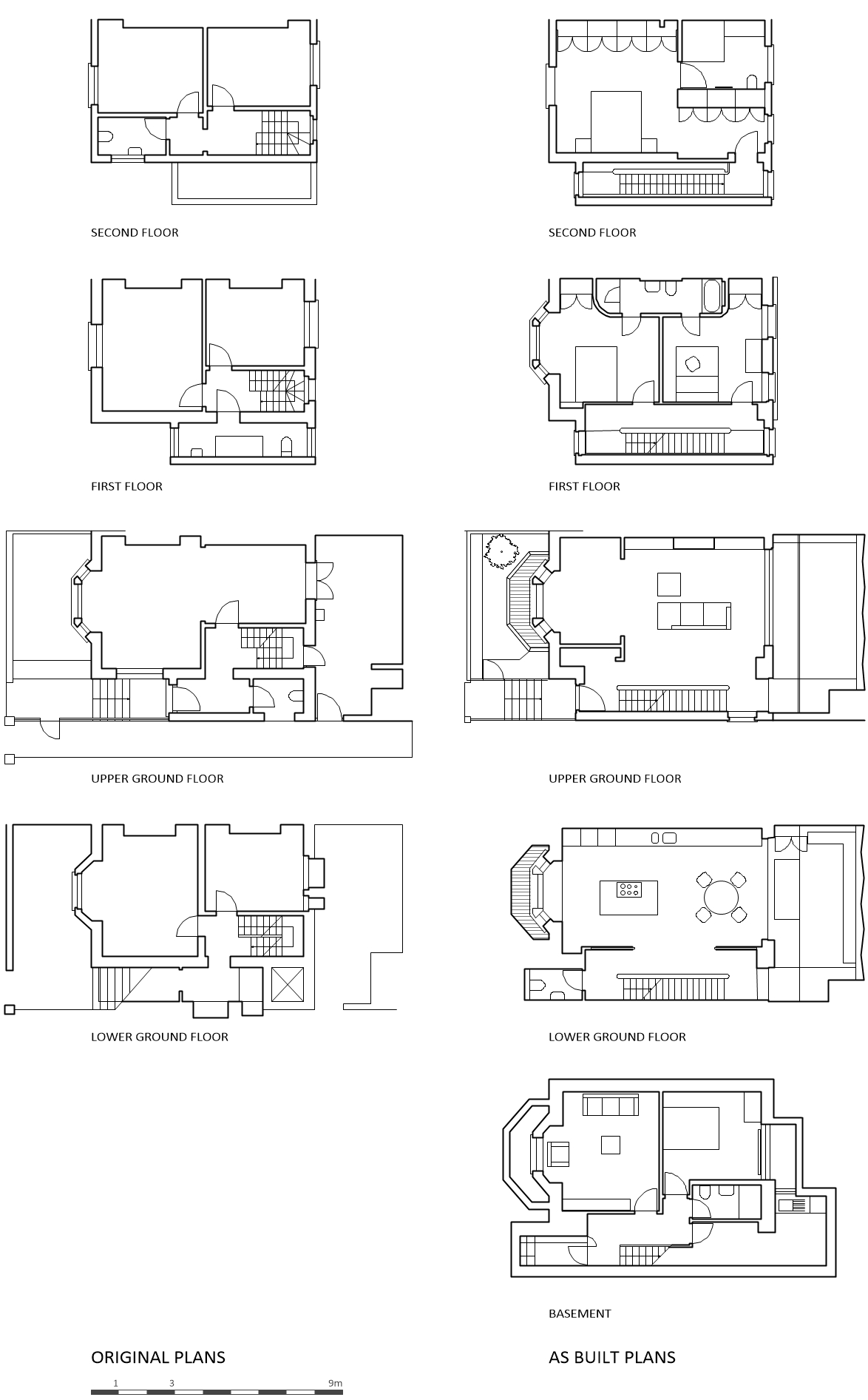
Finding space for an elegant new staircase unlocked the potential of this run-down 1820s villa in London's Kensington district.
客服
消息
收藏
下载
最近

















