查看完整案例

收藏

下载

翻译
Resort Bali
We would like to present the large-scale project in Bali with pleasure.
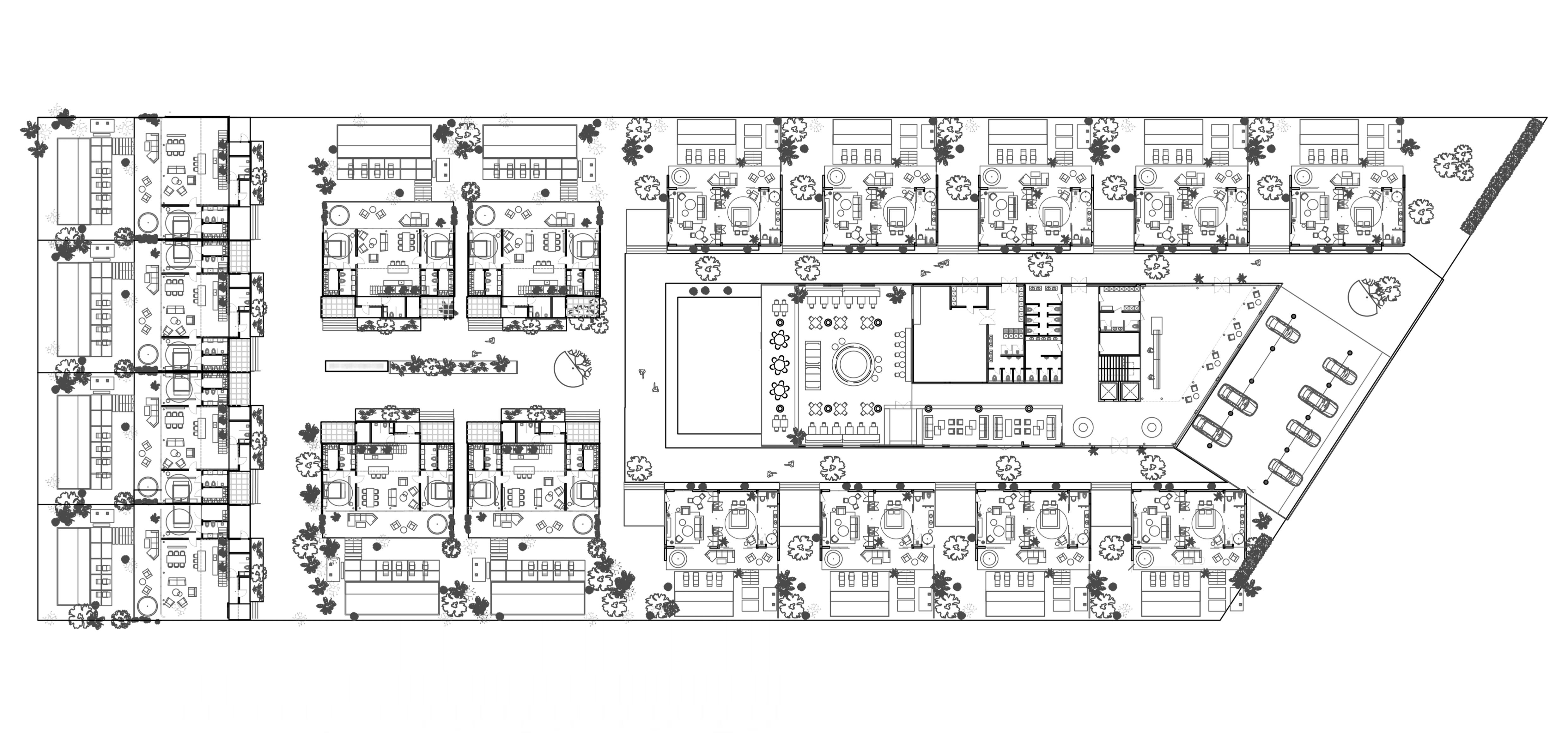
This luxury resort complex has been carefully thought out and includes a hotel, private villas, restaurants, bars, spa, roof terrace and underground parking. The building fits perfectly into the tropical environment and stands out from other places thanks to its minimalist and modern design, which is not typical of Bali.
Location: Bali, Indonesia
Land area: 1 hectare
Hotel area: 7 700 sq.m.
Project team: Samoilenko architects
Visualizer: Komar Vadim
The island's market is growing and new interesting places for recreation and entertainment are emerging. The main goal was to create an exciting, functional living and leisure space for connoisseurs of European comfort and premium services. In a place where every guest will not want to leave their space for a long time and will always want to return.
From the first step inside, guests are amazed by its scale - an atrium of 6th floors and a lobby with a huge marble reception desk, which smoothly flows into the lounge area and restaurant with an open terrace.
The chic restaurant is a major attraction for special occasions and intimate evenings with an outdoor terrace overlooking the pond.
THANK YOU FOR ATTENTION
GET IN TOUCH
+1 (917) 870 1091
客服
消息
收藏
下载
最近














