查看完整案例

收藏

下载

翻译
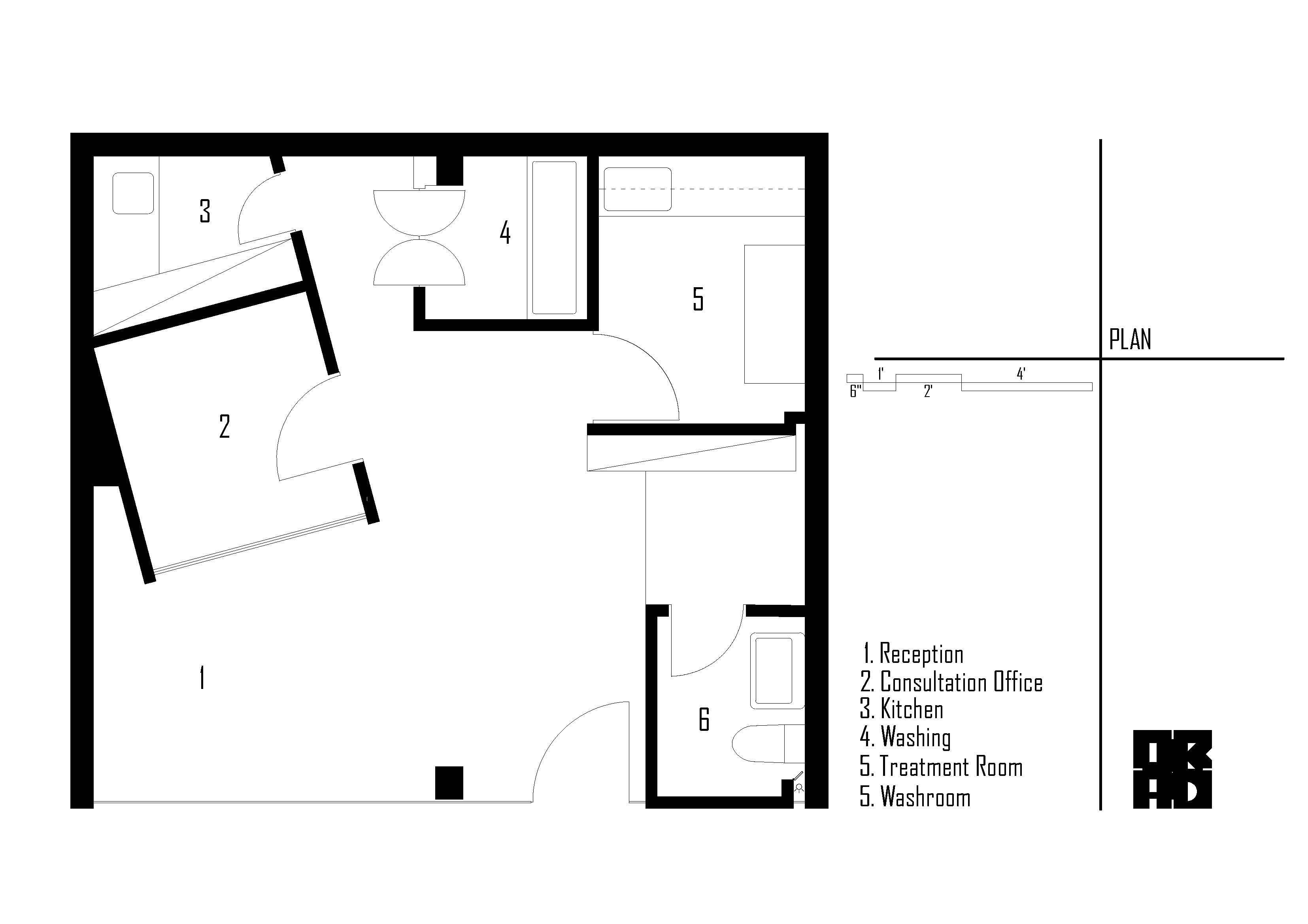
Space is perceived as a congregation of multiple scales down urban forms. The site is a small cube in the bustling bazaar in F6, Islamabad. Space serves to a complex system of a veterinary clinic. Each box is wrapped in a different material to denote the function. Blue space is a washing space. The wooden form is office/consultancy space. Polycarbonate box is a procedure room and white form is a toilet. Glass façade exposes the inner geometry of space to a passerby. All the surfaces are Matt and non-reflective. Polycarbonate sheet provides a visual barrier and sound insulation in the space. Clear height of the space was 10’. All the forms were tapered off to open up the space.:
Architecture Firm: Office for Radical Architecture Disciplines:
Firm Location: Islamabad, Pakistan.:
Completion Year: 2020:
Gross Built Area: 598 sqft.:
Project location: F6, Islamabad, Pakistan.:
Lead Architects: Muhammad Ali Sanaullah:
Photo credits: Dawar zia :
客服
消息
收藏
下载
最近















