查看完整案例

收藏

下载

翻译
Firm: LEVENBETTS
Type: Residential › Private House
YEAR: 2013
SIZE: 5000 sqft - 10,000 sqft
Photos: Michael Moran Photography (9)
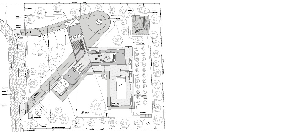
Dividing a 1-1/4 acre square lot into three yards, the house re-configures the typical suburban lot organization of front yard / back yard where the driveway is in the front and the pool is in the back. In contrast, 36SML House has three yards. Each yard is programmed according to its activity: a recreation yard toward the south with a pool, a garden yard facing west and an auto yard for cars, motorcycles and go-karts. Framing each yard, the house becomes a three spoke division between these yards. At the ground floor the three spokes divide into a living wing, kitchen wing and garage wing; whereas the second floor is divided into a guest wing, a children’s wing and parent’s wing.
At the intersection of the three spokes at the second floor is an outdoor sun deck / evening movie watching amphitheatre that doubles as steps up to the roof deck with views to the ocean. At the ground level, the space below the amphitheatre is the drive through breezeway providing access to the garage and auto courtyard. At the ends of each spoke on the second level, the house cantilevers out off of its first floor base. The braced steel structure is designed to resist gravity loads as well as the intense lateral wind loads that occur near the beach. These structural elements are visible throughout the house through the large glass openings at the ground level.
The house is clad in concrete panels: GFRC custom formed panels at the lower level and smooth cement board panels on the upper level. The windows have sliding perforated aluminum screens for sun shading and privacy. Inside the finishes are concrete with white oak floors and cabinets.
客服
消息
收藏
下载
最近


















