查看完整案例

收藏

下载

翻译
Living Area
Location: Riyadh, Saudi Arabia
Scope : Design , Visualization
Line Designs Studio.. All Rights Reserved
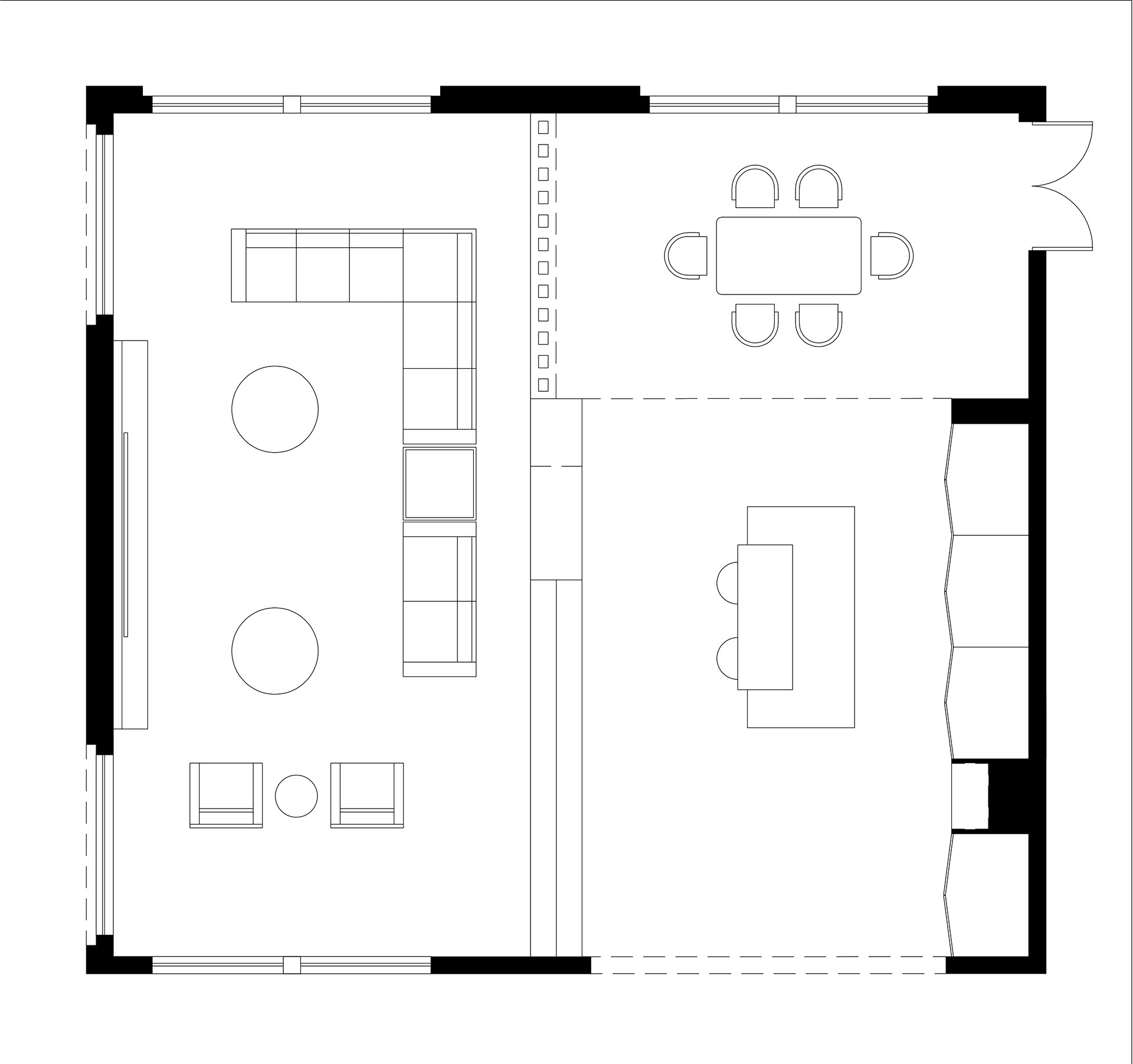
Regarding the client's needs is one of fundamental and most important tasks to accomplish the suitable design for each person, in this particular project the client told us all about how wasted the spaces were inside this living area and how the furniture distribution wasn't comfortable and sufficient in her very first conceptual floor plans.
We were informed that this space will be often used by the close family friends, they needed a living area with a TV, a dining table that can be used is small occasions, kitchenette that's completely separated from the dirty kitchen and a closet for Abayas and shoes.
In order to increase functionality we tended to divide the space into three different main zones, and we distinguished every zone with different features such as ceiling heights, different flooring materials and different floor levels, and we separated them by decorative elements, yet that didn't prevent the optical range so what we've done wouldn't be just resizing a big space into smaller spaces but on the contrary it enhances the feeling of the spacious room.
As our client had issues with the lack of daylight we added more windows in the right places to add extra daylight to the spaces without causing light noise in any way.
客服
消息
收藏
下载
最近





























