查看完整案例

收藏

下载

翻译
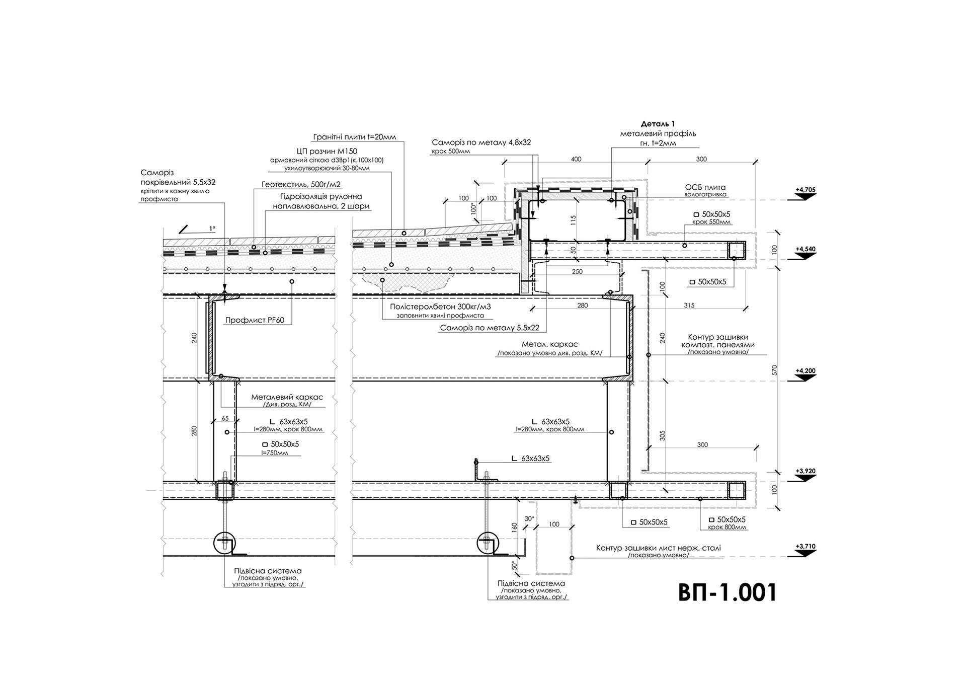
DETAIL
Entrance Overhang
■ LOCATION Kyiv | Ivana Kudri str.
■ PROJECT Residential Complex
- Central Park -
■ CLIENT Archimatika
■ ROLE Technical Architect
■ PROJECT PHASE Construction Documents
■ YEAR 2014
SCHEMES
DETAILS
SKETCHES
客服
消息
收藏
下载
最近


















