查看完整案例

收藏

下载
地址:北京菜园北里
设计施工单位:久栖设计
面积:50㎡
造价:25万
风格:法式简约
说在前面:
这个家是一对90后小夫妻的温暖新居,在未来的短时间内,他们做好会有小宝宝的计划,同时老人也会过来小住。
基本需求,是希望客厅以多功能的形式呈现;卫生实现干湿分离 ;除此之外,满足当前二人世界的同时,也要考虑空间的多变性。
法式线条加金属壁灯,使空间更精致温柔。可以随时切换出来的投影幕布,配合照明均匀的无主灯设计,让家该有的休闲氛围感十足
客厅的收纳柜,下方留出的空位,正好满足沙发的摆放。书柜与窗台选择相接近的木色,视觉上让整个空间更有延伸感。
将原来阳台的半墙隔断,改造成转角书桌。不用封阳台,就能凭空增加出一间独立书房。当阳光晒进来,整个家都变得很暖。
餐厨一体让空间的动线和功能性,都得到了大大提升。吧台选择带有纹理的白色石材,搭配浅灰色卡座,自带一种清冷气质。餐桌上方的轨道插座,让吃火锅和烤肉不要太方便。
复古的墨绿色,从走廊延伸到餐厅,让家突然变得美貌起来。
入口处增加两组电器高柜,让冰箱,烤箱和洗碗机等设备,都全部集中嵌入到柜子里。不大的厨房功能也能如此强大,空间看起来更宽敞。
细边框橱柜选择奶咖色,好看还方便搭理。合理压缩的过道宽度,在转角处嵌入了洗衣机。高低台正好作为切配区,拯救腰背酸痛。
电动百叶窗帘,可以随时调节角度,带来不同舒适的光影,做饭从此也有了仪式感。
增加L型转角玄关柜,让外出的鞋子,衣物还有扫地机器人,都有了各自的位置。
玄关柜的厚度做了到50cm,除了能放很多大件行李,里面还隐藏了一整根,原来卫生间部分的下水管。柜子留空了15cm,常穿的鞋子可以直接放进去,更顺手。
女屋主想要拥有可以梳妆用的衣帽间,被安排上了。既有着开放的互通效果,功能还完整独立,实在太香了。
绿色的半圆梳妆凳,搭配细线条衣柜造型,高级又耐看。
宽度40cm的悬浮梳妆台,来一套沉浸式美妆完全够用。与深色格子+白色柜拼接,高低错落自由组合,功能与美样样都不少。
半开放式的衣帽间,视野通透大方,让整理物品一目了然。嵌入式筒灯,让化妆时的光线不再晦暗,又能营造柔和的轻盈感。
不对称的床头造型墙,打破固有的单一性,还能释放床体两侧过道的空间感。
温馨纯粹的配色,营造安静舒适的睡眠空间。
圆拱形门洞,让房高有了向上的效果。墨绿色奠定了动线的协调感,增添复古时尚的韵味。
拥有一个完全独立的淋浴间,宽敞的3㎡空间满足各种体型使用。地面做了2cm下沉,省去丑丑的挡水条,简洁大气也好清理。
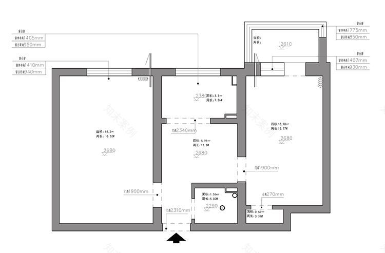
改造前:
原始户型是个两室一厨一卫的格局。
一进门的卫生间,不仅是暗卫,还直接挡住了入户区的光线。
入户也没有玄关收纳功能,日常出入的鞋子、包包等小物件没办法及时进行整理。
旧房的通病就是厅小卧室大,这让想要餐厅的两位屋主,觉得这么小的房子真是捉襟见肘。
平时生活里,更缺少不了工作,有办公习惯的男主需要一间独立书房,是他最大的夙愿。
改造后:
1.卫生间借位到了卧室部分,通过对走廊的改造,满足干湿分离多人使用。
2.增加门厅玄关鞋柜,解决了门厅的工具储物等收纳问题。
3.将原卧室打造多功能房间,满足办公、观影、居住需求,让功能灵活多变。
4.实现开放式厨房,增加了操作台上的使用面积。
客服
消息
收藏
下载
最近
























