查看完整案例

收藏

下载
我一读书,就丧失了所有时间感
— —《我们在此相遇》约翰·伯格
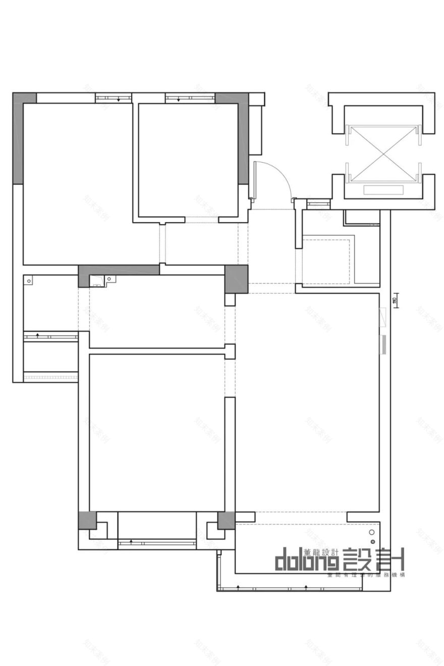
项目名称 : 锦绣华府东苑
空间性质 : 平层/100平
设计机构 : DoLong董龍设计
设计风格 : 复古风
施工单位 : 大品大工程
摄我的影 : EMMA
业主:我想要一整面墙的黑色书柜,用来摆放我那些无聊的闲书;我希望整个空间可开可合,有静有动;我希望整个空间的色彩有自己的个性;我还希望家中有个精致的厨房。
设计师:为满足居住成员的休闲、交谈、娱乐等需求而打造的家庭客厅,成为家庭成员情感交流的主要场所,生活本来的意义在此重现。
格局规划呈现连续的视觉穿透性,以自由平面呈现立面空间的最大化。各个空间并不仅是凭着立面简单组合,而是贯穿整体。一侧为静态的私密休憩之地,另一侧提供了动态的社交功能。
深色系的柜子、壁炉中跳动的火光凸显品质和温暖的复古情怀,宛若夕阳中的一抹落霞,熠熠生辉。
不同但纯净的色彩搭配在一起,使得客厅更加多元而富有生机。在读书的时光中蓬勃生长,在静谧的空间里倾听心灵。
简明的色彩,让厨房有了整洁的视觉基调。不拘一格的结构设置凸显了轻松写意的美好心态。厨房用品小巧却精致,完美地诠释了简约不简单的理念。
烤漆柜门搭配哑光的岩板台面、墙面半高的小白砖设计、不同肌理和光泽度材质的变化对比,都让厨房空间更具质感与韵律。
多功能室的窗边设置一个懒人沙发。业主可以在时间的角落里享受温暖的阳光,或是阅读一个个美好的温情故事。
主卧墙面采用质感十足的哑光漆面。暗黑色的复古地板,多样化的材质融合使用,空间更加温馨洁净。造型简约的家具,融入暖光烘托氛围,让空间富有现代感而舒适温馨,为休憩者提供一个宁静、浪漫的睡眠环境。
富有质感的黑色壁砖、交织的白色线条,把层次感勾勒出来,又充满浓厚的神秘氛围与不需言说的气质。
客服
消息
收藏
下载
最近































