查看完整案例

收藏

下载
本项目是男主人和女主人的婚房,男主人喜欢灰色调带来的酷感,女主人则钟情于明亮和温和,但他们都希望新家可以简约一些、舒适一些。设计师最终综合考虑了主人们共同的喜好,将“少即是多”的理念做到极致,给房主人呈现了一个富有气质又明亮温暖的新家。
项目名称:紫金华府——微光
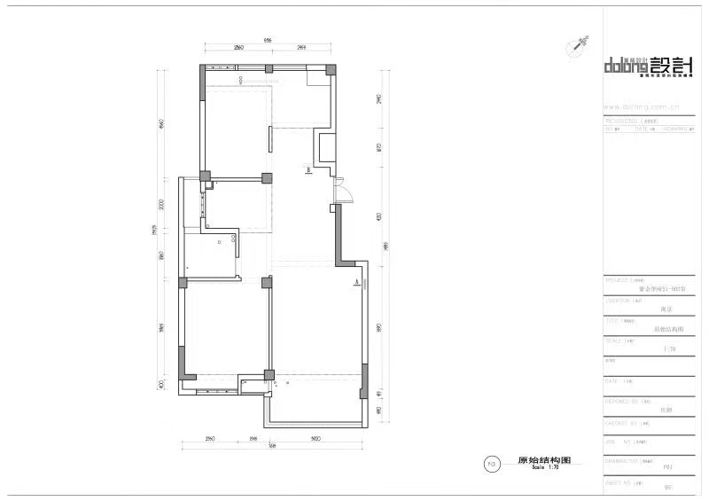
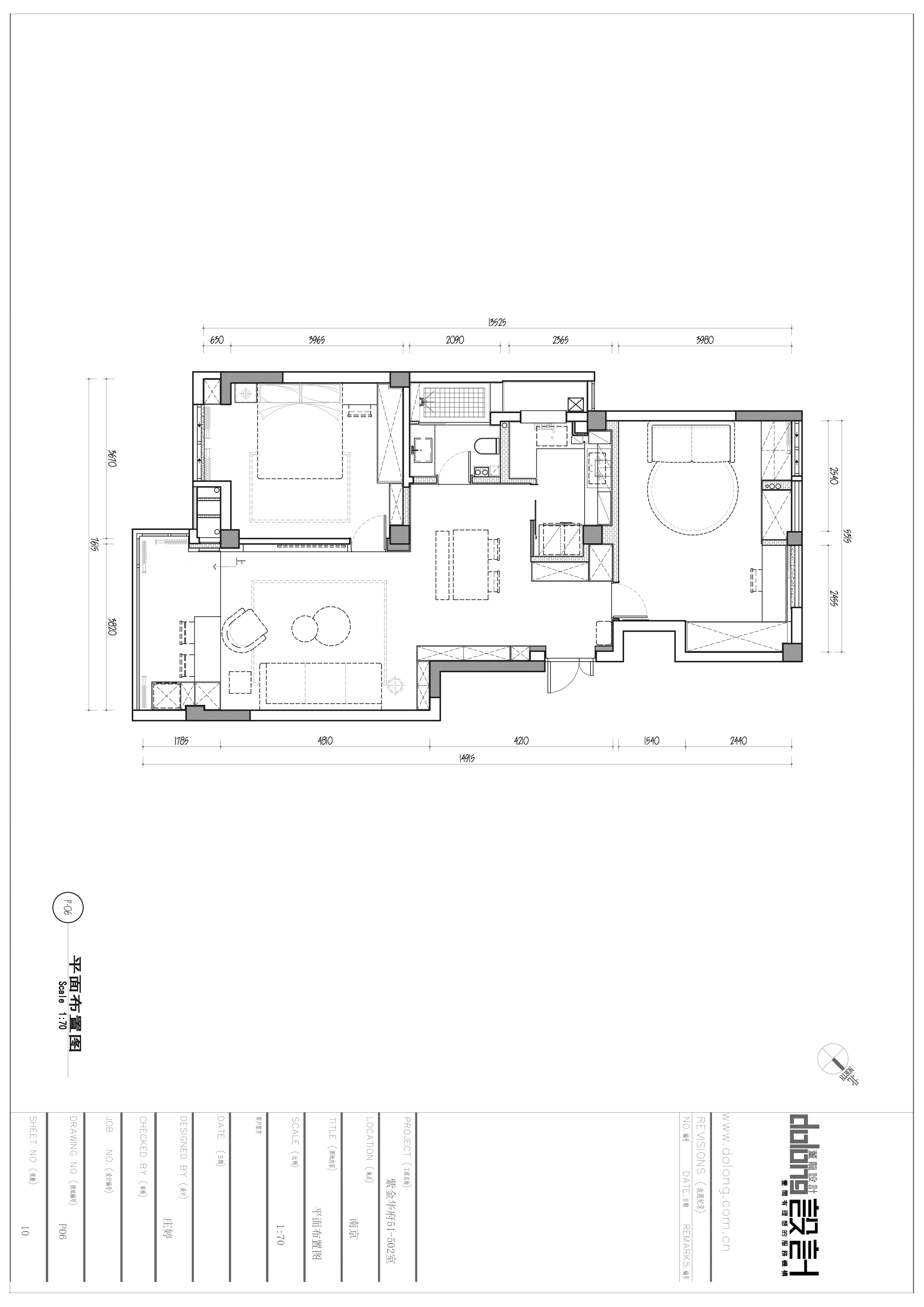
空间性质:平层/110平
设计风格:现代极简
合作模式:全案托管
设计机构:DoLong董龍设计
施工单位:大品大工程
摄影:Ingallery
客厅的墙面设计非常简洁,通过体块打造完整的空间。简明流畅的动线是客厅的亮点之一,无任何多余的修饰,使得行动自由便利。
进门处,设计了精巧的的草缸,其中流动的水声,反衬出空间的安静和灵动。木饰面的延伸,满足了从入户到公区的所有实用性的需求,将收纳空间与材质的过度有机结合。
南面落地窗将视野引向天空,并吸收充足的阳光温暖房间。休闲吧台区与客厅的高低错层关系,既独立又不失整体性。吧台不仅给日常生活提供了便利,也符合现代生活的需要,在此形成日常欢聚的社交空间。
灰色仿大理石瓷砖与瓷白色岛台岩板相呼应,同时以原木色的墙面做背景,多材质混搭的空间格局,既显低调又显高级。纯色的空间也因此融入了纹理感,使得整体空间看上去极具层次感。
色彩上,黑白灰做基调,其间跳跃着穿插墨绿色、橙色的视觉点缀,风格精简而雅致。其间搭配了布艺的沙发、柔和的地毯和高低错落设计的烟熏色的茶几。温润的质感与独特的几何美感的碰撞让整体风格更显高级。
整个客厅表达自然简约的生活态度,但精致的意式家具与艺术陈设又体现着对生活品质的追求。设计师在营造品质感的同时,也制造居住的舒适感。
客餐厅借由书架连通,黑色钢板开放架,墨绿色墙面作画芯,书架更具艺术性。随着开放柜里陈设的改变,画芯也在时间的维度里改变,形成一种“白天的空间”与“夜晚的空间”相互融合的景观。
主卧以灰色、白色、木色为主调,清新淡雅,温润舒适。圆润造型的床头灯,是对卧室最恰当的解读。舒适的布艺床引导主人松弛下来,找寻到身心的栖息之所。与其说白是一种色彩,不如说是时间锻造出的理想新世界。
客服
消息
收藏
下载
最近
























