查看完整案例

收藏

下载
本案是为小两口设计的婚房,夫妻俩养了两三只猫,喜欢温馨舒适的家居氛围。本案房屋为砖混结构住房,在对整体结构没有太大变动的前提下对户型进行改造来满足小两口的个性化需求,女主的生活品质很高,喜欢在家拍宠物视频,偶尔还会健身锻炼,有很多衣服,需要有大量的收纳空间;男主爱好摄影,因此需要有个舒适的办公区域来剪辑视频。在满足业主功能性需求的同时,让整体空间变得更加舒适.
原始户型图
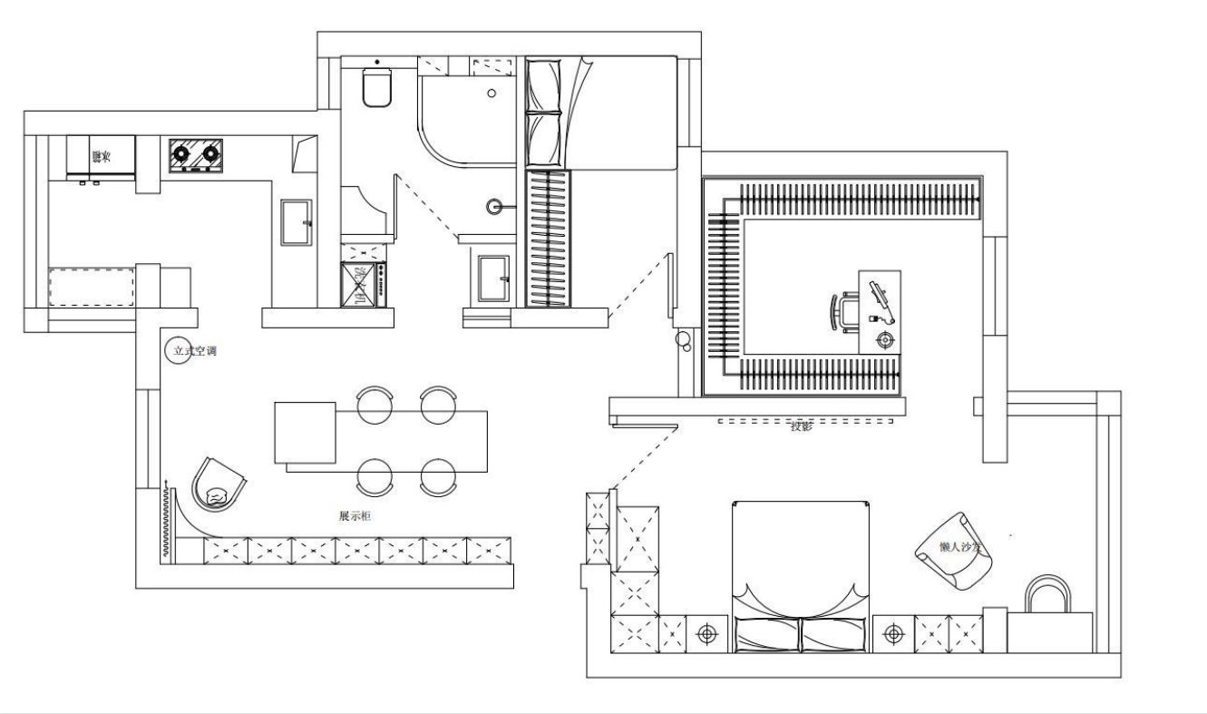
平面设计图
设计亮点:
<增加了两个拱形门洞>
1、在客餐厅与厨房的之间增加了一个拱形门洞,打通了这两个空间,大大提高了厨房的使用功能和业主做饭用餐的便捷性。
2、在这个空间与主卧之间增加了拱形门洞,设计成了衣帽间和办公区域,视觉上拓宽了屋内空间,不仅能将女主的衣物全盘收纳又能给男主一个独立剪辑视频的安静氛围。
玄关:
柜顶通顶无留空,不容易聚集灰尘,方便打扫。
留开放格,用来放钥匙等出门常用的物件,镶嵌感应灯带,使业主一回家就能感受到家的温馨。
底部留空用于换鞋,可摆放常穿的鞋子和家具拖鞋。
客餐厅一体:
整体空间色彩上使用了牛油果绿,这种偏明亮跳跃而饱和度不至于过高的颜色与白色背景的组合,配合柜体上弧形的石膏素线增加了温馨感和活跃感,使得整体偏白的空间层次更丰富更活泼,提升整体空间的质感。
岛台柜增加了收纳空间,把蒸烤箱等家电从厨房外移,嵌入岛台内,为业主提供了更多可操作的空间,从而增加了厨房的收纳空间。
可伸缩木质餐桌搭配藤编餐椅,充满温馨氛围,岛台部分也可当做桌面使用,进一步拓展用餐空间,与家人朋友火锅聚会也绰绰有余,在平凡三餐之中更显热闹与温馨。
设计亮点:(伸缩餐桌腿内暗装滚轮,保证推拉顺畅的同时不影响美观)
主卧:
灯光设计简单、耐看,无主灯的简约感,直接用嵌入式石膏射灯作为辅助照明,搭配吊顶和线条灯带营造氛围感,高级感倍增,真的是梦中情房,绝绝子!!!
阳台多了一个mini健身角,利用阳台拐角打造女主人梳妆台,提供了梳妆台和健身跳操活动空间。
衣帽间:
U字形衣帽间,加入玻璃门柜门的点缀,更显精致,暖光灯带内嵌,高级又温馨,满足女主的衣物收纳需求;由于剪辑对光线的亮度有一定的要求,于是将办公区设计在衣帽间,为男主剪辑提供舒适安静的氛围。
卫生间:
局部使用白色水磨石装点,搭配十分和谐,为卫生间营造舒适、自然的氛围!
洗手台和做底部留空的设计加马桶选择壁挂式,最大程度上解决了空间卫生死角的问题,同时也在视觉效果上让空间更显轻盈。
在浴缸区设计了壁龛,提供了储物空间方便日常使用。
客服
消息
收藏
下载
最近











