查看完整案例

收藏

下载
家,应该是直达本真的地方。
客厅(陪伴空间)
客厅(设计展陈)
客厅(影音娱乐)
客餐厨一体化空间(社交)
西厨(冷餐派对)
西厨(趣味陪伴成长)
餐厅(酒类收纳展示)
餐厅(水吧咖啡)
功能空间(设计师办公)
功能空间(打印收纳)
餐厅(天圆地方)
餐厅一角
道具展陈
茶室(社交空间)
茶室(影音洽谈)
卧室空间(轻松睡眠)
卧室(云办公)
卧室
卧室(衣帽间)
卧室(衣帽间)2
卧室(衣帽间)
卧室(卫浴空间)
展厅外立面(建筑语言)
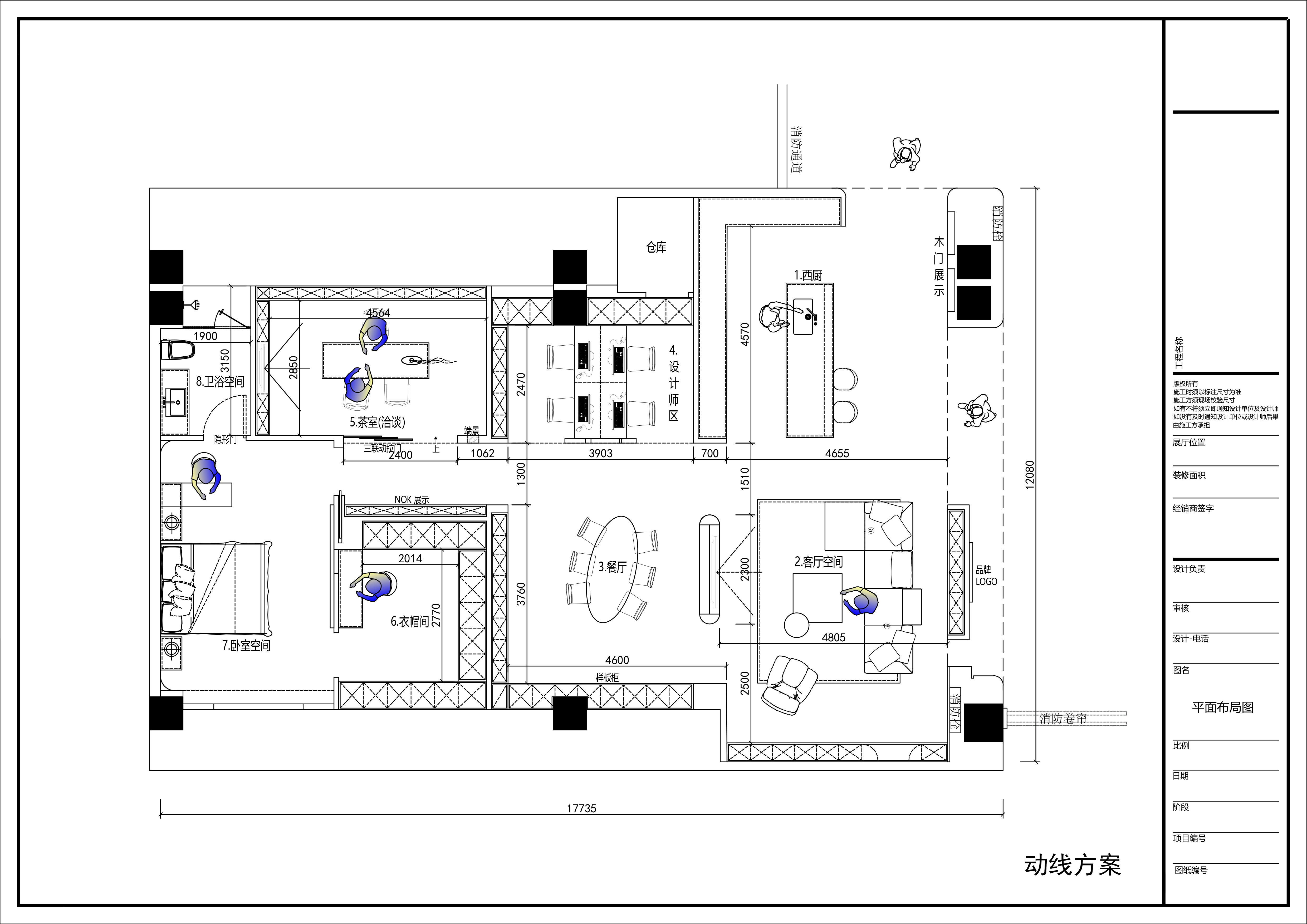
总平面图示
客服
消息
收藏
下载
最近


























