知末
知末
创作上传
VIP
收藏下载
登录 | 注册有礼
知末案例   /   办公空间   /   设计公司

绽放空间设计丨君 ONE 设计

2023/03/09 16:04:41
查看完整案例
微信扫一扫
收藏
下载
200平展厅设计关注人与自然、人与空间以及人—空间—自然一体化的微妙关系,运用建构逻辑结合时代美学来充分表达作品的情感与美感。我们用新的眼光来看待历史、建构秩序。
绽放空间设计丨君 ONE 设计-1
强调美学与实用价值,一切从功能出发,为空间做减法,从而让生活回归原本的样子。
绽放空间设计丨君 ONE 设计-3
绽放空间设计丨君 ONE 设计-4
绽放空间设计丨君 ONE 设计-5
西厨空间
绽放空间设计丨君 ONE 设计-7
中厨空间
绽放空间设计丨君 ONE 设计-9
客厅空间
绽放空间设计丨君 ONE 设计-11
书房空间
绽放空间设计丨君 ONE 设计-13
客书空间
绽放空间设计丨君 ONE 设计-15
设计师办公空间
绽放空间设计丨君 ONE 设计-17
卧室空间-电视柜
绽放空间设计丨君 ONE 设计-19
卧室空间-背景墙
绽放空间设计丨君 ONE 设计-21
卧室空间
绽放空间设计丨君 ONE 设计-23
衣帽间
绽放空间设计丨君 ONE 设计-25
衣帽架
绽放空间设计丨君 ONE 设计-27
衣帽间
绽放空间设计丨君 ONE 设计-29
卫浴空间
绽放空间设计丨君 ONE 设计-31
茶室空间
绽放空间设计丨君 ONE 设计-33
茶室空间
绽放空间设计丨君 ONE 设计-35
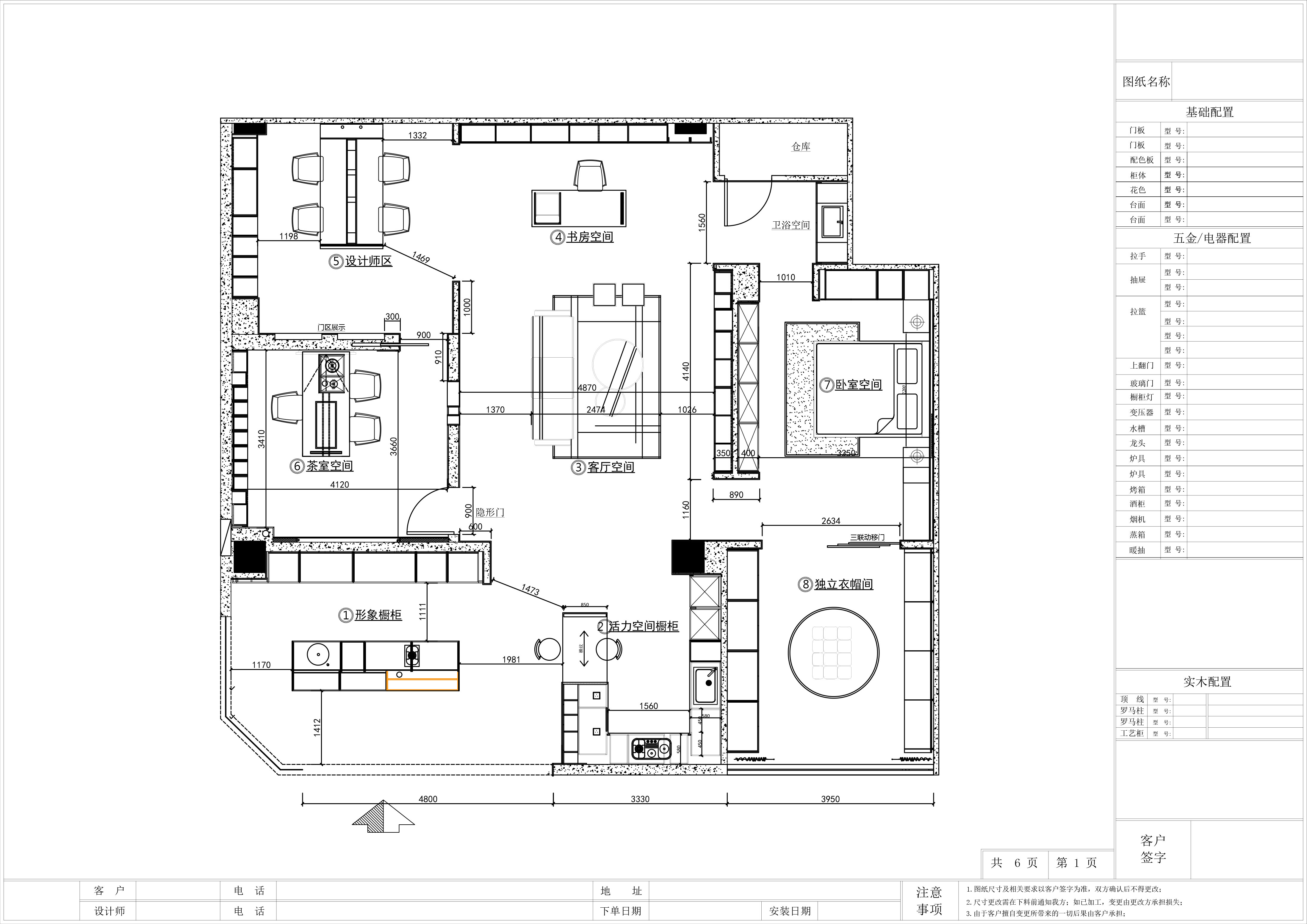
平面布置图
南京喵熊网络科技有限公司 苏ICP备18050492号-4知末 © 2018—2020 . All photos and trademark graphics are copyrighted by their owners.增值电信业务经营许可证(ICP)苏B2-20201444苏公网安备 32011302321234号
客服
消息
收藏
下载
最近