查看完整案例

收藏

下载
悬浮的“船”
你必须活在当下,乘着每一个波浪前行,在每一刻找到你的永恒 ——梭罗
该项目位于上海静安区的嘉里中心商场地下二层的飨识里,建筑面积约为80m²。金炙板前一直以热闹的日式氛围展现在人们眼前,这一次品牌整体做了各方面的升级,设计师打破了以往复杂熙攘的形式,结合了特殊的空间条件打造了一个崭新的形式。
▼项目概览, General view ©张薇倩
▼入口空间, Entrance ©张薇倩
飨识里作为嘉里集团所推出的多功能复合餐饮社交空间,吸引了众多品牌入驻。金炙板前此次落铺于相对比较安静的位置,被周围一众人气店铺包围,且现场的层高仅仅只有2300mm,所以设计师希望能以一种沉稳的表达形式独立于商场的复杂环境之中。
▼入口侧招区域, Entrance side signboard area ©张薇倩
设计师利用船身的概念来做一个弧形天花造型。虽然整个吧台区域的造型压低了空间的高度,但是大面积的弧形线条反而让整个空间更加简洁大气,从远处就能一眼看到,也成为了店铺一个独特的标志。
▼吧台区域 Bar counter area ©张薇倩
吧台做了内凹造型,不仅仅增加了座位数量,也打破了一条直线吧台形式的单调性,使得空间不那么狭窄。为了不让内凹区域的天花显得过于压迫,将其内凹处安装软膜发光,亦是一种水下船底看水面的意境。
▼“船身”内凹空间, "Hull" concave space ©张薇倩
过道区域我们采用了黑钛镜面不锈钢,在视觉上拉伸了空间的层高。整个空间使用了杉水木色与暖色灯光来相呼应,利用灯带来给空间带来朦胧美感。无论是照应着“船身”的天花灯带,还是隐约的贴地灯带都营造了整个空间的氛围,也使得人们可以更愿意将视线放在眼前的佳肴上。
▼光影呈现, Light and shadow ©张薇倩
▼店铺logo, Store logo ©张薇倩
▼弧形造型一角, Corner of curved moulding ©张薇倩
▼细部, Details ©张薇倩
如同乘船浮于海面上,惊涛骇浪之后的深邃宁静,希望来到此处用餐的人们也能暂时抛开纷扰,享受这一刻的宁静自由时光。
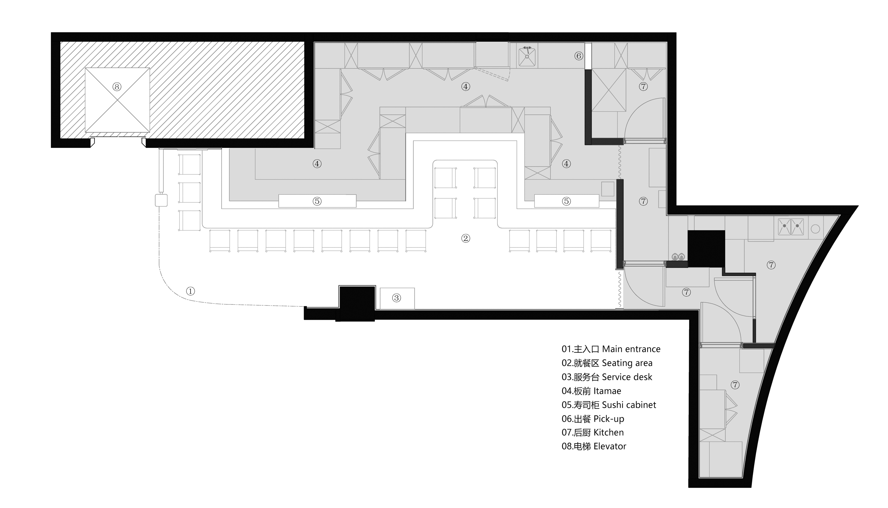
▼平面图,Plan ©弹性工作室
项目名称:金炙板前嘉里中心店
项目类型:餐饮空间
项目地点:中国 上海 静安区
设计公司:弹性工作室
设计总监:谭晨、牧之、张文侃
设计团队:郭艳琴(项目主管)、李正志、徐婷、刘占雨
建筑面积:80㎡
设计时间:2023.05
完成年份:2023.09
项目摄影:张薇倩
主要材料:橡木、黑钛镜面不锈钢、艺术涂料、青石砖、小黑砖、 仿金属砖、深色水泥砖、金属丝网
客服
消息
收藏
下载
最近

















