查看完整案例

收藏

下载

翻译
Architects:Hiroyuki Ito Architects
Area:1700m²
Year:2019
Photographs:Masao Nishikawa
Facility Design:EOS Plus Tenants Consulting Engineering co.ltd., EOS Plus
Construction:AOKI KOUMUTEN Co.,Ltd
Structural Engineer:Shu-tada Structural Consultant
Design Team:Hiroyuki Ito, Junko Uehara
Country:Japan
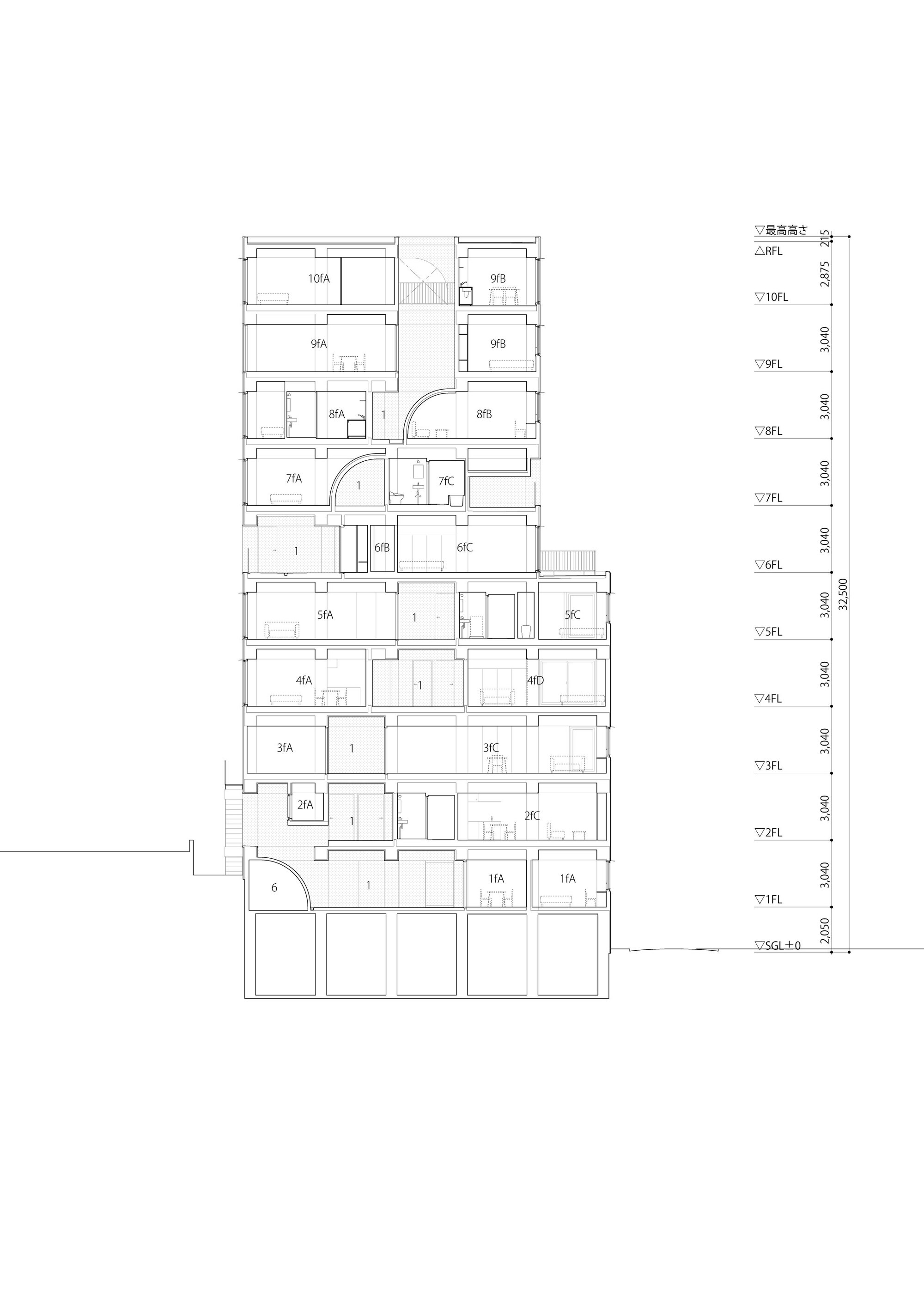
Text description provided by the architects. The project is composed of a series of detached rooms (of about 6 Tatami mats) connecting to form apartments inside a post and beam structure. Each apartment in the building was designed individually with consideration of the site’s conditions, orientation, and floor level. As a result, none of the apartments and floors are identical.
The finishing materials of the rooms were selected in a similar manner. Three different sets of materials were used to accommodate various programs. Alongside diagonal walls, half-arch elements were used in two orientations (plan and section) to connect non-tangent diagonal rooms.
The distinctive shapes of these curved partitioning walls suggest the presence of further dwelling units and common areas beyond, whilst the repetition of the exposed structure through rooms provokes a sense of expansiveness transcending any physical boundaries.
By presenting a continuous environment that stretches from the individual apartment through the entire building and out into the surrounding neighborhood, each dwelling unit is positioned in relation to a wider context.
Project gallery
Project location
Address:Tokyo, Japan
客服
消息
收藏
下载
最近

























