知末
知末
创作上传
VIP
收藏下载
登录 | 注册有礼
知末案例   /   餐饮空间   /   日式餐厅

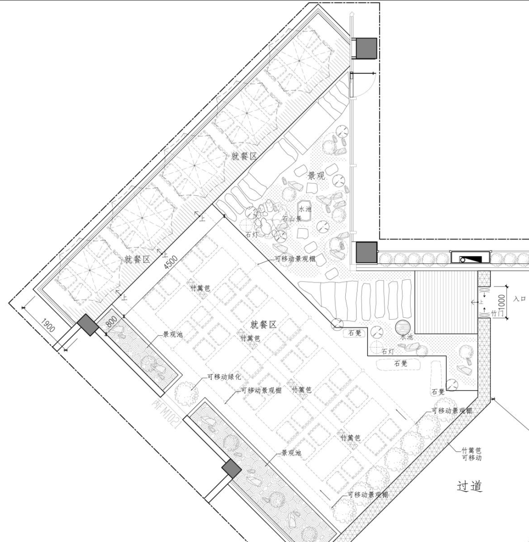
清远竹料亭日式料理全案设计

2022/09/07 22:26:30
查看完整案例
微信扫一扫
收藏
下载
如今餐饮消费升级,传统的川菜、鲁菜、粤菜、徽菜菜系已经完全不能满足大众的味蕾和需求。从大众点评2019年餐厅增涨数据来看,日料的增涨幅度仅次于火锅的增涨,日料成为现在都市男女约会、商务聚餐,家庭聚会的不二选择。它以其清淡的口味、简单而讲究的烹饪方法,尊重食材的本味,将“鲜”味表现的淋漓尽致,这也迎合了当下健康餐饮的发展趋势。
清远竹料亭日式料理全案设计-1
清远竹料亭日式料理全案设计-2
清远竹料亭日式料理全案设计-3
清远竹料亭日式料理全案设计-4
清远竹料亭日式料理全案设计-5
清远竹料亭日式料理全案设计-6
清远竹料亭日式料理全案设计-7
清远竹料亭日式料理全案设计-8
清远竹料亭日式料理全案设计-9
清远竹料亭日式料理全案设计-10
清远竹料亭日式料理全案设计-11
清远竹料亭日式料理全案设计-12
清远竹料亭日式料理全案设计-13
清远竹料亭日式料理全案设计-14
清远竹料亭日式料理全案设计-15
清远竹料亭日式料理全案设计-16
清远竹料亭日式料理全案设计-17
清远竹料亭日式料理全案设计-18
清远竹料亭日式料理全案设计-19
清远竹料亭日式料理全案设计-20
清远竹料亭日式料理全案设计-21
清远竹料亭日式料理全案设计-22
清远竹料亭日式料理全案设计-23
清远竹料亭日式料理全案设计-24
清远竹料亭日式料理全案设计-25
清远竹料亭日式料理全案设计-26
清远竹料亭日式料理全案设计-27
南京喵熊网络科技有限公司 苏ICP备18050492号-4知末 © 2018—2020 . All photos and trademark graphics are copyrighted by their owners.增值电信业务经营许可证(ICP)苏B2-20201444苏公网安备 32011302321234号
客服
消息
收藏
下载
最近