查看完整案例

收藏

下载
■ 项目名称:望湘园·小雅
■ 项目类型:餐饮空间设计
■ 项目地点:南京市
■ 建筑面积:440㎡
■ 参与设计师:蔡鸣 麦志浩
■ 竣工时间:2019-07-15
■ 设计机构:深圳市有山设计顾问有限公司
——
作为国内湘菜品牌的领头军,望湘园的升级新店“小雅”取意中国古代第一部诗歌总集《诗经》中的一首诗:
南有嘉鱼,烝然罩罩;
君子有酒,嘉宾式燕以乐。
南有嘉鱼,烝然汕汕;
君子有酒,嘉宾式燕以衎。
南有樛木,甘瓠累之;
君子有酒,嘉宾式燕绥之。
翩翩者鵻,烝然来思;
君子有酒,嘉宾式燕又思。
用鱼水之情象征宾主之间融洽的关系,婉转表达出主人的深情厚意。
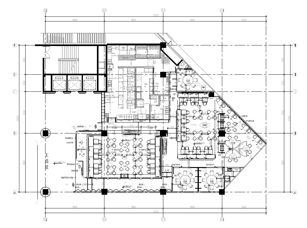
如何将升级的形象与湘菜品类完美的结合也是设计之初团队探讨的重点,而餐饮设计中,桌位的排布和入客数是经营者最为关注的问题之一。本案的关键在400平米的空间中如何区分两个就餐区域,并且满足两个包厢的设置,而且开放式的明档要使顾客在就餐时看见厨师的操作。
此时,另一首脍炙人口的诗词《桃花源记》浮现在设计师的脑海里,桃花源的原型就位于湖南常德,能将平面布局和诗句结合将是一种别致的创新手法。最终,入口设计撅弃了常见的中间开口,而是偏于一侧,一来保证了室内就餐区域的完整性,也可以让门头有了宽裕的展示空间。而狭长的入口甬道设计也取意于《桃花源记》中:山有小口,仿佛若有光......复行数十步,豁然开朗......
- 品牌定位 -
灵感取意于《诗经·小雅》
- 空间意境 -
过狭长的甬道,步入餐厅的瞬间视线豁然打开,别有洞天。
饱和、浓郁的绿色红色扑面而来,与陈设饰品的搭配使人眼前一亮,整个空间充满活力,生机盎然。
绿色的烤漆钢板天花突破了在传统湘菜餐厅中固有的色彩认知,定制的折扇型的吊灯打破了空间的沉闷 ,成为视觉中心。
与之相呼应的是墙面的搭配的扇面造型饰品和湖南著名景观的照片墙,以及误入桃花源的中国水墨画无一不诠释着创作的主线:为食客提供一个优雅就餐的”世外桃源”。
- 设计选材 -
卡座软包采用铁锈红布面材料,与绿色形成大胆碰撞,单椅在木质结构、皮革坐垫基础上增加了赋有质感的黄铜扶手,经典雅致。两个包房之间的墙体大胆的采用了圆形雾化玻璃处理,破除了墙面的呆板。
两个包房之间的墙体大胆的采用了圆形雾化玻璃处理,破除了墙面的呆板。
整个餐厅在色彩上选择了两种大胆碰撞的基调:绿色和红色。用色彩将所有空间联系起来,并整合成一个协调的、独特的视觉整体,从而给顾客一种记忆深刻的美学体验。
▲ 平面图
有山设计 · NOONTIDE DESIGN
—————————————
深圳市有山设计顾问有限公司,是一家集品牌规划定位、平面视觉表现、室内空间设计、服务于一体的策略化商业空间全案解决设计公司。
涵盖特色酒店、民宿、会所、餐饮及办公等商业空间,提供从平面视觉到空间展示的一体化设计服务。有山设计专注于挖掘每个企业品牌的独特性,溯源品牌文化根基,提炼文化元素注入平面、空间设计之中,打造出差异化的商业空间。有山设计成立至今,服务于全国各类企业及机构,并赢得国内外诸多知名设计奖项。
客服
消息
收藏
下载
最近






























