查看完整案例

收藏

下载

翻译
Architects:XING DESIGN
Area:2100m²
Year:2020
Photographs:Shengliang Su
Manufacturers:MATZ FORM
Lead Architect:Xing Xiong
Design Team:Xing Xiong, Qichen Cao, Mo Chen, Sheng Lei, Qingyu Cai, Lei Zhang, Ziai Huang, Wenxuan Huang, Yilan Tao, Yuan Tao, Xuezi Li, Lu Yue, Yuchu Wang
Engineering:Huayu Hua
Heavy Current Engineering:Yan Luo
Water Supply And Drainage Design:Xueliang Li
Decoration:Sang Ge, Zile Ye
Client:Hotel Duxiana Shanghai, Hotel Duxiana Shanghai
City:Shanghai
Country:China
Text description provided by the architects. NEOBRIDGE is an experiment on the relationship between the hotel and the city. The “bridge” is the theme and the solution.
The Origin. The project is located at Caojiadu, Shanghai, with St. Michael’s Cathedral in the front and a residential garden facing Suzhou Creek in the back. Our goal is to create a comfortable but dramatic space in between two high rises while keeping the building’s original massing and form unchanged.
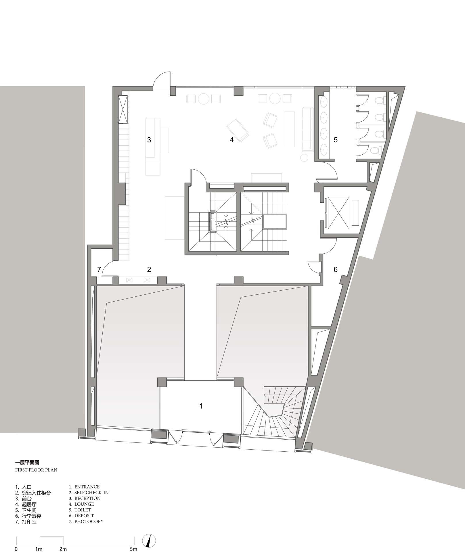
The problems of the original structure are its low floor height and repressive basement. Hence, we opened up the entire first floor to form a continuous vertical space with a bridge in the bridge. Underneath the bridge is an inner extension of the city; across from the bridge is the hotel, at a distance to the clamor.
Walking across the bridge therefore becomes the visual center, a sense of ritual as well as the theme of the hotel.
The Riverbank and Waterfall. Spaces and materials are expressed based upon the story of “bridge.” It is intended to create a waterfall facade impression in the concrete urban context. The curtain wall is by glass bricks, which balance the privacy and lightness.
“Waterfall” is carried through both exterior and interior design, in which various materials and finishes expressed different conditions of movement: falling water, underwater, and at the bank. The water current is also implied within each room: the walls of bathrooms are made of handmade azure glazed tiles and watermark glass, reflecting the soft movement of the river onto the walls.
Drama, Practicism, and Construction. Solving the layout of rooms is a game with existing pipes and wires. In order to achieve maximum floor height, the original concrete is exposed nakedly. The bathrooms and air-conditioning pipelines are inserted as integral boxes. Most importantly, no louver can be found within the entire building as they all hide within the gaps between materials.
The mullion walls on the southern façade contain two operable windows which are specifically designed to maintain a complete water-falling appearance when opened. Other details in the rooms include openings on the balcony wall and two overlooking rooms above the bridge, as well as a triangular mirrored window expanding one’s visual experience of a tiny space.
There are a few surprising set up in the hotel: a mirror periscope window in the darkest room reflecting the exterior landscape; little openings in the courtyards where can handshake with neighbors; strip windows people can peek at the bar and bridge, etc.
Project gallery
Project location
Address:59 Wanhangdu Rd, Putuo District, Shanghai, China
客服
消息
收藏
下载
最近












































