查看完整案例

收藏

下载
广式火锅因其健康养生、清淡滋补营养好而深受各地消费者的喜爱和追捧。除了传统的潮汕鲜切牛肉火锅,椰子鸡、猪肚鸡也是目前广式火锅中非常热门的餐饮品类。深圳椰子鸡火锅连锁品牌——江南春天椰子鸡餐厅就非常看好猪肚鸡这一品类,该连锁餐厅旗下猪肚鸡火锅品牌——咕咕猪肚鸡,将传统的浓汤猪肚鸡升级为清汤猪肚鸡,汤底更加清淳,味道鲜香还甜美,相比传统猪肚鸡,养生滋补功效很明显。咕咕猪肚鸡餐厅在产品上还加入了粤菜经典细分品类——啫啫煲,这也是粤菜中非常热门的品类。与猪肚鸡火锅搭配,丰富了产品线,市场竞争优势比较显著。此次咕咕猪肚鸡啫啫煲餐厅经过认真考察分析比对后委托品深餐饮设计负责咕咕猪肚鸡啫啫煲大浪商业中心后浪新天地店的空间装饰设计。
品深餐饮设计解决方案:
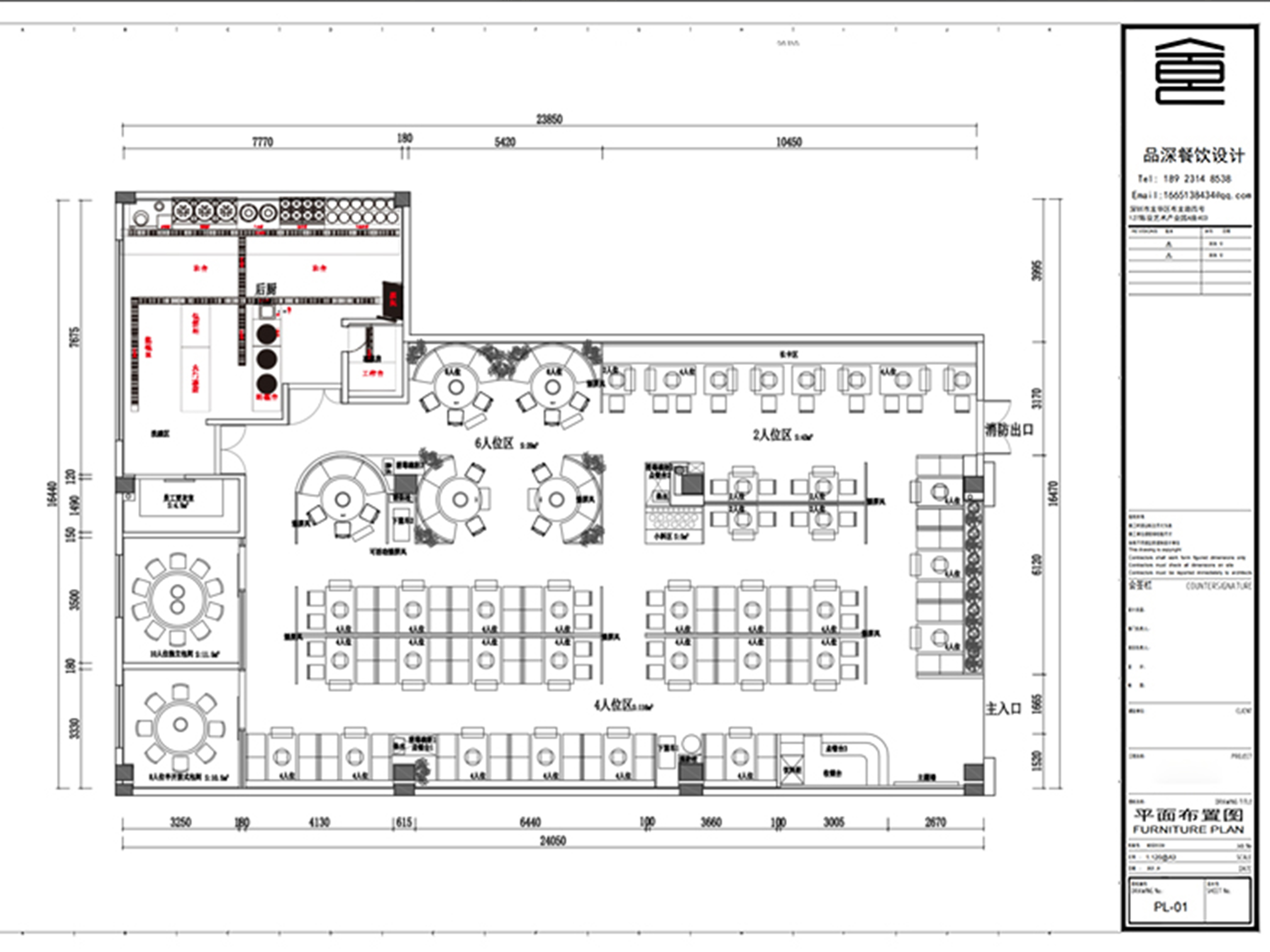
1、针对区域市场人群特点,灵活设计空间平面布局
大浪商业中心的后浪新天地作为深圳市“夜间经济示范点”,旨在向消费者提供更具品质感与趣味性的消费体验,打造出地方特色,构建成龙华夜生活集聚区,为消费者带来文旅性街区商业消费新体验。后浪新天地年轻人众多,对美食除了美味之外还要有美观,能满足打卡,拍摄分享的需要。
2、用装饰材料特性表现猪肚鸡菜品的核心特征,打造出时尚清新,通透舒适的空间感受。
每一个品类的兴起,总是绕不开山寨、同质化的怪圈,在猪肚鸡火锅品牌云集的粤港澳大湾区地区更是如此。
品深餐饮空间装饰设计团队通过对深圳、广州等地大量连锁猪肚鸡火锅餐厅的考察、调研发现:大多数的猪肚鸡品牌无论是招牌还是环境都十分相似。产品搭配也几乎都是:猪肚鸡+煲仔饭+各式蔬菜小配菜,几乎没有什么特色和个性可言。即便有的品牌试图从鸡的品种、汤底的熬制或者食材是否新鲜等来打造差异化,但细微的差异很难让人留下深刻印象。
3、软装陈列及物料应用设计:品牌文化、品牌形象、品牌内涵在空间中的植入设计。
在品深餐饮全案策划设计中,软装陈列和平面物料应用设计是品牌文化、品牌形象、品牌内涵的软性展示之处,品深设计总是善于通过以润物细无声的方式将餐饮品牌植入到消费者心智中。
为了营造自然,清新,通透的空间感受,体现咕咕猪肚鸡清汤养生特点,品深餐饮装饰设计团队使用了浅木色半包鸟笼造型,隔断中遍种仿真绿植,墙面以浅白色手工砖突出了发光不锈钢广告画面的内容,简约又具有鲜明的广告效果,很好地将咕咕猪肚鸡的品牌文化、品牌形象及品牌内容在空间中展现出来了。
客服
消息
收藏
下载
最近



























