查看完整案例

收藏

下载
HI,大家好。
2021-2023是集物所的第三年,这三年里,我们服务了各地不同领域的案子,感谢大家的认可和鼓励。
在未来的时间里,我们会更加的提升自己,挑战自己,服务好找到我们的,能够成为朋友的共频者。我们的新office正在施工当中,整个空间无需复杂丰盈,表达我们的态度,我们依然年轻,依然起点。
Location:郑州
空间概况:
办公场地位于河南郑州,郑东商业中心B区9号楼顶层,整个房屋高度4650mm,此次规划设计当中,整个空间以人为主的去达到一个平衡,在很大情况下三分之一空间保留了挑空的原始高度,让气流形成自然,让人处于思考。
在设计的延展中,整个结构做了垂平和横向拓展的视觉差,以原始梁体的位置为轴线,进行了切分和规整。混凝土形成包裹着四周的盒子,围合之中,屋檐之下,是一方小天地的交流和深思,材料中并未用新型材料,常见的木和玻璃,引入折射,透光,开窗,融入,让空间与人交流,让氛围形成自然,保持我们随意自由的方式。
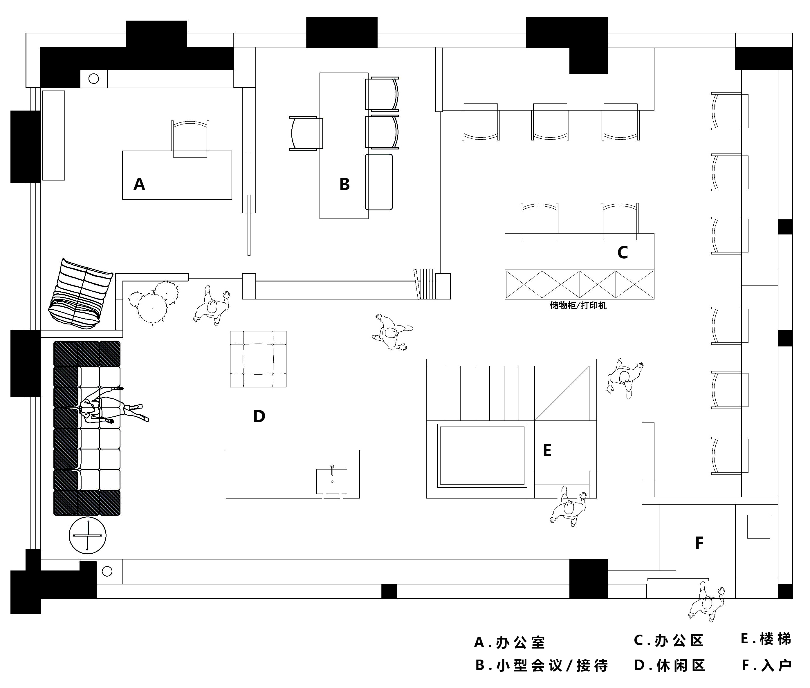
一层概况
二层概况
我时常在想,如何兼顾空间主义和人的感觉,就如同我要以理性的生活主义来去衔接所有的理想化,在这个繁华且浮躁的都市节奏中,我们如同大海里漂泊的孤舟,没有稻草,没有码头,如同电影场景般快速镜头一闪而过的扑簌迷离,我们希望创造,不只是当下,可能更希望结合当下的记忆,去表达能够在未来的某一刻你能感受到的真正意义。
我想,此刻的表达,与未来憧憬的某一刻相撞,才是霎那,动容吧。
功能概况
项目信息
Information
━
项目坐标 | Location:河南.郑州
项目面积 | Square Meters:290㎡
设计机构 | Studio:集物所建筑设计
施工机构 | Studio:集物所建筑设计
主要用材 | Material:水磨石浇筑.白色木地板.木饰面.清水质感涂料.石材.超白玻.
客服
消息
收藏
下载
最近








































