查看完整案例

收藏

下载

翻译
Architects:HAMS and, Studio
Area:65m²
Year:2024
Photographs:Akira Nakamura
Manufacturers:Ferrum+,Haymes Paint,Kvadrat,TAJIMA ROOFING
Lead Architects:Yota Hokibara (HAMS and, Studio) + Ken Kazama
Construction:ROOVICE
Country:Japan
Text description provided by the architects. When you open a book, words whirl around in your mind. When you open a window, cars and trains race around from city to city. The inside and outside seamlessly connect when such activities take place. In a world where the trend is toward non-ownership, this architect’s home was planned, surrounded by cherished items accumulated over time while dragging along his past self.
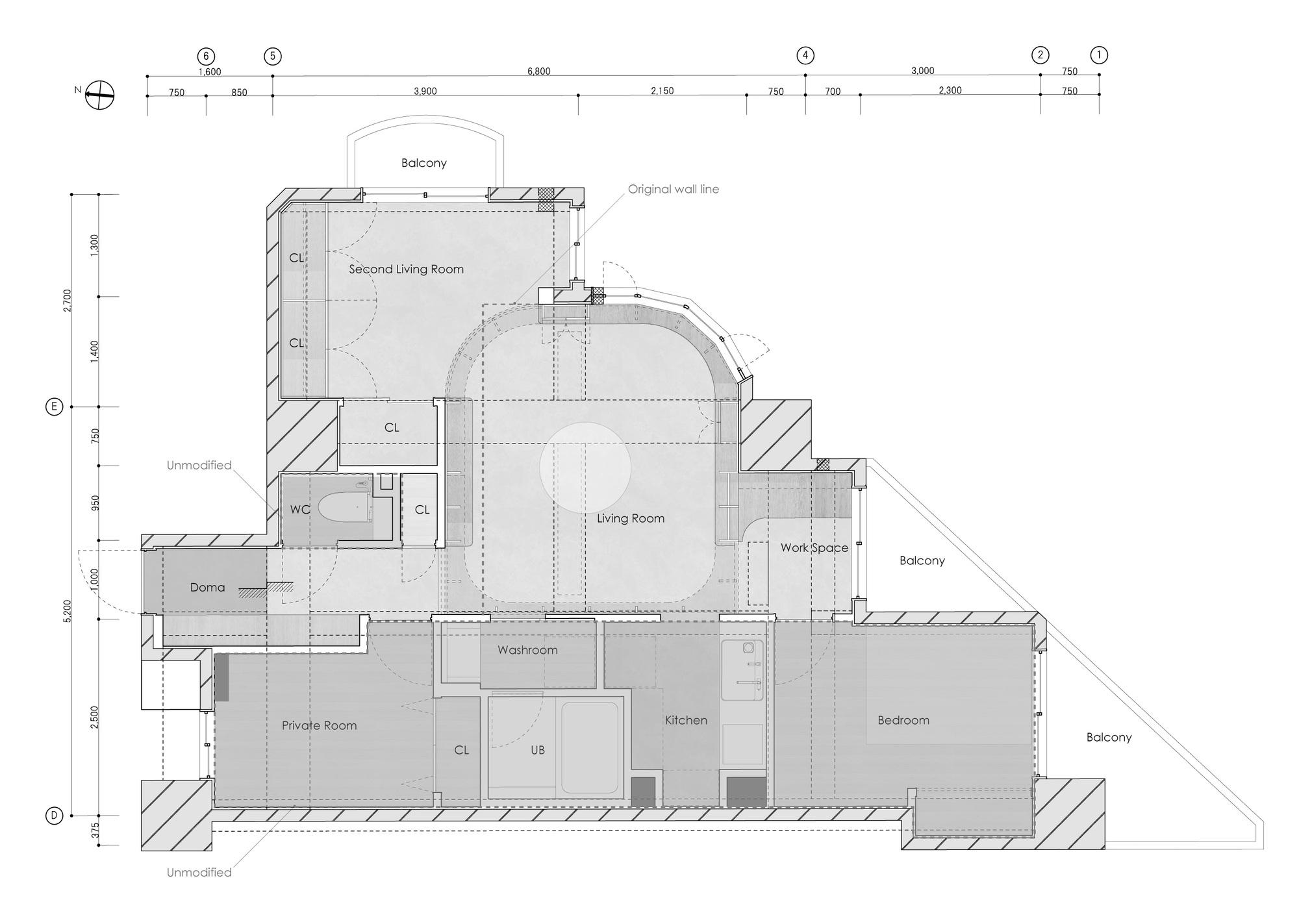
The site is located in a densely populated residential area at the foot of Tokyo Skytree. Despite being just a room in an apartment complex, its location allows for a direct experience of urban dynamics, as a main road passes right in front of the building, and local trains run closely at the same level as the room. The existing room had already been refurbished by a real estate resale company. There was an impression that the unique potential of the flat’s planar structure was being subdued. In this renovation, we perceived the already renovated finishings as a certain terrain or context. The aim was to explore the nature of a private living space that expands as a part of the overall urban activity, influencing the entire space with minimal intervention yet maximum impact by “parasitizing” the existing context.
The new occupant of this room had amassed a large collection of books and was longing for a life surrounded by various treasured items. Consequently, we conceived the idea of incorporating a circular bookshelf at the heart of the floor plan. By making this 360-degree wrapped central space the living room, we believed it would enable the residents to have a vivid and interactive relationship with their belongings. Thus, it was decided to mirror the distinctive curved line of the external wall and bring it into the internal space. The circular bookshelf, echoing the external wall’s curve, forms the skeleton of the space. Circulation paths, fixtures, benches, etc., were incorporated into this framework, resulting in existing elements such as smaller rooms, a hallway, a kitchen, a washroom, and bay windows engaging with the bookshelf in an intertwined manner.
The starting point was a renovated room that merely prioritizes a profitable business, but we strived to create comfortable spaces through minimal alterations while maximizing the utilization of existing features. This pursuit is imbued with a certain level of paradox. So, we recognized and made use of the subtle textures or evenness of the refurbished vinyl wallpaper and wood-like vinyl floor tiles, and considered them as the topography and foundation of our project. This approach allows for a positive acceptance of characteristics that isn’t possible with newly constructed buildings or full renovations.
Currently, there is a trend where real estate resale companies are rapidly applying uniform refurbishments to promising second-hand apartments. This project stems from a heartfelt desire to obtain a unique space purely for ourselves, surrounded by cherished possessions, through partial renovations that cleverly utilize the temporal and spatial gaps within the city. We aim for this project to represent a new approach to partial renovations.
Project gallery
Project location
Address:Tokyo, Japan
客服
消息
收藏
下载
最近
























