查看完整案例

收藏

下载
项目坐落于重庆南天湖风景区内,临湖而居,夏日气候凉爽冬季银装素裹,整个景区以生态、休闲度假模式为主。经实地考察发现,所在片区内建筑较为老化,且酒店市场同质化严重。在尊重场地自然要素的前提下,我们先从策划端入手,进而展开建筑改造及室内设计。
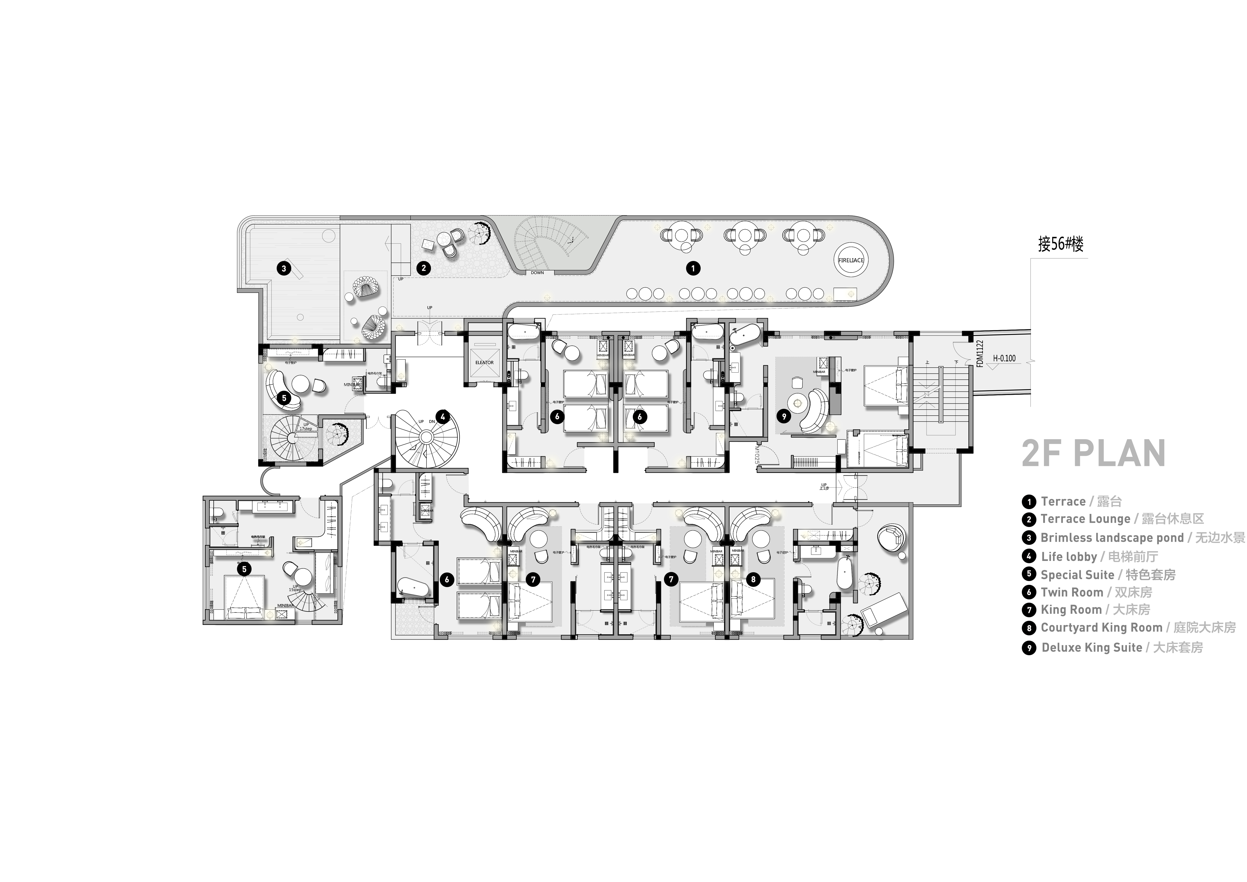
酒店由三栋叠拼欧式风格别墅串联而成,因斜屋面结构、层高不够及室内房间面积较小等基础条件的受限,给设计相应增加了不少难度。我们将建筑学设计语言和思维融入空间型构始终,诠释设计主题。元素“n”线条的曲直变化重塑建筑的形态与尺度,以白色为自然基底简约温润,更好的呼应场所气质。极具辨识度的从区域内脱颖而出,开启全新体验。
原花园空地新建拓展作为公区部分,通过 Cafe Bistro,经由接待区进入。因增加了酒店的开放性及产品特色,餐厅可单独对外营业。扩大入口序列、梳理动线,有效的避免人流集中交汇。
设计打造复合型社交空间,这里可以是精致的咖啡吧,是华灯初上时的威士忌吧,是餐厅、亦或是户外BBQ,多元融合丰富体验。室外的美景透过窗户渗入室内,倚坐窗前,怡然自得,体味小隐于野的乐趣。
极具流线感的旋转楼梯,贯穿上下三层空间,以艺术形体和建筑结构为骨架,客房部分主要通过结构的嫁接、拆除及搭建,有序地扩大各房型尺度。利用屋顶空间增设loft亲子套房,提升酒店档次和户型特色。室内部分我们刻意弱化了装饰效果,采用原始的色彩和质感,适度的留白搭配极简的线条突出空间感。
我们并不只是想在这里建造一座酒店,而是希望在此通过空间将人与人连接,搭建出自然与生活的媒介,于这幅由群山湖水的画卷中建构出一个自由、美好的“乌托邦之境”。
设计面积:2000㎡
品牌策划:里与外创意
建筑改造:里与外创意
室内设计:里与外创意
主创设计:蔺聪
团队:龚玮坭、李永兰、张杰、张华彬
完成时间:2023年6月
空间摄影:阿永、拍客建筑摄影 阿秋
客服
消息
收藏
下载
最近





























