查看完整案例

收藏

下载

翻译
Architects:Jô Vasconcellos
Area:110m²
Year:2023
Photographs:Daniel Ducci
Lead Architect:Jô Vasconcellos
Construction:CASTILHO & BARROS
City:Belo Horizonte
Country:Brazil
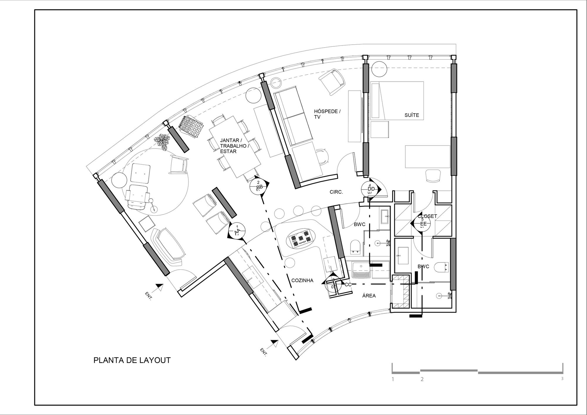
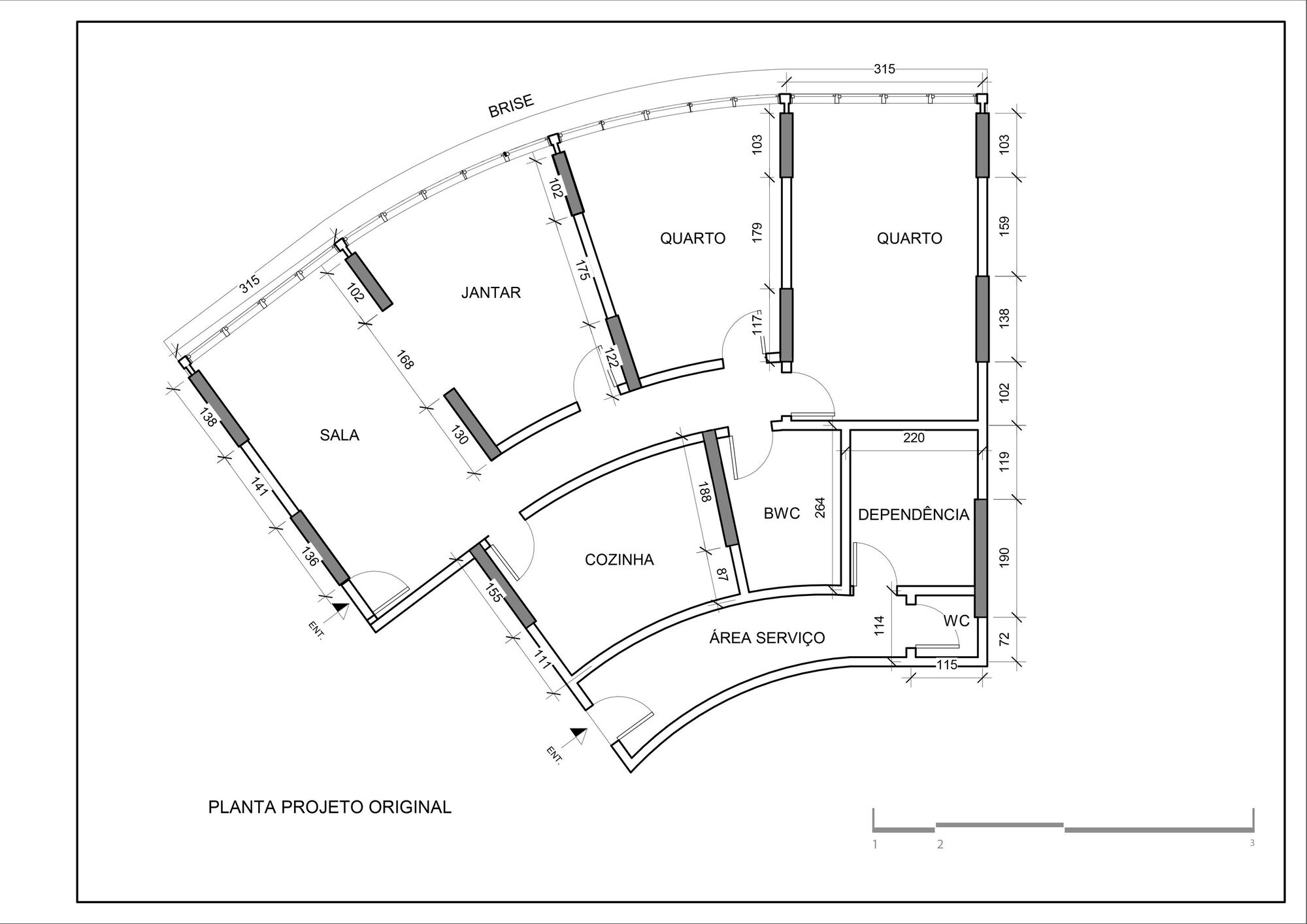
Text description provided by the architects. A 100m² apartment, situated in downtown Belo Horizonte, Minas Gerais, Brazil. The residential building, built in 1961, presents a variety of floorplans and has a commercial area at ground level.
In the case of this apartment, our commitment was to adequate it to the owner’s necessity program. We integrated the spaces, which were sliced into small rooms beforehand, uncovered the concrete structures hidden behind a variety of materials and subterfuges, and we simplified the spaces by using only one type of flooring.
For the proposition, we used unusual materials and shapes to ensure the new intervention and the space fluidity. We value the natural light and the view of the Municipal Park opposite the building. The result favors the casual and fluid use of real estate.
Project gallery
Project location
Address:Belo Horizonte, Minas Gerais, Brazil
客服
消息
收藏
下载
最近













