查看完整案例

收藏

下载

翻译
Architects:JYA-RCHITECTS
Area:210m²
Year:2022
Photographs:Hwang Hyochel
Manufacturers:Chung-nam Stone,Gong-gan Aluminum Window,Jeil Brick
Lead Architects:Jo Janghee, Won Youmin
Structure Engineering:Hangil Structure
MEP Engineering:Jungyeon Engineering
Construction:JD Construction
Oerall Design:Park Jiyoun
Funiture:UNO DECO
City:Yeongdeungpo-gu
Country:South Korea
Text description provided by the architects. The clients had renovated a house several years ago and used it as an office building for a design company. They recently purchased a multiplex housing unit next to it and decided to create housing and small-scale neighborhood living facilities for rent. Having already experienced remodeling before, they were fully aware of the advantages of remodeling and thus wanted to increase efficiency by remodeling the building again if possible. However, considering the recently tightened demolition standards followed by the waste of time and cost, insufficient floor-to-floor height for rent as a neighborhood living facility, and the requirement to demolish the exterior walls to secure minimum parking space, the clients decided that the cost and effort incurred by the remodeling would be greater than the efficiency it may bring. Therefore, we and the clients made a bold move and decided to construct a new building instead.
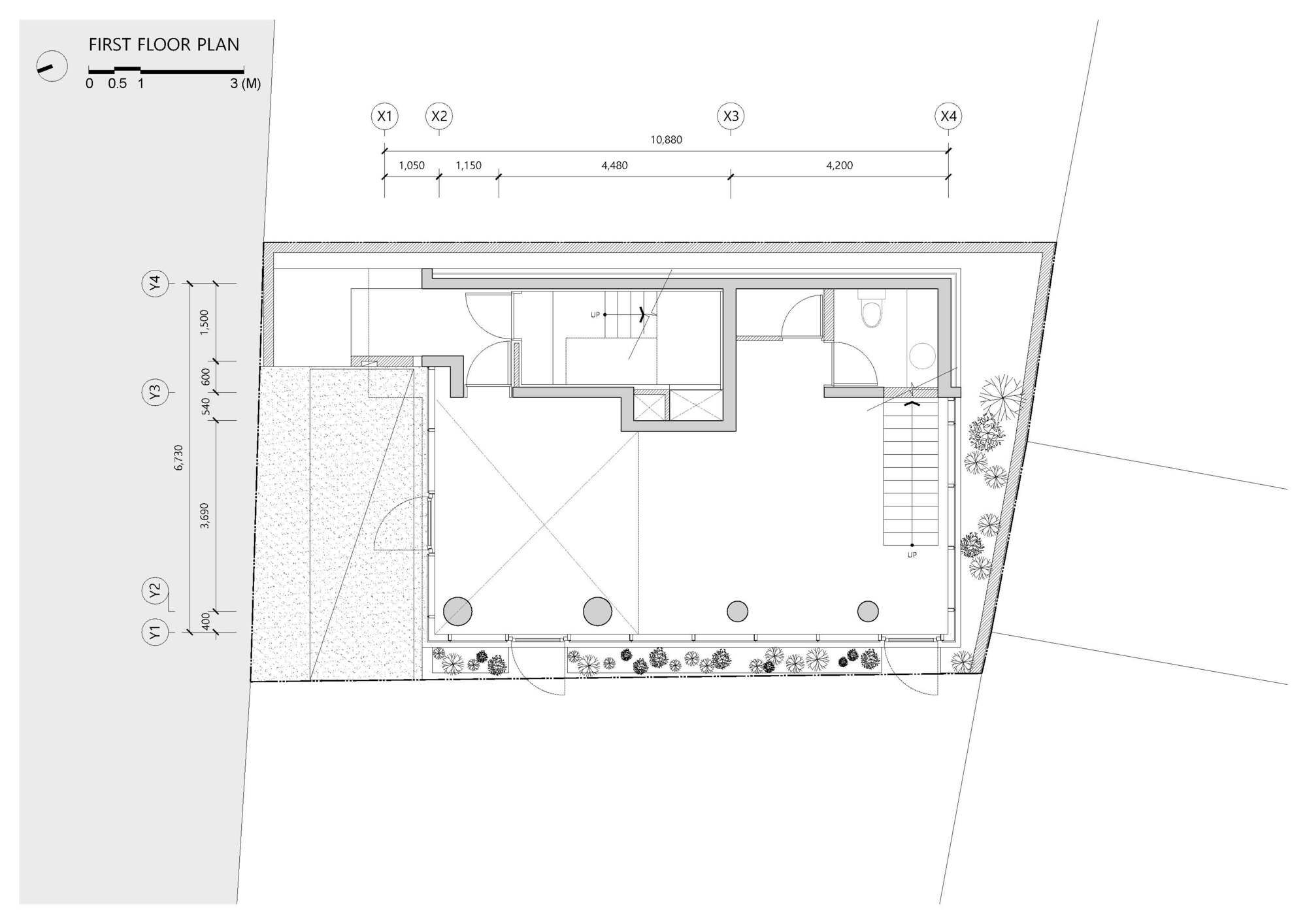
The site was small, and the required area was already determined, so the building had to be tall and thin. Thus, the top priority in the design process was how efficiently the physical requirements could be met. First, too much parking space will leave almost no space available for rent on the first floor, so there had to be just enough room for one vehicle. The area of rental space was determined accordingly.
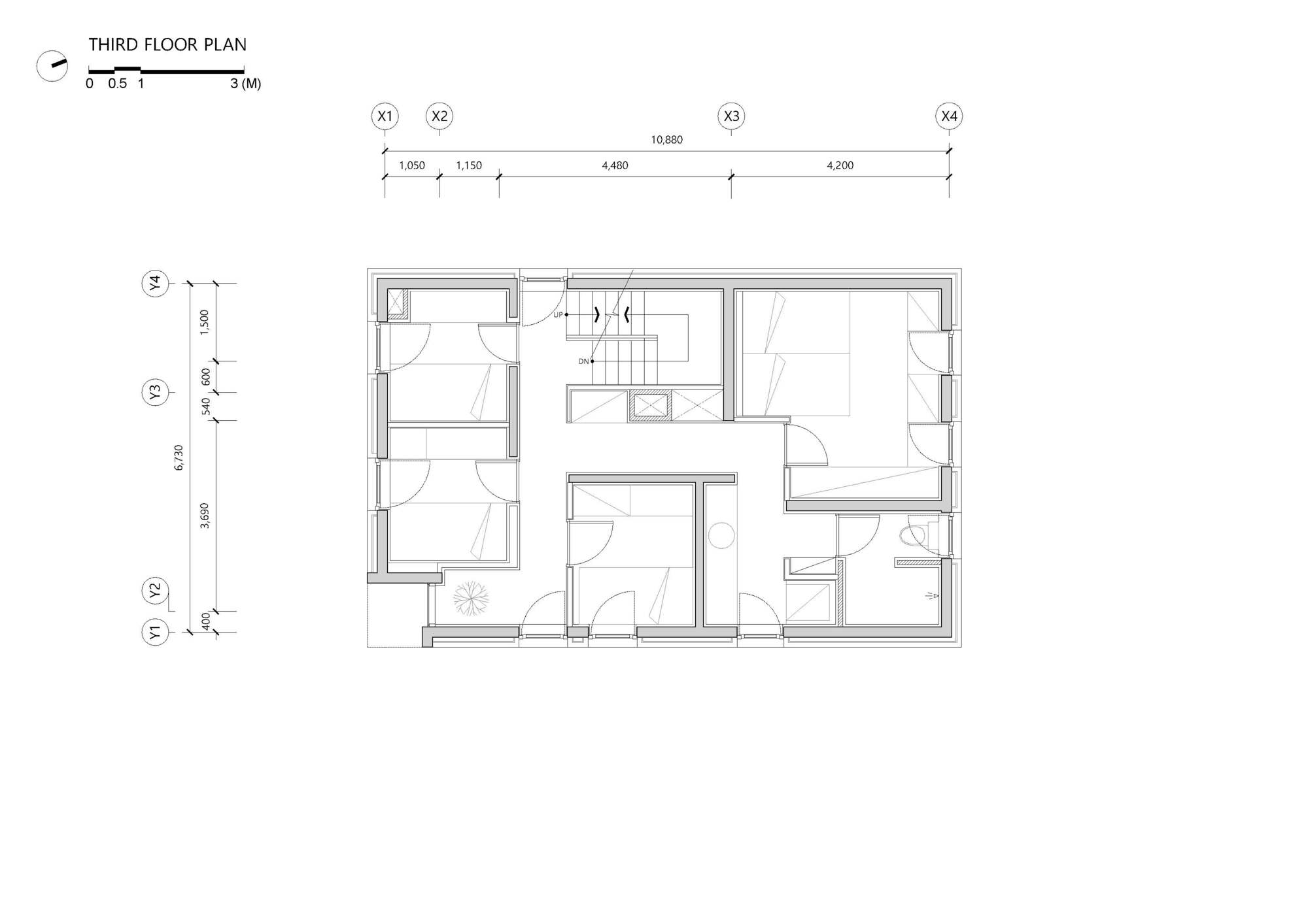
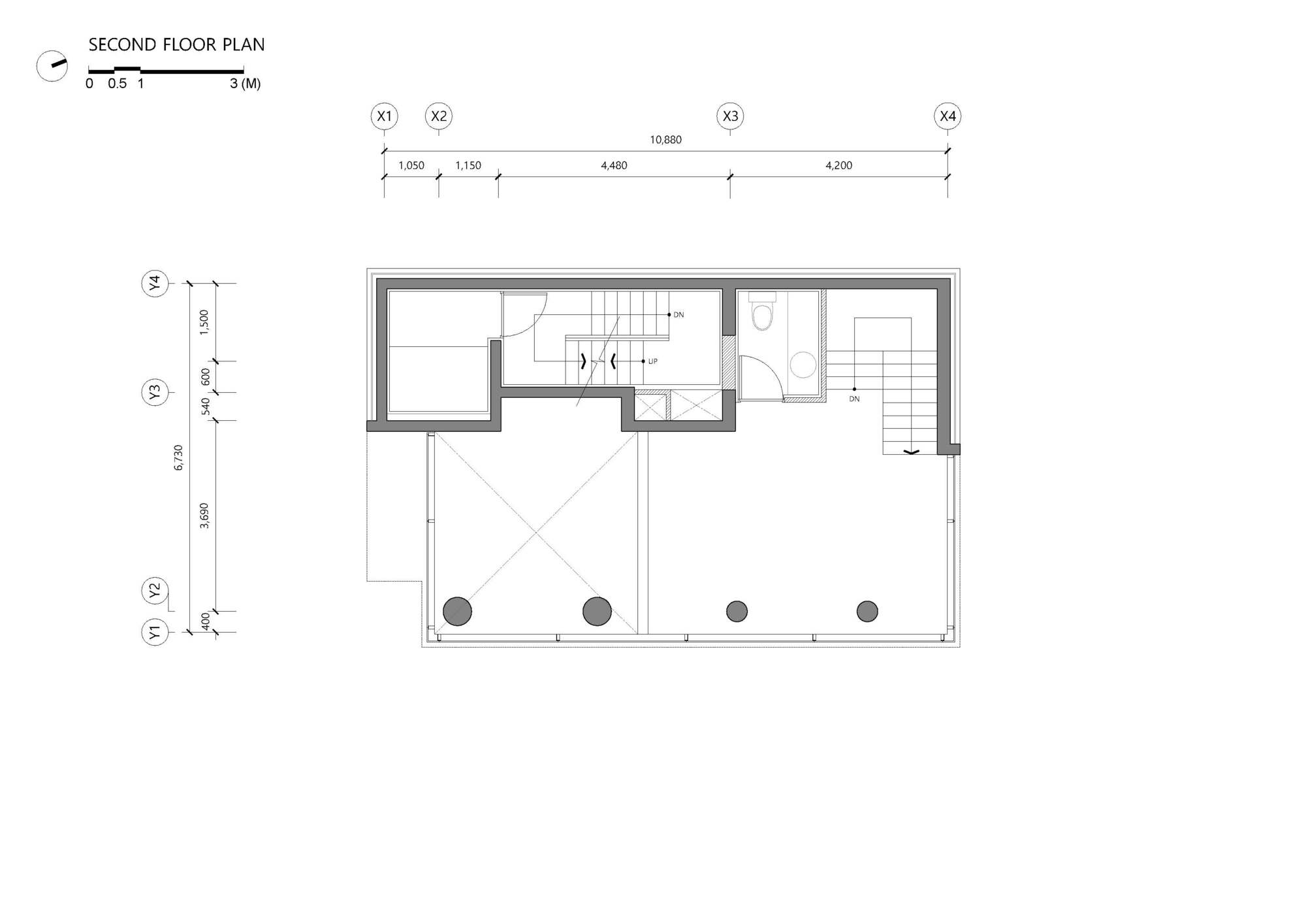
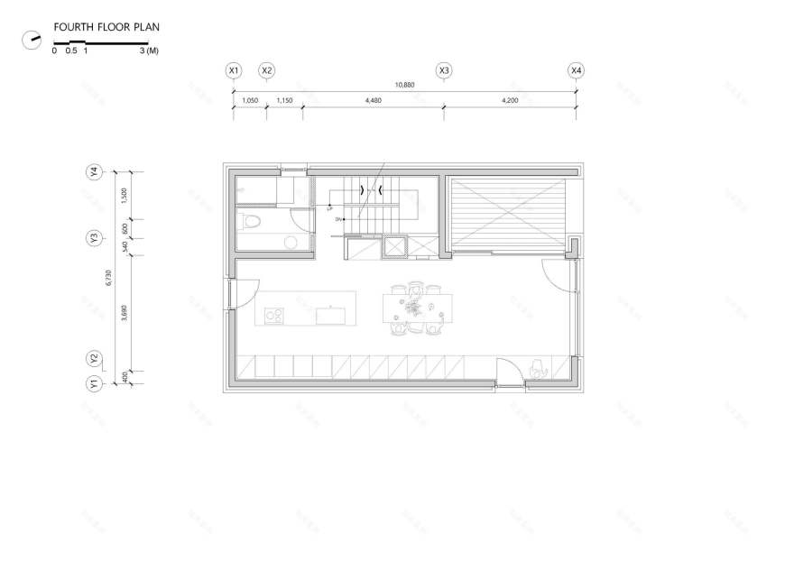
Next, the residential space for the client was to be on the 3rd and 4th floors, along with an attic. To maximize the efficiency of the clients’ living space on the 3rd and 4th floors, the stairs from the 1st to the 3rd floor were used to secure ancillary spaces such as the boiler room, machine room, utility room, and storeroom. Since the area for rental space was limited, the plan was to maximize the rental space on the 1st floor while using part of the 2nd floor as ancillary facilities for residence. Accordingly, the 3rd and 4th floors could be used for the major living spaces such as the bedroom, bathroom, living room, kitchen, and dining area.
After meeting these physical requirements, we thought about how this could harmonize with or be connected to ‘Dots 1’ right next to it. ‘Dots 1’, the company building, had a spatial structure in which the building was open towards the south. A yard remains in the south even after remodeling, and the spaces were connected through the windows and the open doors. Thus, as we planned the second building, we decided to use this yard as a passage that connects the two buildings, as well as a communal yard and a small alley leading to the city. Accordingly, the rental spaces on the 1st floor of the two small buildings can be used as more diverse and spacious spaces by connecting and expanding the first floors of the two buildings through the outdoor space. All these spaces can be used for a single or multiple purposes.
The elevation plan is also made accordingly to emphasize the centrality of these spaces between the two buildings. The new building is mainly divided into rental space and residential space. And there is bigger rental space on the 1st floor and smaller on the 2nd floor. On the other hand, the residential space, which consists of only the front door on the first floor, becomes more spacious going up. According to this program, the spatial composition is revealed on the façade, and the rental space expressed in glass was designed to face the in-between space of these two buildings. This in-between space was intended to be perceived visually as the center of these two buildings.
On the other hand, the material used for the residential space was brick, which has continuity with ‘Dots 1’. Moreover, thick concrete lines were formed at the interface between bricks and glass and lintels to continue using lines, the façade element of ‘Dots 1’. However, the new building needed a different image using similar materials and façade elements. Thus, visual instability and tension were created with the composition of the heavy concrete and brick mass on top of the transparent glass mass and the shape of the upper mass gradually increasing in size as it goes upward.
From a design perspective, it was a significant and interesting project through which we could discover certain spatial and morphological continuity in connecting remodeling and new construction. The clients of Dots are open to anything. Thus, despite the challenges and shortcomings in the first and second projects, they supported us so that we could manifest our somewhat bold ideas into reality without giving up. If the projects have turned out to be successful, it is all thanks to the clients.
Project gallery
Project location
Address:Seonyu-ro, Yeongdeungpo-gu, Seoul, South Korea
客服
消息
收藏
下载
最近
































