查看完整案例

收藏

下载

翻译
Architects:Coarquitetos
Area:113m²
Year:2022
Photographs:Maurício Araújo
Manufacturers:Altena,Eletrolux,Ladrilharia BSB,Leandro Móveis,Lofra,Marmoluz
Collaborating Architect:Maíra Guimarães
Photographic Post Production:Kaio Cardoso
Lighting Design :Conceito Iluminação
City:Brasília
Country:Brazil
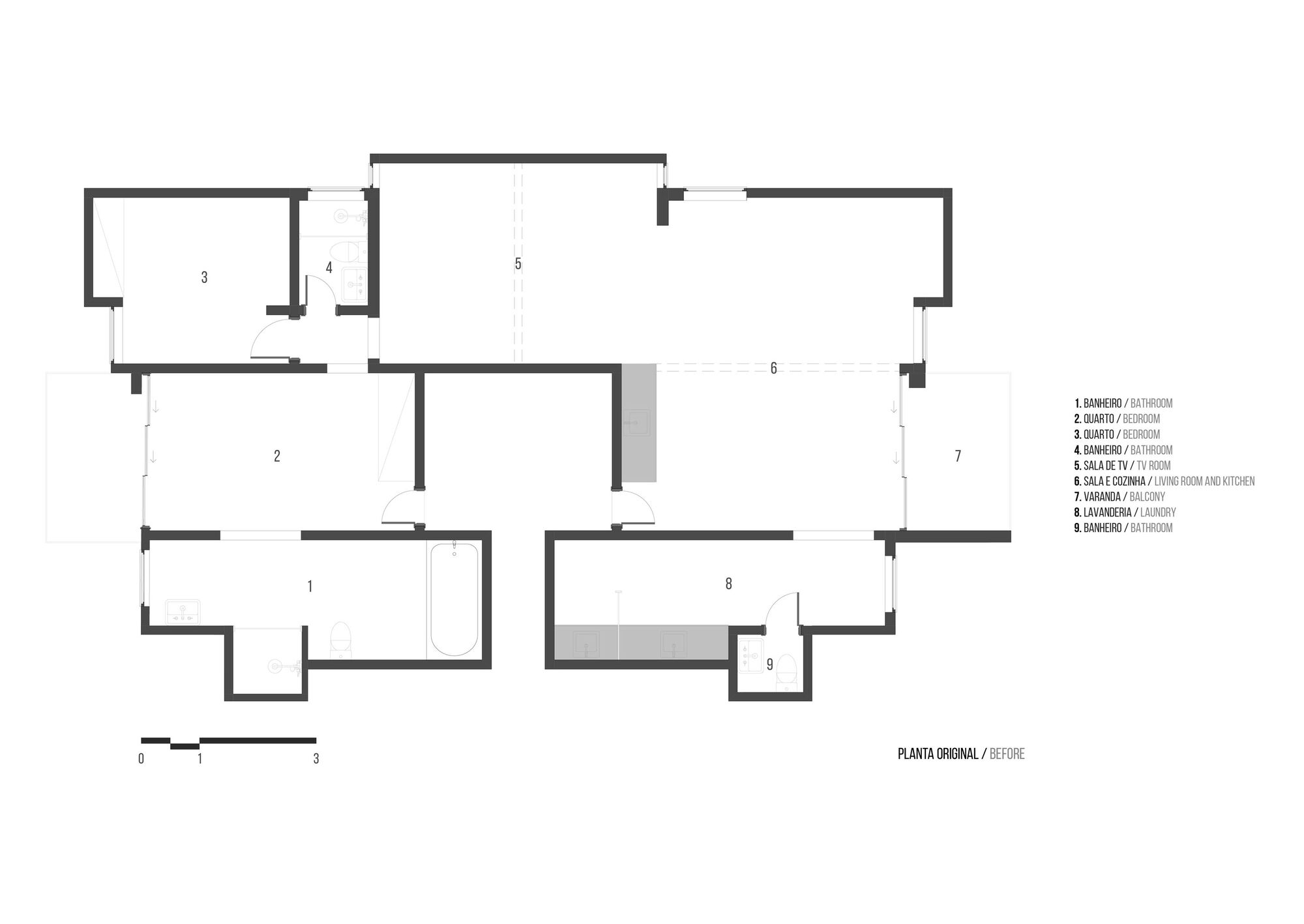
Text description provided by the architects. The Nômade Apartment is located in Brasília, at SQN 210 Bloco F, and has 113m². Its realization was the result of an extensive and labyrinthine creative process. The project began in 2019 and, with ups and downs, was completed in 2021. Its execution took place in 2022.
The client, a psychologist, artist, and dancer, invited us to think about a renovation to include a dance room in her apartment, which is actually the combination of the last two apartments in the building. It now results in a crossed apartment, with a symmetrical layout and a very peculiar design.
During the survey phase, we noticed that many of the existing furniture had wheels and that with each visit, the furniture occupied different places in the house. The bed was where the living room used to be and the office occupied the former bedroom. The refrigerator went to the service area and the stove was closer to the window, where the view was more beautiful.
Hence the name Nômade: the creation of a space for movement, multi-creative, open to changes and adaptations, without a definitive conclusion and in constant transformation.
In the design, we defined one entrance for the house and the other entrance, opposite, the dance room. In the house, the social access is through the former service entrance, now a spacious hall with a toilet, closets, and an area. The living room was integrated with the kitchen and the balcony/garden, allowing for a spacious and airy space. In the corridor that connects both sides, two rooms with sliding doors alternate between a bedroom, a workspace, or a guest room.
In the dance area, access is through the foyer, which has a small pantry and a bathroom. The dance room is a free space of 2.70x4.60m with a wooden floor, a mirrored wall, and a ballet bar. The former balcony has now been adapted into an internal garden for the room. Heavy curtains close the garden when it is necessary to muffle the sound of the music.
We practically dismantled the entire structure of the apartment, creating an environment that is simultaneously light and robust. On the floor, the ipê wood planks run throughout the social and dance areas. In the apartment's access hall, the floor was made with a reproduction of the hydraulic tiles that covered the client's grandfather's farmhouse, rescuing an emotional value with her family.
Project gallery
Project location
Address:SHCN SQN 210 BL F - Asa Norte, Brasília - DF, 70862-000, Brazil
客服
消息
收藏
下载
最近













