查看完整案例

收藏

下载
超前创意设计课程出品
CHS ARCHITECTURE
室内设计工装全案系统班
学员原创设计作品
项目名称丨PROJET NAME
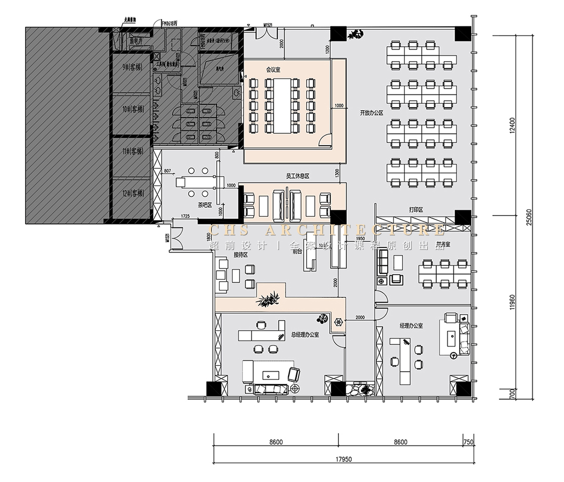
传统与现代的对白 • 办公室原创全案设计
主案设计丨DESIGNER
张煜浩学员丨在职设计师
设计机构丨Design agency
超前设计丨超前创意设计教育
项目属性丨Project Properties
学习课程后做的优秀项目设计作品集
设计理念丨CHS ARCHITECTURE
以杭州西湖十景之一的“南屏晚钟”为概念来源,以现代的手法呈现寺宇中山墙、月窗等元素傍晚的钟声作为空间意境,激起人们的无限遐思
客服
消息
收藏
下载
最近
































