查看完整案例

收藏

下载
富有生活气的城区,白色的建筑外观既跳脱又融入。与周边和谐地对话、安静地观望,书写新旧的关系和变化。空间是品牌价值呈现的重要载体,从材质选择到肌理形态;塑造品牌价值的高度一致。
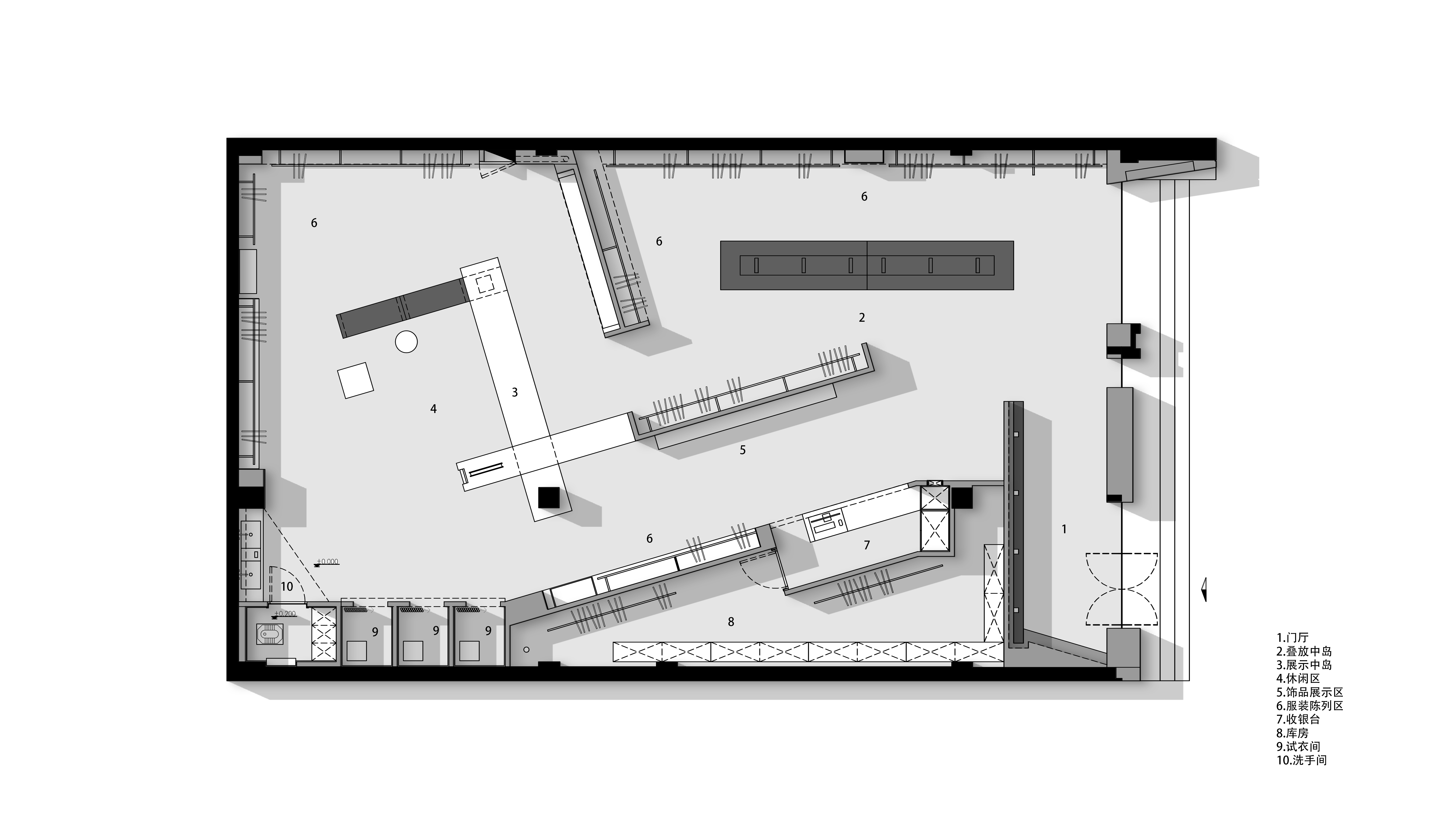
本项目设计的目标简单明晰,通过清晰的体块关系,将空间结构、售卖功能和展示功能结合,简化结构体系,精简结构构件,重视结构逻辑,使之产生流动空间。使用最简搭配和材料平铺净化建造形式。
为了呼应品牌概念,用空间来衬托产品,以尽可能克制的设计手法来体现品牌本身的质感之美。空间无以名状,界限模糊,相互渗透,形成“流动性空间”,将流动性融合在空间之中,鲜活灵动。打造一个即开放又内敛含蓄的空间形象。
在既定空间尺度的束缚下,以自身的空间属性,不骄不躁的立于太原最热闹的街道旁;持续的表达着品牌自身主张独立,在被趋势和潮流所引导的当下另辟蹊径,不被普世标准所限。我们希望身处流行的风暴中的,保持冷静的创作及逻辑思维,结合美学呈现经典但带有品牌温度的作品,以空间的语言来诉说着品牌的情绪。毕竟在零售空间内,产品应该是永远的主角。
主案设计师/孟飛
Lead Designer/Meng Fei
参与设计师/张林、赵钦帅、王鹏宇
Participating designers/Zhang Lin, Zhao Qinshuai,Wang Pengyu
灯光设计/三宜照明
Lighting Design/Sanyi· Lighting
项目位置/山西·太原
Location/Taiyuan, Shanxi Province
项目面积/195m²
Project area/195m²
摄影/RICCI空间摄影、双备
Photography/Ricci spatial photography,Shuangbei
客服
消息
收藏
下载
最近

























